Orbassano, Province of Turin, Italy
Residential - small-apt
Briefing
Torino - italy
Buongiorno,
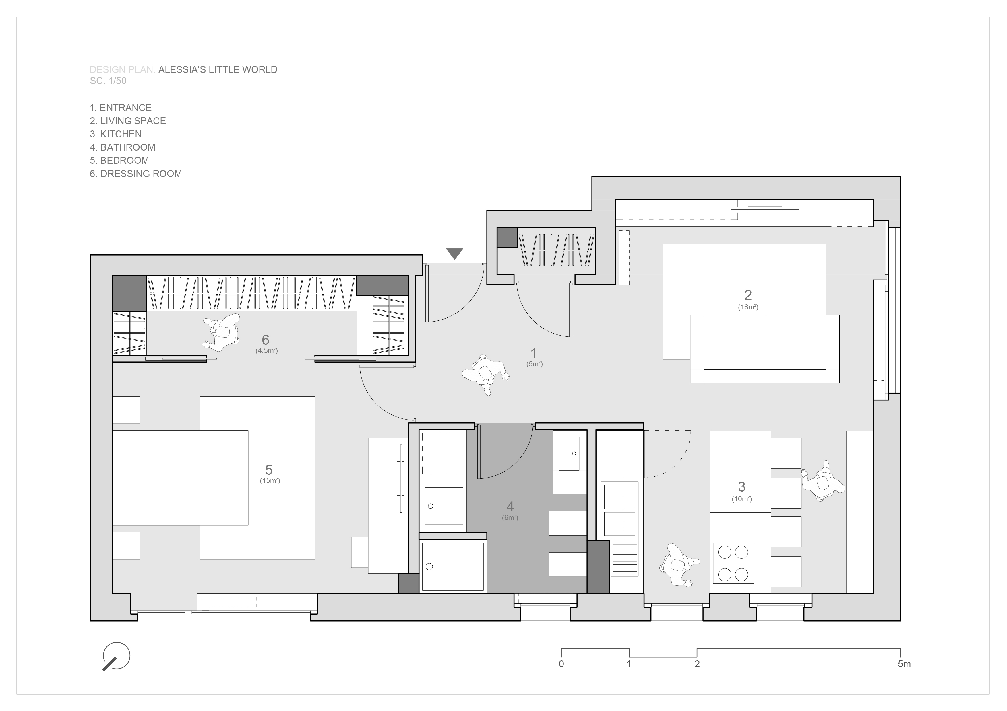
devo completamente ristrutturare questo piccolo alloggio di 50 mq al quinto ed ultimo piano in una palazzina anni 60 nel centro del paese, preferisco gli ambienti moderni ed eleganti . mi piacciono i colori e le luci che danno un atmosfera rilassante e luminosa. (i miei preferiti sono grigio, bianco, color legno chiaro, no marrone scuro).
essendo un piccolo alloggio ho bisogno di ottimizzare gli spazi ma allo stesso tempo rendere d'effetto l'ambiente e adatto ad una ragazza giovane.
Mi piacerebbe una cucina moderna con isola o penisola.
Vorrei inserire da qualche parte su una parete una piccola zona con piastrelle effetto muretto/pietra illuminata .
Se necessario,sono disposta a cambiare la disposizione delle pareti.
Le porte e gli infissi sono tutti da cambiare.
Nel bagno necessito di uno spazio con lavatoio/lavatrice e box doccia spazioso.
Nella camera se possibile mi piacerebbe una cabina armadio o armadio capiente.
Pavimenti parquet chiaro o greis porcellanato effetto parquet o piastrelle chiare eleganti.
Resources