
Catania, CT, Italia
Residenziale - Villa
Descrizione
ENG:
Modern style with a combination of wood and metal (industrial style).
We need to see this house from a different perspective it has a Sicilian style with a roof made of traditional Sicilian tiles and an outdoor floor in terracotta and it has great potential.
It has a large garden with several fruit trees (orange, pomegranate) and flowers (bougainvillea and jasmine).
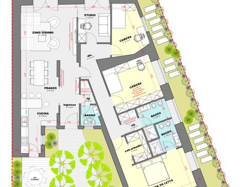
We are a family of four (my husband, my almost 8-year-old son, my 3-year-old daughter, and me) and we would like 3 bedrooms, a study, living room, kitchen, 2 bathrooms, and a storage room.
SPA:
Estilo moderno con una combinación de madera y metal (estilo industrial).
Queremos ver esta casa desde otra perspectiva tiene un estilo siciliano con un techo hecho de tejas sicilianas tradicionales y un suelo exterior de terracota y tiene un gran potencial.
Cuenta con un amplio jardín con varios árboles frutales (naranjo, granado) y flores (buganvilla y jazmín).
Somos una familia de cuatro (mi esposo, mi hijo de casi 8 años, mi hija de 3 años y yo) y nos gustaría tener 3 dormitorios, un estudio, salón, cocina, 2 baños y un trastero.
ITA:
Stile moderno con abbinamenti di legno e metallo (stile industrial). Abbiamo necessità di vedere con occhi diversi questa casa (stile siciliano con tetto fatto da coppi siciliani e pavimentazione esterna in cotto) che ha un grande potenziale. Ha un grande giardino con diversi alberi da frutto (arancio, melograno) e fiori (buganvilla e gelsomino). Siamo 4 (io, mio marito, mio figlio di quasi 8 anni e mia figlia di 3) in famiglia e vorremmo 3 camere da letto, uno studio, living, cucina, 2 bagni, sgabuzzino.