
Vieste, FG, Italia
Residenziale - Appartamento
Hello, Hope you are doing well.
Had fun working on this. Layout with dwg and Reference Renders are provided. Hope you like it.
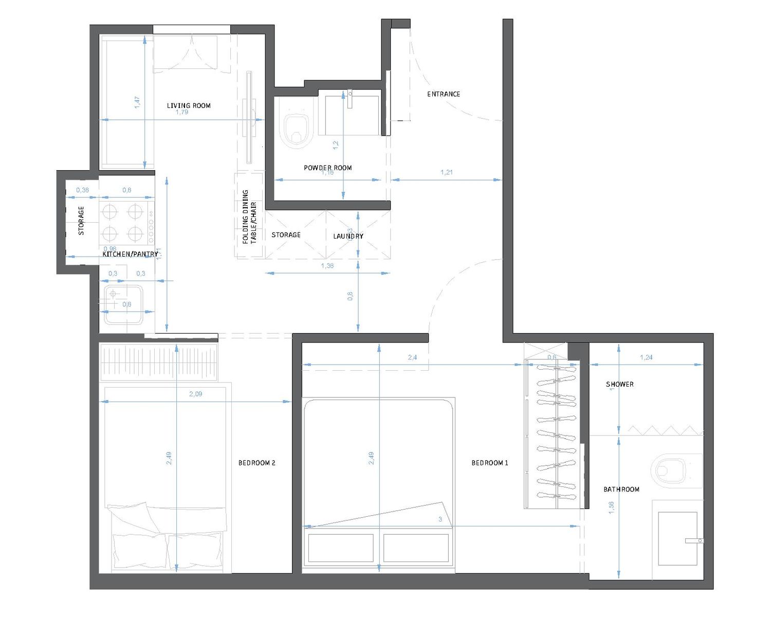
The Layout plan have all the needs (spaces) catered it. And some of the furniture provided along with picture to have better understanding.