
Milan, Italy
Residenziale - Appartamento
Descrizione
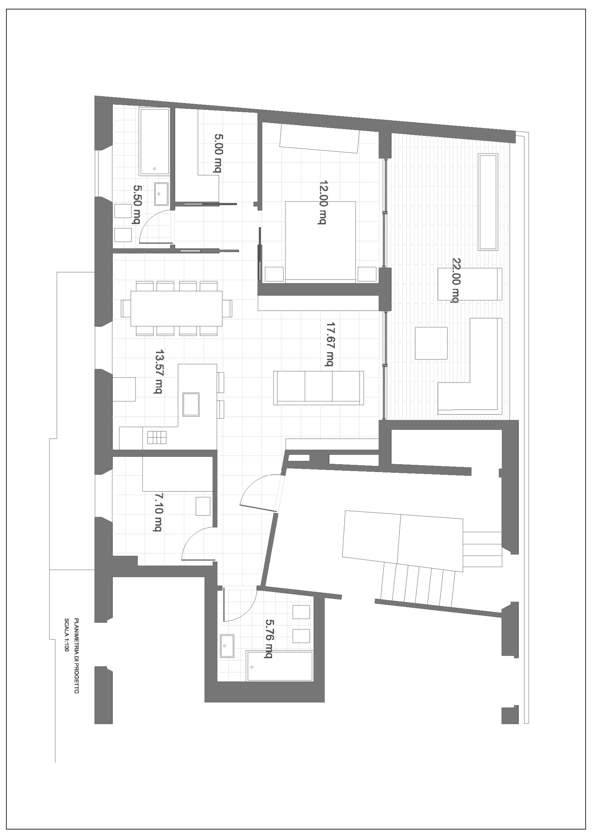
ristrutturazione completa. al momento senza alcun muro portante, a parte colonne. braga bagno disponibile sia a nord che sud. necessità di grande soggiorno, due camere di cui una piccola (cameretta/studio). due bagni di cui uno piccolo. piccola cucina ad isola, anche a vista. finestre terrazzo allargabili. copertura, arredamento e mobili terrazzo da studiare. arredamento minimal e moderno. l'appartamento si trova all'ultimo piano di un palazzo fine anni 50.
complete restructuring, now with no internal walls a part from 1 central column. water columns both on north and south. need for big living room, 1 big and 1 small room (studio/bedroom), 2 bathrooms, small isle kitchen. terrace's window can be bigger. to be done also terrace's top cover, floor + furnsishing. modern style. the apartment is at the top floor of an end of 50s building.