
San Giorgio del Sannio, BN, Italia
Residenziale - Palazzo
Descrizione
ENG:
I am the owner of a small residential building (one half of a semi-detached house) consisting of a ground floor, first floor, attic, and garage.
The goal is to create six independent mini-apartments (at least two on each level) and to subdivide the existing garage into two parking spaces and two storage rooms, optimizing space, systems, and overall living comfort.
General guidelines:
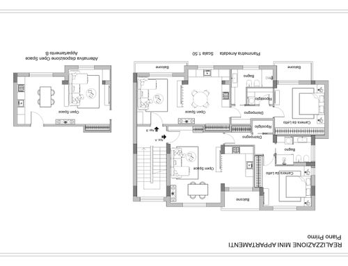
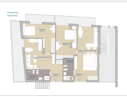
- Ground floor: creation of two independent apartments, each with an open-space living room/kitchen, one bedroom, and one bathroom.
- First floor: construction of two apartments with similar features, ensuring good natural lighting and a functional room layout.
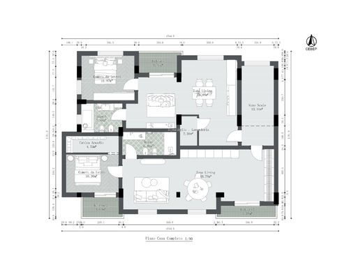
- Attic: design of two apartments, making the best use of the variable ceiling heights, with particular attention to thermal insulation and comfort.
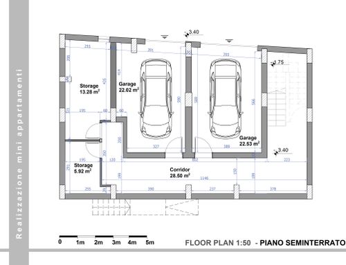
- Garage: subdivision into two separate garages and two small storage rooms.
Main objectives and requirements:
- Functionality and livability: optimize the use of space through smart design solutions suitable for mini-apartments (approximately 40–50 m² each).
- Contemporary aesthetics: clean lines, light colors, and durable, easy-to-source materials.
- System efficiency: installation of independent electrical, plumbing, and heating/cooling systems, with provisions for photovoltaic panels and heat pumps.
- Regulatory compliance: ensure habitability standards, natural ventilation, accessibility, and fire safety.
- Cost optimization: preference for construction and furnishing solutions that minimize execution time and overall expenses.
SPA:
Soy propietario de un edificio residencial (una porción de una casa bifamiliar) compuesto por planta baja, primer piso, buhardilla y garaje.
El objetivo es crear seis miniapartamentos independientes (al menos dos por nivel) y dividir el garaje existente en dos plazas de aparcamiento y dos trasteros, optimizando los espacios, las instalaciones y el confort habitacional.
Indicaciones generales:
- Planta baja: creación de dos apartamentos independientes, cada uno con salón/cocina de concepto abierto, un dormitorio y un baño.
- Primer piso: realización de dos apartamentos con características similares, cuidando la iluminación natural y la distribución funcional de los espacios.
- Buhardilla: diseño de dos apartamentos aprovechando al máximo las alturas variables, con especial atención al aislamiento térmico y al confort.
- Garaje: división en dos garajes independientes y dos trasteros para almacenamiento.
Objetivos y requisitos principales:
- Funcionalidad y habitabilidad: aprovechar los espacios con soluciones inteligentes de diseño para miniapartamentos (de aproximadamente 40–50 m² cada uno).
- Estética contemporánea: líneas limpias, colores claros y materiales duraderos y de fácil acceso.
- Eficiencia de las instalaciones: preparación para sistemas eléctricos, hidráulicos y de climatización independientes, con posibilidad de paneles fotovoltaicos y bombas de calor.
- Cumplimiento normativo: garantizar la habitabilidad, la ventilación natural, la accesibilidad y la seguridad contra incendios.
- Optimización de costes: preferencia por soluciones constructivas y de mobiliario que reduzcan los tiempos de ejecución y los costes totales.
ITA:
Sono proprietario di una palazzina (porzione di una bifamiliare) composta da piano terra, primo piano, mansarda e garage.
L’obiettivo è realizzare 6 mini-appartamenti indipendenti (almeno 2 per ogni livello) e suddividere il garage esistente in 2 autorimesse e 2 cantinole, ottimizzando spazi, impianti e comfort abitativo.
Indicazioni generali:
- Piano terra: creazione di 2 appartamenti indipendenti con soggiorno/cucina open space, 1 camera da letto e 1 bagno ciascuno.
- Primo piano: realizzazione di 2 appartamenti con caratteristiche analoghe, curando l’illuminazione naturale e la distribuzione degli ambienti.
- Mansarda: progettazione di 2 appartamenti sfruttando al meglio le altezze variabili, con attenzione a isolamento termico e comfort.
- Garage: suddivisione in 2 box auto separati e 2 cantinole per deposito.
Obiettivi e richieste principali:
- Funzionalità e vivibilità: valorizzare gli spazi con soluzioni intelligenti per mini-appartamenti (circa 40–50 m² cadauno).
- Estetica contemporanea: linee pulite, colori chiari, materiali durevoli e facilmente reperibili.
- Efficienza impiantistica: predisposizione per impianti elettrici, idrici e riscaldamento/raffrescamento autonomi, con eventuale fotovoltaico e pompe di calore.
- Rispetto delle normative: abitabilità, aerazione naturale, barriere architettoniche e sicurezza antincendio.
- Ottimizzazione costi: preferenza per soluzioni costruttive e d’arredo che riducano tempi e spese di realizzazione.