🔥 CYBER MONDAY 24H: -60% su tutti i prezzi del sito! Solo fino a mezzanotte. Usa il codice CYBERMONDAY25 👉🏼
img

Podere Velluto

Foggia, FG, Italia

Residenziale - Appartamento

Hisham Ward

  • architect
  • kuwait, Kuwait
Descrizione Progetto

En:
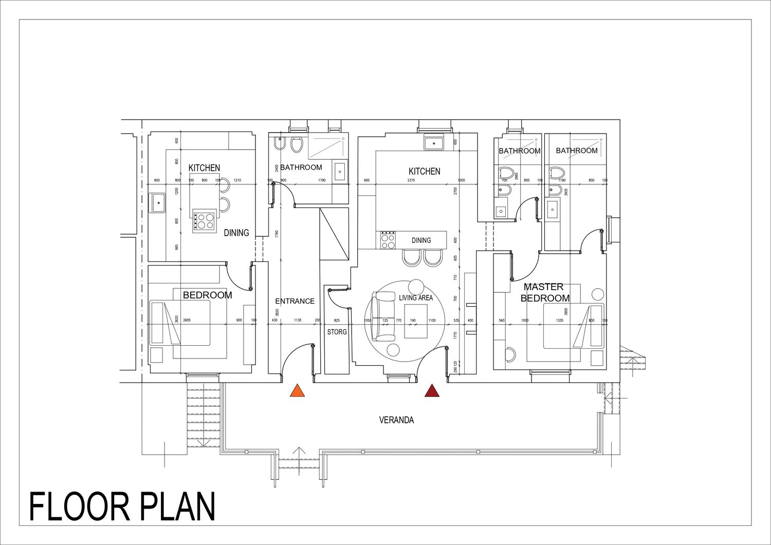
Following your request, we have carefully divided the house into two independent residential units, ensuring both functionality and comfort.

Unit 1 – 100 sqm: The spaces have been organized into a large living area with an open‑plan kitchen to create direct connection and openness. Taking into account the existing wood‑burning stove, the living area has been placed nearby to benefit from natural heating. The bedroom has been furnished with a layout that enhances both beauty and practicality. Two bathrooms have been included: one larger and more comfortable, and one smaller guest bathroom. All spaces have been designed with attention to natural light and ventilation.

Unit 2 – 50 sqm (for your father): This unit has been designed to be simple and functional, with a comfortable kitchen, a naturally lit and ventilated bedroom, and a practical bathroom with shower and bidet.

For the overall design, we adopted a contemporary style enriched with elegant rustic touches. Materials were chosen carefully, including oak wood to add warmth and a refined rural character. The color palette combines sage green, teal blue, and taupe, creating a soft and welcoming atmosphere.

We believe this solution reflects your vision and provides a harmonious balance between modern comfort and rustic charm.

IT:
Seguendo la vostra richiesta, abbiamo accuratamente suddiviso la casa in due unità residenziali indipendenti, garantendo sia funzionalità che comfort. Unità 1 – 100 mq: Gli spazi sono stati organizzati in un ampio living con cucina a vista per creare un collegamento diretto e una sensazione di apertura. Tenendo conto del camino a legna esistente, l'area giorno è stata posizionata nelle vicinanze per beneficiare del riscaldamento naturale. La camera da letto è stata arredata con una disposizione che valorizza sia la bellezza che la praticità. Sono stati inclusi due bagni: uno più grande e confortevole e un piccolo bagno per gli ospiti. Tutti gli spazi sono stati progettati con attenzione alla luce naturale e alla ventilazione. Unità 2 – 50 mq (per vostro padre): Questa unità è stata pensata per essere semplice e funzionale, con una cucina confortevole, una camera da letto luminosa e ventilata naturalmente e un bagno pratico con doccia e bidet.
arricchito da eleganti tocchi rustici. I materiali sono stati scelti con cura, incluso il legno di quercia per aggiungere calore e un carattere rurale raffinato. La palette di colori combina verde salvia, blu teal e taupe, creando un'atmosfera morbida e accogliente.

Crediamo che questa soluzione rifletta la vostra visione e offra un equilibrio armonioso tra comfort moderno e fascino rustico.

Leggi di Più