.jpg)
Foggia, FG, Italia
Residenziale - Appartamento
Relazione “Podere Velluto”
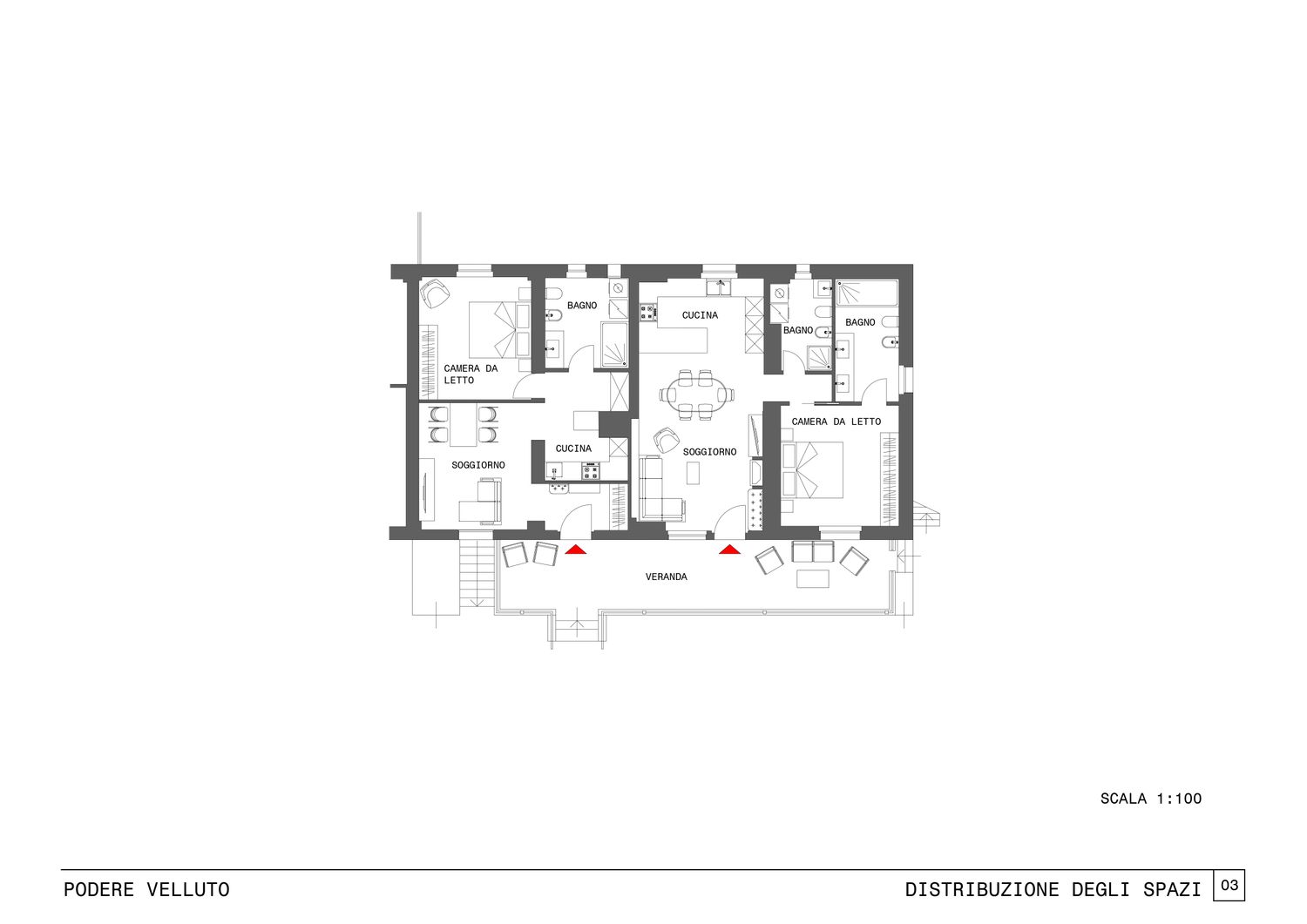
Il progetto prevede la suddivisione dell’unità abitativa in due unità distinte, rispettivamente una più
piccola per il padre, una più grande per il figlio e la moglie.
Vediamo ora la suddivisione dei due appartamenti.
L’appartamento A, il più grande prevede un’ampia zona living, con cucina a vista, nel quale ci si
immerge non appena si varca la soglia di casa. Un ampio divano e una poltrona riempiono lo spazio
sulla sinistra, mentre sulla destra, oltre ad una comoda panca su cui potersi sedere a leggere,
troviamo il camino ed il mobile tv, con annessa libreria.
A dividere il soggiorno dalla cucina, seppur nello stesso ambiente, troviamo un tavolo da pranzo
con superficie in vetro per non riempire visivamente lo spazio. Questo ospita sei persone.
In fondo alla stanza troviamo la cucina a vista. Questa presenta una penisola per pasti veloci o per la
colazione. Le armadiature, verniciate di un color verde salvia rendono l’ambiente vivace dando un
tocco di colore, mantenendo però l’ambiente confortevole ed accogliente.
Il tocco rustico viene dato dal rivestimento della parete in sasso, dalla cappa della cucina in stile
classico e dalle travi in legno presenti a soffitto.
Proseguendo, il piccolo disimpegno porta al primo bagno, dotato di tutto il necessario. Esso funge
sia da bagno per gli ospiti, sia da lavanderia.
La zona notte è composta da camera matrimoniale e personale bagno privato. Questo, oltre al
doppio lavabo, presenta un’ampia doccia.
Il secondo appartamento, quello più piccolo è suddiviso nel seguente modo.
Entrando ci troviamo in un piccolo ingresso, che scherma la vista sulla cucina.
La prima zona che incontriamo è quella del soggiorno, dove prende posto un divano, il mobile tv e
il tavolo da pranzo per quattro persone.
La cucina, piccola ma dotata di tutto, viene racchiusa in una nicchia.
Il disimpegno porta poi alla zona notte, dove troviamo un generoso bagno, nel quale trova posto
anche la lavatrice e l’asciugatrice, e la camera da letto matrimoniale.
In quest’ultima è stata aperta una finestra.
Per le pavimentazioni, in entrambi gli appartamenti, ho scelto di usare un parquet di rovere per
creare un’ambiente accogliente. Questo viene usato sia nel soggiorno, sia nelle camere da letto.
Nell’area della cucina, prendono posto delle piastrelle con decoro ornamentale sui toni del verde e
del celeste.
Nei bagni la scelta è ricaduta sempre su piastrelle dal decoro ornamentale ma sui toni del tortora.