🔥 CYBER MONDAY 24H: -60% su tutti i prezzi del sito! Solo fino a mezzanotte. Usa il codice CYBERMONDAY25 👉🏼
Home / Concorsi / P36 / Silvana Walser
img

P36

Livorno, LI, Italia

Residenziale - Appartamento

Silvana Walser

  • architect
  • Concepción del Uruguay, Argentina
Descrizione Progetto

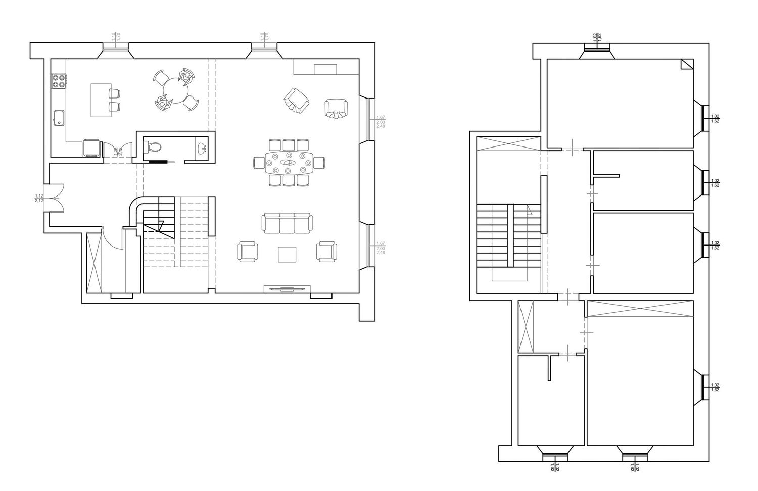
Gentile cliente, ritengo che il problema principale dell'attuale disposizione sia la posizione della scala, che spreca molto spazio di circolazione. La soluzione sarebbe quella di invertirne la posizione. In questo modo, il passaggio dall'ingresso alla zona giorno/pranzo sarebbe più diretto e gli spazi precedentemente adibiti a vie di passaggio potrebbero essere utilizzati per una cucina con angolo colazione su un lato del corridoio d'accesso e una lavanderia con ripostiglio sull'altro. Ciò creerebbe uno spazio più funzionale e semplificherebbe notevolmente la circolazione.

Leggi di Più