🔥 CYBER MONDAY 24H: -60% su tutti i prezzi del sito! Solo fino a mezzanotte. Usa il codice CYBERMONDAY25 👉🏼
Home / Concorsi / P36 / Hürmüs Sonuç
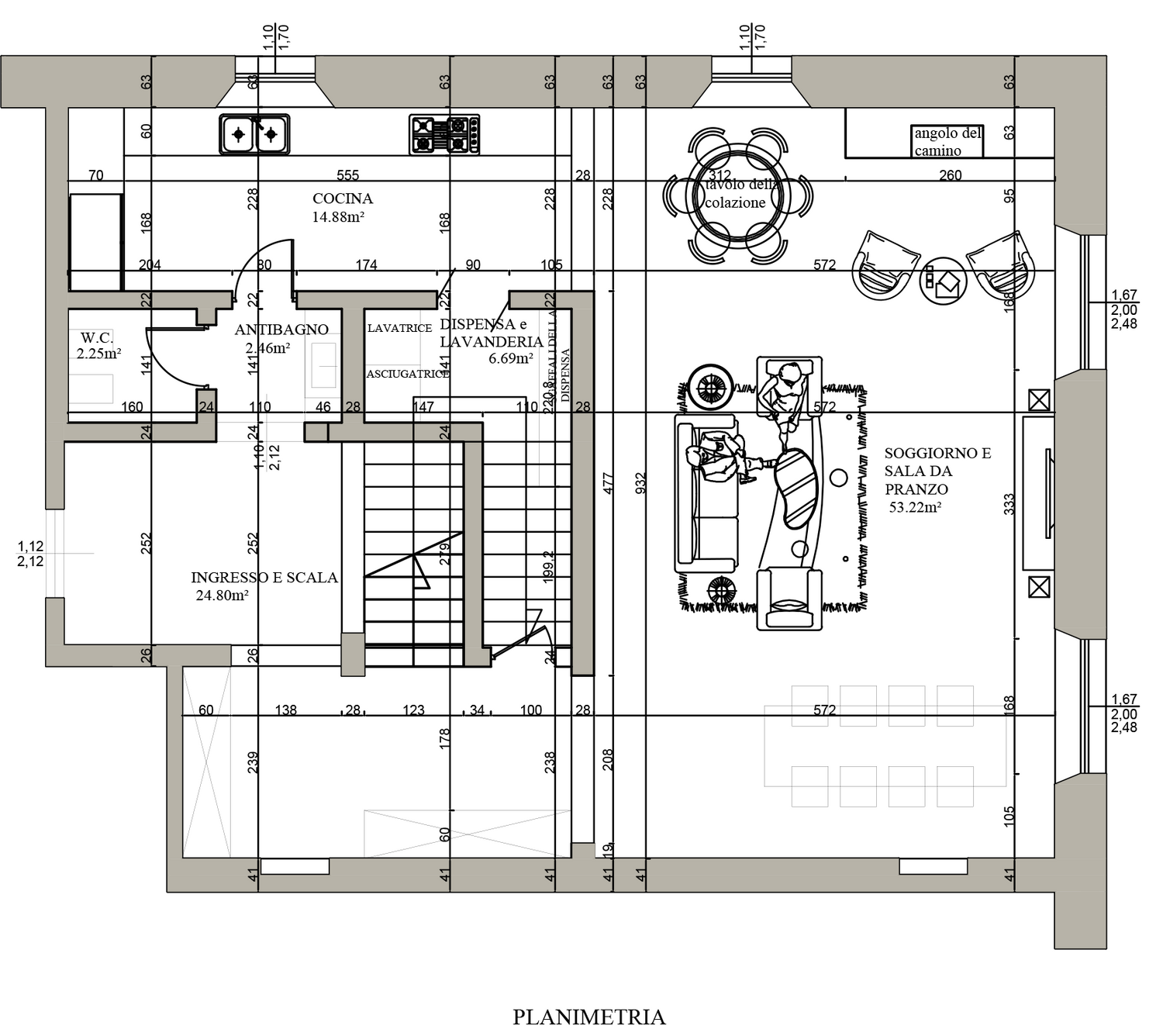
img

P36

Livorno, LI, Italia

Residenziale - Appartamento

Hürmüs Sonuç

  • engineer
  • Güzelyurt, Turkey
Descrizione Progetto

I’ve reimagined the heart of your home with a layout that balances openness, comfort, and everyday practicality.
As you enter the house, you’re welcomed by a clean and organized circulation zone. On the left, a well‑designed WC with an integrated antibagno provides both convenience and privacy for guests. From this same corridor, you can directly access the kitchen—meaning you no longer need to walk through the living room to reach it. This creates a smoother flow and keeps the social areas undisturbed.
The kitchen itself is conceived as a semi‑open space connected to the living area, yet carefully planned so that the main working surfaces remain discreetly out of sight from the seating zone. This gives you the visual openness you want without compromising on order or aesthetics.
A special feature of the new layout is the hidden utility pantry tucked beneath the staircase. Accessible through a subtle door within the kitchen, this space houses both the washing machine and dryer, keeping all household functions neatly concealed while remaining easily reachable.
Overall, the design enhances comfort, circulation, and visual harmony—offering you a home that feels both elegant and effortlessly functional.
I hope you to enjoy it ! :)

Leggi di Più