
Carisolo, TN, Italia
Residenziale - Appartamento
Descrizione
ENG:
Objective: Complete renovation of the living area, creating an open-space environment with luxury finishes, a modern style, and mountain-inspired accents with dramatic contrasts.
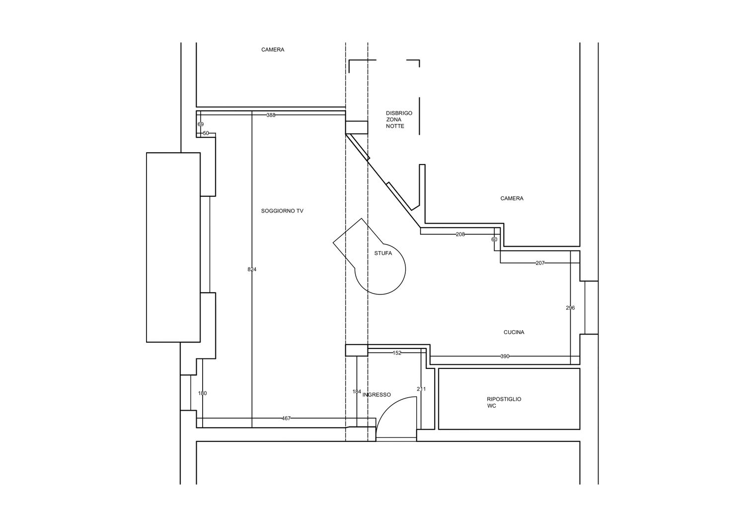
1. Layout & Functions (Floor Plan Reference)
The apartment, located in a mountain setting, requires an optimized layout for a family of four adults:
• Entrance:
Built-in wardrobe/coat closet with mirrored doors on the wall facing the main entrance.
Installation of a 90 cm sliding door to separate the entrance from the living area (TV/Lounge zone).
• Open-Space Living Area (Living & Dining):
Dining Area: Extendable table for 6–8 people with elegant armchairs.
TV/Relax Area:
Placement of the blue sofa and armchairs facing the TV (65")wall.
TV Wall: Floating low cabinet, horizontal shelves, TV mounted on a panel with LED backlighting.
Central Element: Retain the existing ceramic stove (stufa in maiolica).
• Kitchen:
Modern, fully equipped cabinetry.
Inclusion of a dining nook/wooden bench area (as shown on the floor plan).
2. Finishes & Materials (Luxury Alpine Style)
The project should incorporate luxurious finishes, combining modern design with traditional alpine elements.
• Flooring: Rustic oak-effect parquet with knots and filled cracks.
• Walls:
Use of damask-effect or similar wallpaper on selected walls (e.g., the TV wall).
Wood paneling (boiserie) in the same oak tone as the flooring around the kitchen bench area.
• Interior Doors & Baseboards: White.
• Ceiling Height: 2.75 meters.
3. Existing & New Furniture
Element Status Specifications
Ceramic Stove Kept Central position
Blue Sofa Kept 1.10 m depth, 2.10 m length
Armchair #1 (Blue) Retained 1.10 m × 1.20 m
Armchair #2 (Beige) New 0.75 m × 0.75 m
Remaining Furniture New All other furniture, except the seats above, will be replaced
4. Structural Details & Lighting
• False Ceiling:
Required to hide the central beam and visually define the Living/Dining/Entrance areas.
Including oak (matching the flooring) in portions of the false ceiling may be considered.
• Lighting:
Living/TV Area: LED strips for diffuse and scenographic lighting.
Kitchen Table (Bench Area): Pendant light centered above the table.
Architect’s Request:
We request a project that follows the provided guidelines, creating a high-end, visually striking environment. Alternative proposals that enhance the final result are welcome, as long as the luxurious, modern, and alpine spirit of the brief is maintained.
Thank you.
SPA:
Objetivo: Renovación completa de la zona de día, creando un ambiente open-space con acabados de lujo, un estilo moderno y acentos montañosos con contrastes escenográficos.
1. Distribución y Funciones (Referencia Planimetría)
El apartamento, ubicado en la montaña, requiere una distribución optimizada para una familia de cuatro adultos:
• Entrada:
Armario empotrado/perchero con puertas espejadas en la pared frente al acceso principal.
Instalación de una puerta corredera de 90 cm para separar la entrada de la zona de día (TV/Salón).
• Zona de Día Open-Space (Salón & Comedor):
Área Comedor: Mesa extensible para 6–8 personas con butacas elegantes.
Área TV/Relax:
Posicionamiento del sofá azul y de las butacas frente a la pared de TV.
Pared de TV: Mueble bajo suspendido, estantes horizontales, TV montado en panel con iluminación LED.
Elemento Central: Mantener la estufa de mayólica existente.
• Cocina:
Mobiliario de estilo moderno, completamente equipado.
Inclusión de un área de mesa/banco de madera (según la planimetría).
2. Acabados y Materiales (Estilo Lujoso y Alpino)
El proyecto debe incluir acabados de alta gama, combinando modernidad y tradición alpina.
• Suelo: Parquet efecto roble rústico con nudos y rellenos visibles.
• Paredes:
Uso de papel pintado con efecto damasco o similar en algunas paredes (por ejemplo, la pared de la TV).
Incorporación de boiserie de madera (mismo roble del suelo) alrededor del banco de la cocina.
• Puertas Interiores y Rodapiés: Color blanco.
• Altura Interior: 2,75 metros.
3. Mobiliario Existente y Nuevo
Elemento Estado Especificaciones
Estufa de mayólica Mantener Posición central
Sofá azul Mantener 1,10 m de profundidad, 2,10 m de largo
Butaca #1 (Azul) Mantener 1,10 m × 1,20 m
Butaca #2 (Beige) Nueva 0,75 m × 0,75 m
Resto del mobiliario Nuevo Todo el mobiliario, excepto los asientos indicados, será reemplazado
4. Detalles Estructurales e Iluminación
• Falso Techo:
Necesario para ocultar la viga central y para definir/ separar visualmente las áreas de Salón/Comedor/Entrada.
Se puede considerar el uso de roble (como el suelo) para algunas zonas del falso techo.
• Iluminación:
Zona Salón/TV: Tiras LED para iluminación difusa y escenográfica.
Mesa de Cocina (Zona de Banco): Lámpara colgante centrada sobre la mesa.
Solicitud al Arquitecto:
Se solicita un proyecto que respete las directrices proporcionadas, creando un ambiente escenográfico y de alto nivel. Se aceptan propuestas alternativas que mejoren el resultado final, siempre manteniendo el espíritu lujoso, moderno y alpino del briefing.
Gracias.
ITA:
Obiettivo: Ristrutturazione completa della zona giorno con creazione di un ambiente open-space, finiture di lusso e uno stile moderno con accenti montani e contrasti scenografici.
1. Layout e Funzioni (Riferimento Planimetria)
L'appartamento, situato in montagna, prevede un layout ottimizzato per una famiglia di 4 adulti:
• Ingresso:
o Armadio attrezzato/porta-cappotti con chiusura a specchio sulla parete di fronte al portone.
o Creazione di una porta scorrevole da 90 cm per separare l'ingresso dalla zona giorno (Soggiorno TV/Divano).
• Zona Giorno Open-Space (Soggiorno & Pranzo):
o Area Pranzo (Tavolo): Tavolo allungabile per 6/8 persone con poltroncine eleganti.
o Area TV/Relax:
Posizione del Divano (blu) e delle Poltrone di fronte alla parete TV.
Parete TV: Mobile basso appeso, mensole orizzontali, TV 65" appesa su pannello con LED.
o Elemento Centrale: Mantenimento della Stufa in Maiolica esistente.
• Cucina:
o Mobili dal taglio moderno e completamente attrezzata.
o Presenza di una Zona Tavolo/Giro-panca in legno (come indicato in planimetria).
2. Finiture e Materiali (Stile Lussuoso e Montano)
Si richiede l'uso di finiture lussuose, combinando modernità e tradizione alpina.
• Pavimento: Parquet in rovere effetto rustico con nodi e stuccature.
• Pareti:
o Utilizzo di carta da parati con effetti damascati o simili su alcune pareti (ad esempio, la parete TV (65"), come indicato).
o Inserimento di elementi di boiserie in legno (stesso rovere del pavimento) attorno alla zona panca in cucina.
• Porte Interne e Battiscopa: Colore Bianco.
• Altezza Piano: h = 2.75 metri
3. Arredamento Esistente e Nuovo
Elemento Status Specifiche Richieste
Stufa Mantenuta Posizione centrale.
Divano (Blu) Mantenuto Profondità 1.10 m, Lunghezza 2.10 m.
Poltrona #1 Ricavata (Blue) Dimensioni 1.10 m \1.20 m.
Poltrona #2 Nuova (Beige) Dimensioni 0.75 m\0.75 m.
Resto Arredo Nuovo Tutto l'arredamento, escluse le sedute sopra indicate, sarà sostituito.
4. Dettagli Strutturali e Illuminazione
• Controsoffitto: Necessario per mascherare la trave a spessore centrale e definire/separare le funzioni di Soggiorno/Pranzo/Ingresso.
o Si valuta l'uso del rovere (come il pavimento) per la realizzazione di alcune zone del controsoffitto.
• Illuminazione:
o Zona Soggiorno/TV: Strisce LED per illuminazione diffusa e scenografica.
o Zona Tavolo Cucina (Giro-panca): Lampadario discendente centrale al tavolo.
Richiesta all'Architetto: Si richiede un progetto che rispetti le linee guida fornite, creando un ambiente scenografico e di alto livello. Sono benvenute proposte alternative che possano migliorare il risultato finale, mantenendo lo spirito lussuoso, moderno e alpino del briefing.
Grazie