
Paderno Dugnano, MI, Italia
Residenziale - Appartamento
Descrizione
ENG:
Merging of two apartments. Ultra-modern and minimalist style.
The positioning of the windows and doors is yet to be defined.
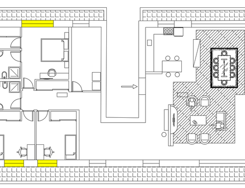
As shown in the floor plan, we would like glass walls overlooking the terraces, especially in the living area.
All other openings will be French doors, as they will provide access to the terrace that runs along the entire perimeter.
The kitchen and living area will form a single open space.
We require:
One master bedroom with walk-in closet and private bathroom
Two bedrooms for children
Main bathroom
A laundry room that is livable and functional (with space to hang clothes)
SPA:
Unificación de dos apartamentos. Estilo ultramoderno y minimalista.
La ubicación de las aberturas (puertas y ventanas) aún está por definirse.
Según el plano, nos gustaría tener ventanales hacia las terrazas, especialmente en la zona de estar.
Todas las demás aberturas serán puertas ventana, ya que darán acceso a la terraza que recorre todo el perímetro.
La cocina y el salón estarán integrados en un solo ambiente abierto.
Solicitamos:
Un dormitorio principal con vestidor y baño en suite
2 dormitorios para los niños
Un baño principal
Un lavadero habitable, con espacio para tender la ropa
ITA:
Accorpamento di 2 appartamenti. Stile ultra moderno e minimale.
posizione dei serramenti ancora da definire . Come da pianta vorremmo vetrate sulle terrazze soprattutto nella zona giorno.Tutte le altre saranno portefinestre poichè daranno accesso al terrazzino su tutto il perimetro. Cucina e living ambiente unico. Richiediamo :
Camera matrimoniale con cabina armadio e bagno ad uso esclusivo.
n° 2 camerette ragazzi
bagno padronale
locale lavanderia che sia vivibile (con possibilità di stesura panni)