
Pachino, SR, Italia
Residenziale - Appartamento
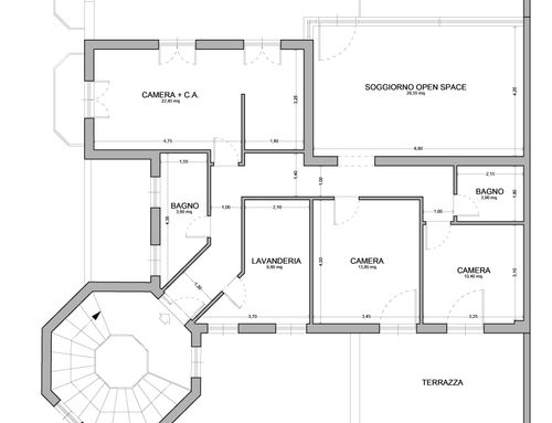
Descrizione
ENG:
Subdivision of an apartment currently in a raw/unfinished state, with the obligation to respect the existing openings. The kitchen must be placed where indicated. I would like to create one master bedroom, two kids’ bedrooms, a small bathroom, a main bathroom, and a laundry room of at least 10 square meters.
SPA:
Fraccionamiento de un apartamento actualmente en estado rústico/obra gris, con la obligación de respetar las aberturas existentes. La cocina debe colocarse donde está indicada. Me gustaría realizar un dormitorio principal, dos habitaciones infantiles, un baño pequeño, un baño principal y una lavandería de al menos 10 metros cuadrados.
ITA:
frazionamento di un appartamento attualmente al rustico, obbligo di rispettare le aperture, posizionare cucina dove indicata, vorrei realizzare una camera da letto, 2 camerette, un bagnetto, un bagno ed una lavanderia di almeno 10 metri.