
97016 Pozzallo, Province of Ragusa, Italy
Residenziale - Appartamento
Descrizione
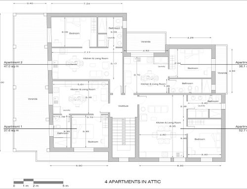
Ho un piano mansardato coperto di circa 200mq, questo eā ancora un rustico non finito, vorrei sistemarlo in maniera di avere quattro appartamentini con cucina/sala, camera da letto e bagno e magari piccolo ripostiglio se lo spazio disponibile lo concede. Tutte e quadro le unita abitative avranno in comune le scale d'ingresso. Al lasto nord e' presente una veranda che verra' proseguita fino alla fine della casa, le misure del prolungamento non sono ancora state confermate ma dovrebbere essere non inferiore della meta' di quella esistente. Attualmente non ho i disegni in DWG da caricare nel sistema, spero di averli prima del nuovo anno. Mi scuso anticipatamente di questo. Buon Lavoro a Tutti e non esitate a fare delle domande in proposito.
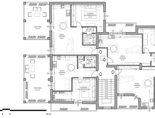
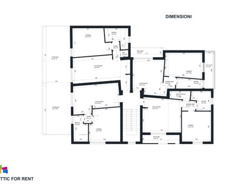
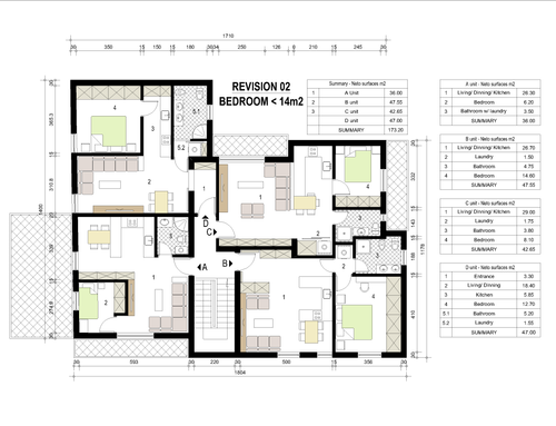
1 Jan 2019: Ho aggiunto alcuni disegni, tra cui l'idea del mio tecnico.
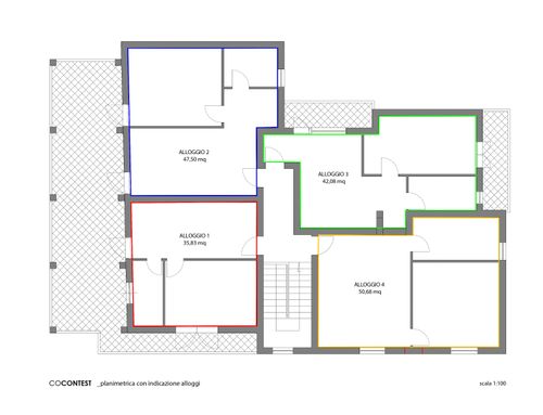
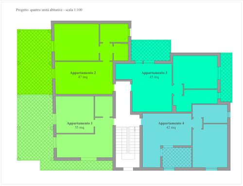
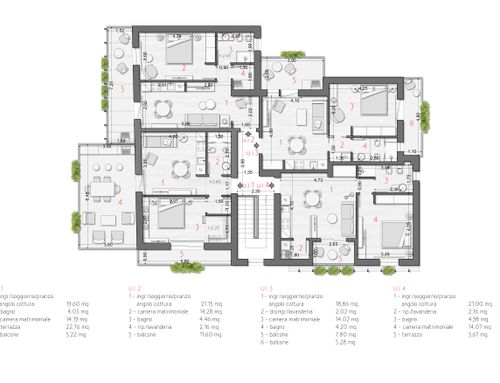
8th Jan 2019: Nota 1: Attualmente il piano interessato e' senza mura divisorie interne (visibile dalle foto). Il progetto DWG postato e' la proposta del mio tecnico. I progettisti hanno quindi liberta' sulla disposizione interna, ma con il mio unico vincolo di avere quattro (4) appartamentini con una camera da letto matrimoniale.
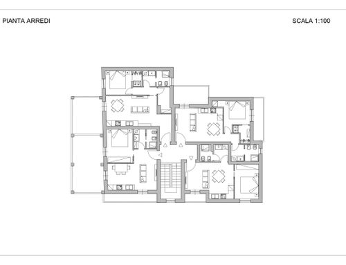
9th Jan.: Il disegno in DWG da me postato mostra l'idea del mio Tecnico, come scritto su' non siamo vincolati a mantenere questa divisione. Inoltre se necessario e solo per ottimizzare tutti gli spazi sono propenso a chiudere o fare nuove aperture (finestre) nelle mura esterne, ovviamente se consentito dalla legge.
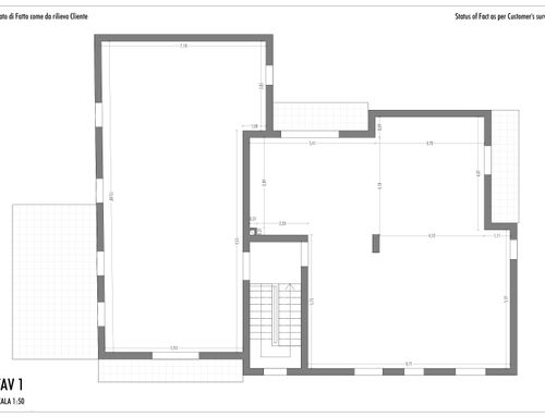
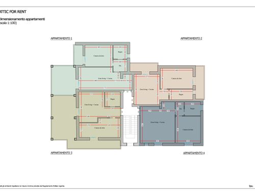
12th Feb: Ho postato due foto delle planimetrie (zona Sx e Zona Dx) con le misure da me rilevate. Scusate in anticipo se poco comprensibili, ma non esitate a chiedere per ulteriori misure.
-----------------------------------------------------
ENG
I have a covered attic floor of about 200sqm, this is still an unfinished rustic, I would like to arrange it in such a way to have four apartments with kitchen / living room, bedroom and bathroom and maybe small closet if the available space allows it. All the apartments will have the entrance stairs in common. At the northern lasto there is a veranda that will be continued until the end of the house, the measures of the extension have not yet been confirmed but should be not less than half of the existing one. Currently I do not have the drawings in DWG to load in the system, I hope to have them before the new year. I apologize in advance of this. Good job to all and do not hesitate to ask questions about it.
1 Jan 2019: I added some drawing, there is also the suggestion from my Expert.
8th Jan 2019: Please be aware that presently there are none internal walls ( as showed in posted pictures). Designer is free to come with his idea, keeping in mind that I'm looking for four (4) small apartments with a (1) bedroom.
9th Jan.: The drawing in DWG posted by me shows the idea of my Technician, as written on 'we are not bound to maintain this division. Moreover, if necessary and only to optimize all the spaces, I am inclined to close or make new openings (windows) in the outer walls, obviously if permitted by law.
12th Feb: I posted two photos of the plans (Left and Right area) with the measurements taken by me. Sorry in advance if poorly understood, but do not hesitate to ask for further measures.