
Rocca di Papa, RM, Italia
Residenziale - Stanza
Descrizione
ENG:
PROJECT DESCRIPTION
I am looking for a conceptual interior architecture proposal to redesign the wall surfaces and overall visual identity of my main entrance and circulation area.
At this stage, I am not looking for a scaled technical layout or millimetric drawings.
What I need is a clear design direction: proposals for materials, finishes, textures and color palettes for the space, with concrete suggestions on surface treatments (e.g. wallpaper, decorative paints, 3D panels, cladding systems or similar).
The focus should be on defining atmosphere and visual coherence, including how to treat key surfaces differently (e.g. entrance wall vs. remaining walls), and whether the column should be integrated or used as an accent element.
All proposed materials and finishes should be easily and realistically sourced in Italy.
This is a mid-century house (original 1960s architectural project). The current space has white walls and a strong material character:
– Natural oak wood flooring in the entrance and living areas
– Cement tiles in the kitchen
– Natural travertine for stairs and architectural transitions
– White walls and white doors
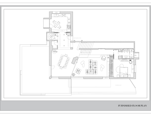
The entrance is a central distribution hub connecting multiple directions and levels. The redesign should create a stronger architectural identity, improve coherence between the different openings, and enhance the perception of the volumes.
The space includes:
– Main entrance door (will soon be replaced with a flush internal door opening inward, on the side where the green floor lamp is currently located)
– Double glass sliding doors leading to the kitchen
– A large open passage (over 3 meters wide) leading to the dining room
– A spiral staircase leading to the attic (opening diameter: 140 cm)
– An open vertical connection toward the staircase leading to the sleeping area
Key dimensions:
– Wall with the main entrance door: 196 cm wide, 280 cm high
– Spiral staircase opening: 140 cm diameter
The intervention is not structural: no walls will be moved. The focus is entirely on architectural surface design, such as:
– Wall cladding systems
– Architectural paneling and integrated door solutions
– Paint schemes and textured finishes
– Integration of the new flush entrance door into a coherent wall concept
– Redesign of the existing slatted wood wall (currently made of acoustic wood panels) which hides a service-area door. This wall can be completely changed and integrated into the new concept
– Lighting suggestions, including the possibility of integrated LED lines or wall lighting to enhance the entrance area
The goal is to create a refined, cohesive, and architecturally strong entrance identity, consistent with the mid-century spirit of the house, while maintaining elegance, warmth, and spatial clarity.
Please note: the kitchen door is a recessed pocket sliding door, with two pocket housings of approximately 80 cm on the left and on the right. I would like to use the approx. 78 cm wall section for a small entry console / catch-all shelf and integrated spotlights, so the green floor lamp can be removed.
Note: the steel radiator to the left of the entrance door can be removed if needed. It can be replaced with a freestanding fan coil unit to be positioned along the 73 cm wall section to the right of the kitchen door.
Finally, the decision to replace the current security entrance door with a flush-to-the-wall model, featuring concealed hinges integrated within the wall, is intended to make the door virtually disappear once inside the home. This allows the space to fully assume its role as a connecting hub between the different areas of this floor, without visual interruptions.
SPA:
Estoy buscando una propuesta conceptual de arquitectura de interiores para rediseñar las superficies verticales y la identidad visual general de mi entrada principal y del área de circulación.
En esta fase no busco un plano técnico a escala ni dibujos milimétricos.
Lo que necesito es una dirección de diseño clara: propuestas de materiales, acabados, texturas y paletas de color para el espacio, con sugerencias concretas sobre tratamientos de superficies (por ejemplo, papel pintado, pinturas decorativas, paneles 3D, sistemas de revestimiento o similares).
El enfoque debe centrarse en definir la atmósfera y la coherencia visual, incluyendo cómo tratar de manera diferenciada las superficies clave (por ejemplo, la pared de entrada frente al resto de paredes) y si la columna debe integrarse o utilizarse como elemento de acento.
Todos los materiales y acabados propuestos deben poder conseguirse fácilmente y de forma realista en Italia.
Se trata de una vivienda de mediados de siglo (proyecto arquitectónico original de los años 60). El espacio actual presenta paredes blancas y un fuerte carácter material:
– Suelo de roble natural en la entrada y las zonas de estar
– Baldosas hidráulicas en la cocina
– Travertino natural en escaleras y transiciones arquitectónicas
– Paredes y puertas blancas
La entrada es un núcleo central de distribución que conecta múltiples direcciones y niveles. El rediseño debe crear una identidad arquitectónica más sólida, mejorar la coherencia entre las distintas aperturas y reforzar la percepción de los volúmenes.
El espacio incluye:
– Puerta principal de entrada (que pronto será sustituida por una puerta enrasada interior, con apertura hacia el interior, en el lado donde actualmente se encuentra la lámpara de pie verde)
– Puertas correderas dobles de vidrio hacia la cocina
– Gran paso abierto (más de 3 metros de ancho) hacia el comedor
– Escalera de caracol que conduce al ático (diámetro de apertura: 140 cm)
– Conexión vertical abierta hacia la escalera que conduce a la zona de dormitorios
Dimensiones clave:
– Pared con la puerta principal: 196 cm de ancho, 280 cm de alto
– Apertura de la escalera de caracol: diámetro 140 cm
La intervención no es estructural: no se moverán paredes. El enfoque está completamente centrado en el diseño arquitectónico de las superficies, tales como:
– Sistemas de revestimiento mural
– Panelados arquitectónicos y soluciones integradas puerta-pared
– Esquemas de pintura y acabados texturizados
– Integración de la nueva puerta enrasada en un concepto coherente
– Rediseño de la actual pared de listones de madera (actualmente paneles acústicos) que oculta una puerta de servicio. Esta pared puede transformarse completamente e integrarse en el nuevo concepto
– Sugerencias de iluminación, incluida la posibilidad de líneas LED integradas o iluminación mural para realzar la zona de entrada
El objetivo es crear una identidad de entrada refinada, cohesionada y arquitectónicamente sólida, coherente con el espíritu mid-century de la casa, manteniendo elegancia, calidez y claridad espacial.
Nota: la puerta de la cocina es una puerta corredera empotrada, con dos casetones de aproximadamente 80 cm a la izquierda y a la derecha. Me gustaría utilizar el tramo de pared de aproximadamente 78 cm para una pequeña consola / repisa recibidor con focos integrados, de modo que se pueda eliminar la lámpara de pie verde.
Nota: el radiador de acero a la izquierda de la puerta de entrada puede retirarse si es necesario. Puede sustituirse por un fan coil de suelo que se colocaría en el tramo de pared de 73 cm a la derecha de la puerta de la cocina.
Por último, la decisión de sustituir la actual puerta blindada por un modelo enrasado con la pared, con bisagras ocultas integradas en el muro, tiene como objetivo que la puerta desaparezca visualmente desde el interior de la vivienda. De este modo, el espacio podrá asumir plenamente su papel como núcleo de conexión entre las distintas áreas de esta planta, sin interrupciones visuales.
ITA:
Sto cercando una proposta concettuale di interior architecture per riprogettare le superfici verticali e l’identità visiva complessiva del mio ingresso principale e dell’area di distribuzione.
In questa fase non sono interessato a un layout tecnico in scala o a disegni millimetrici.
Ciò di cui ho bisogno è una chiara direzione progettuale: proposte di materiali, finiture, texture e palette cromatiche per lo spazio, con suggerimenti concreti sui trattamenti delle superfici (ad esempio carta da parati, pitture decorative, pannelli 3D, sistemi di rivestimento o simili).
L’attenzione dovrebbe essere rivolta alla definizione dell’atmosfera e della coerenza visiva, includendo indicazioni su come trattare in modo differenziato le superfici chiave (ad esempio la parete dell’ingresso rispetto alle altre pareti) e se la colonna debba essere integrata o valorizzata come elemento di accento.
Tutti i materiali e le finiture proposti devono essere facilmente e realisticamente reperibili in Italia.
Si tratta di una casa di metà secolo (progetto architettonico originale anni ’60). Lo spazio attuale presenta pareti bianche e un forte carattere materico:
– Pavimento in rovere naturale nelle zone ingresso e soggiorno
– Cementine in cucina
– Travertino naturale per scale e passaggi architettonici
– Pareti e porte bianche
L’ingresso è un nodo centrale di distribuzione che collega diverse direzioni e livelli. Il progetto dovrebbe creare un’identità architettonica più forte, migliorare la coerenza tra le diverse aperture e valorizzare la percezione dei volumi.
Lo spazio include:
– Porta d’ingresso principale (che sarà presto sostituita con una porta filo muro interna, con apertura verso l’interno, sul lato dove attualmente si trova la lampada da terra verde)
– Doppia porta scorrevole in vetro verso la cucina
– Ampio passaggio aperto (oltre 3 metri di larghezza) verso la sala da pranzo
– Scala a chiocciola che conduce alla mansarda (diametro apertura: 140 cm)
– Collegamento verticale aperto verso la scala che conduce alla zona notte
Dimensioni principali:
– Parete con porta d’ingresso: 196 cm di larghezza, 280 cm di altezza
– Apertura scala a chiocciola: diametro 140 cm
L’intervento non è strutturale: non verranno spostate pareti. Il focus è esclusivamente sul design architettonico delle superfici, quali:
– Sistemi di rivestimento a parete
– Boiserie architettoniche e soluzioni integrate porta-parete
– Schemi cromatici e finiture materiche
– Integrazione della nuova porta filo muro in un concept coerente
– Ripensamento della parete attualmente rivestita con pannelli in legno listellare (oggi pannelli fonoassorbenti) che nasconde una porta di servizio. Questa parete può essere completamente riprogettata e integrata nel nuovo concept
– Suggerimenti illuminotecnici, inclusa la possibilità di linee LED integrate o illuminazione a parete per valorizzare l’area ingresso
L’obiettivo è creare un’identità d’ingresso raffinata, coesa e architettonicamente forte, coerente con lo spirito mid-century della casa, mantenendo eleganza, calore e chiarezza spaziale.
Si segnala che la porta della cucina è una porta scorrevole a scomparsa, con due controtelai di circa 80 cm a sinistra e a destra. Vorrei utilizzare la porzione di parete di circa 78 cm per inserire una piccola consolle / piano svuota-tasche con faretti integrati, in modo da poter eliminare la lampada da terra verde.
Nota: il radiatore in acciaio a sinistra della porta d’ingresso può essere rimosso, se necessario. Può essere sostituito con un fan coil a pavimento da posizionare lungo il tratto di parete di 73 cm a destra della porta della cucina.
Infine, la decisione di sostituire l’attuale porta blindata con un modello filo muro, dotato di cerniere a scomparsa integrate nella parete, è finalizzata a rendere la porta virtualmente invisibile una volta all’interno dell’abitazione. In questo modo lo spazio potrà assumere pienamente il proprio ruolo di nodo di connessione tra le diverse aree di questo piano, senza interruzioni visive.