
Milano, MI, Italia
Residenziale - Appartamento
Descrizione
ENG:
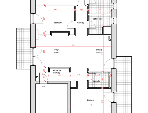
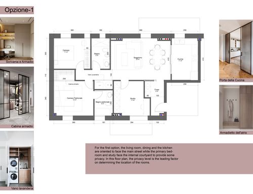
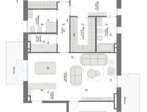
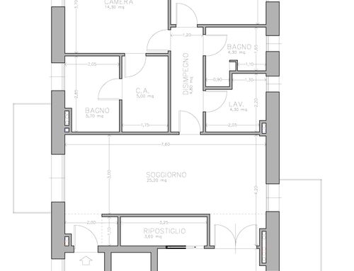
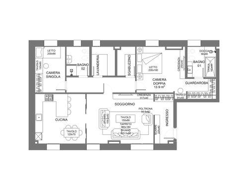
it is an apartment under construction, a four-room apartment of about 110 square meters, that is, 2 bedrooms, a small study, two bathrooms, a living room and a kitchen, I don't like the proposed internal project, I would like to create a laundry room, even a small one, and a closet, a small entrance / wardrobe, a separate kitchen that has continuity with the living room and keep the two bedrooms and if it were possible I would also like to evaluate a bathroom in the master bedroom suite,
one bathroom must have a tub
SPA:
Es un apartamento en construcción, un apartamento de cuatro habitaciones de unos 110 metros cuadrados, es decir, dos dormitorios, un pequeño estudio, dos baños, sala y cocina. No me gusta el proyecto interior propuesto. Me gustaría crear un lavadero, aunque sea pequeño, y un armario, una pequeña entrada/armario, una cocina independiente que tenga continuidad con la sala y mantener los dos dormitorios. Si fuera posible, también me gustaría evaluar un baño en la suite del dormitorio principal. Uno de los baños debe tener bañera.
ITA:
si tratta di un appartamento in fase di costruzione un qadrilocale di circa 110mq ovvero 2 camere da letto un piccolo studio, due bagni sala e cucina abitabile, il progetto interno proposto non mi piace, vorrei ricavare la lavanderia . anche piccola ed uno sgabuzzino.,un piccolo ingresso / guardaroba , la cucina abitabile separata che abbia continuita' con il soggiorno. e mantenere le due camere da letto e se fosse possibile mi piacerebbe poter valutare anche un bagno nella suite matrimoniale,
un bagno dovra avere la vasca