🔥 CYBER MONDAY 24H: -60% su tutti i prezzi del sito! Solo fino a mezzanotte. Usa il codice CYBERMONDAY25 👉🏼
img

Format Hotel

Pordenone, PN, Italia

Residenziale - Palazzo

Rashed Mohamed

  • architect
  • New Cairo, Egypt
Descrizione Progetto

Project Brief:
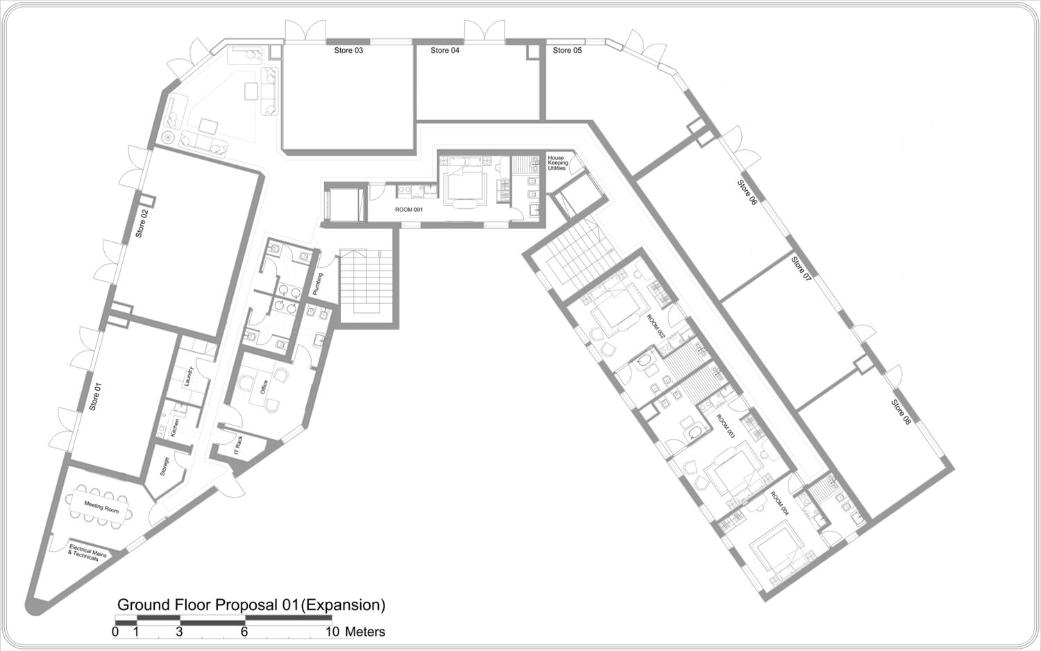
1. Ground Floor Planning: A Dual Approach
Two distinct proposals have been developed for the ground floor to balance operational efficiency with guest experience, while strictly preserving all original load-bearing walls:

Proposal 1 (Retail & Service Focus): Retains street-level commercial frontage for profitability. It includes a dedicated office, a meeting room, a lounge, and a versatile, large space designed to serve as a Central Kitchen.

Proposal 2 (Integrated Hotel Concept): Transforms the ground floor into high-end hotel rooms and essential service areas, prioritizing privacy and luxury through strategic design.

2. Staff & Logistics
Both proposals include a dedicated rear entrance for staff and administrative personnel to ensure smooth logistics without crossing paths with hotel guests.

3. Architectural Style & Façade Design
Entrance: Strategically positioned on the corner to create a luxurious arrival sequence with a sophisticated night lighting scheme.

Windows & Symmetry: The façades follow a precise modular system. We have maintained original window levels at 1 meter, adding French window railings to enhance the aesthetic without compromising structural integrity.

Structural Integrity: All designs respect the existing building skeleton. No load-bearing walls are demolished.

4. Technical & Functional Logic
The ground floor serves as the technical heart, integrating:

Meeting Room & IT Rack Room.

Utility Hub: Dedicated rooms for Plumbing & Boilers and an Electrical Room.

Plumbing Logic: Interconnected systems for maximum efficiency. All bathrooms prioritize natural light and ventilation where possible.

Guest Amenities: Integrated countertops and kitchenettes in all rooms (except small singles).

5. Suite Variety
The plan includes a diverse range of accommodations, specifically Couples Suites and Quadruple Family Suites, to cater to different guest demographics and ensure maximum occupancy.

6. Flexible Standard Rooms
A key feature of the design is the Flexibility of Standard Rooms. These units are engineered to accommodate either two single beds or one large double bed. This allows the hotel to adapt its inventory instantly to meet guest needs and booking demand.

7. Style Continuity & "Luxury Home" Feel
The design rigorously adheres to the requested references, creating a cohesive "Luxury Home" atmosphere in which new additions feel like a natural evolution of the original structure.

8. Future Expansion (Phase 2)
The plan is meticulously structured for seamless integration with the adjacent building. This modular expansion allows for a significant increase in room count with minimal structural modifications.

Leggi di Più