
Pordenone, PN, Italia
Residenziale - Palazzo
La nostra proposta progettuale cerca di ristrutturare l'edificio esistente secondo i desiderata del cliente, seguendo criteri che ne garantiscano l'effettiva fattibilità.
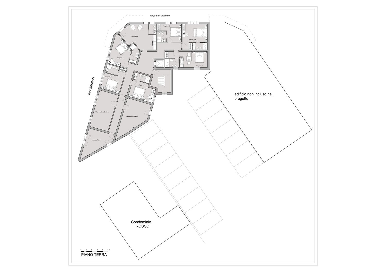
Innanzitutto, abbiamo operato alcune revisioni nell'assetto distributivo delle camere, per dare migliori immagine e fruibilità all'immobile. Ad esempio, abbiamo modificato il disimpegno in corrispondenza delle unità alloggio 1 e 3, consentendo ad entrambe accesso dall'interno ed evitando che per entrare all'unità 1 si sia costretti ad uscire all'aperto e a passare davanti all'unità 3 (cose che, a nostro parere, mal s'intonano con l'idea di un hotel di gamma, che necessita di comodità e privacy per tutte le unità); abbiamo reso la torre scala protetta e coperta (dai disegni ricevuti, non si capiva se fosse al coperto o all'aperto), dotata di finestre al piano e adatta anche dal punto di vista della sicurezza antincendio.
Abbiamo utilizzato il più possibile le posizioni delle murature interne, soprattutto di quelle che, per il loro spessore, appaiono come portanti, limitandoci a poche necessarie cerchiature e ad intervenire prevalentemente sulle tramezze. Abbiamo inoltre creato un sistema di tramezzatura consono alla funzione alberghiera, con tramezze semplici (10 cm) per l'interno delle unità, e a spessore aumentato (15 cm) con dotazione fonoisolante per le suddivisioni fra unità e verso gli spazi di passaggio.
Al piano terra, abbiamo convertito le vetrine esistenti in finestre, per non perdere luminosità ma impedire l'accesso dall'esterno. A questo livello, infissi e vetri saranno anti intrusione e antisfondamento.
Le stanze del boutique hotel saranno di diversa metratura e tipologia: camere standard deluxe doppia e singola, junior suites, junior suites doppie comunicanti, golden suites con angolo cottura e platinum suites con mini cucina deluxe e salottino. Quest'ultima tipologia è l'unica ad avere un bagno dotato di vasca idromassaggio.
Il piano terra sarà in parte dedicato allo spazio servizi ed amministrazione; l'accesso avverrà dall'angolo fra via Oberdan Largo San Giacomo, con un'ampia hall dotata di spazio locker dedicato alla clientela, e un bagno di servizio.
Le finiture saranno di pregio, con gres effetto marmo e travertino, particolari in legno naturale e tocchi metallici dorati o neri satinati nelle maniglierie e negli accessori e rubinetterie.
Arredi di alta gamma con alcune realizzazioni custom, colori prevalentemente chiari e neutri per dare un'aura di eleganza senza tempo.