
Pordenone, PN, Italia
Residenziale - Palazzo
Dear client,
I am pleased to confirm that all the clientโs requested requirements have been carefully studied and successfully implemented in this hotel project.
The design fully reflects the specific functional and aesthetic criteria requested, with solutions tailored to enhance spatial flow, guest comfort, and overall hospitality experience. Each requirement discussed during the briefing phase has been translated into practical and well-integrated design solutions within the project.
The project has been delivered in alignment with the agreed scope, vision, and operational objectives,
#ูExterior Elevation:
The hotel faรงade reflects a refined Neo-Classical European style, combining timeless elegance with modern renovation standards. The design emphasizes symmetry, proportion, and architectural detailing to create a strong and prestigious visual identity.
Natural stone cladding in warm beige tones enhances the sense of luxury, while decorative cornices, framed windows, and wrought-iron balconies add depth and sophistication. The main entrance is visually highlighted with a grand architectural frame and warm lighting, creating a welcoming and upscale arrival experience.
Key Design Features
Timeless and elegant architectural language
Strong street presence, especially at the corner location
Balanced proportions and symmetrical composition
Enhanced main entrance for a premium hospitality identity
Durable, high-quality materials ensuring long-term value
#ูEntrance:
The project revitalizes the hotel through a refined Neo-Classical exterior and an elegant contemporary-classic interior approach.
The faรงade enhances the buildingโs presence with symmetrical composition, natural stone finishes, and a grand highlighted entrance that reinforces a strong hospitality identity.
The entrance lobby was redesigned to create a warm, luxurious first impression using layered lighting, premium materials, and balanced proportions. Two layout options were developed โ with and without a reception desk โ ensuring operational flexibility for future needs.
Overall, the renovation elevates the hotelโs image, market positioning, and long-term value while maintaining timeless architectural character.
#Bedroom:
The guest room was designed with a soft contemporary style that reflects comfort, simplicity, and refined elegance. A neutral color palette, layered lighting, and clean-lined furniture create a calm and inviting atmosphere aligned with the clientโs requested aesthetic.
All furniture and soft furnishings were carefully sourced from selected suppliers offering high-quality pieces at competitive prices, ensuring both design integrity and cost efficiency. The selected items harmonize perfectly with the overall hotel identity and interior concept.
Multiple furnishing options were also presented, giving the client flexibility in style, budget, and final selection without compromising the design language.
Bedroom Furniture Links:(we tried to get most furniture items from the same place, thats make it match together
1- Nuala 2-seater sofa bed in pearl-coloured chenille 184cm
https://kavehome.com/en/en/p/nuala-2-seater-sofa-bed-in-pearl-coloured-chenille-184cm?material_fabric=kavehome%3AMTK0428
2-Martina grey bouclรฉ armchair with cushion FSC Mix Credit
https://kavehome.com/en/en/p/martina-grey-boucle-armchair-with-cushion-fsc-mix-credit?material_fabric=kavehome%3AMTK0490
3-Wall light to the TV wall
https://www.leroymerlin.it/prodotti/applique-dralo-ottone-1x-e14-inspire-91238026.html
4- Flower bot
https://www.zarahome.com/i%20t/en/vases-decorative-n1010
5-Four Lighting items for bedrooms
https://www.zarahome.com/it/en/lighting-lamps-n4847
6- Vintage mirror for decor
https://www.zarahome.com/it/en/vintage-mirror-l44318106?ct=true&categoryId=1020264592&pelement=475400229&colorId=990
7-photos frames for decor
https://www.zarahome.com/it/en/home-decor-photo-frames-n1000
8-Rug
https://www.zarahome.com/it/en/block-print-cotton-rug-l47106029?ct=true&pelement=475379456&colorId=999
9-Tables
https://www.zarahome.com/it/en/furniture-coffee-tables-n4896
--------------------------------------------
#Bathroom:
The bathroom was designed to reflect refined luxury and ultimate comfort, combining premium materials with a clean, elegant layout. Large-format marble finishes create a seamless, sophisticated backdrop, while brushed gold fixtures add warmth and a high-end hospitality touch.
The walk-in shower with glass partition enhances openness and spatial flow, while the floating vanity design adds lightness and modern elegance. Carefully integrated lighting and balanced proportions elevate the overall ambiance, creating a relaxing spa-like experience.
Overall, the bathroom delivers a sense of comfort, durability, and timeless sophistication aligned with the hotelโs upscale identity.
---------------------------------
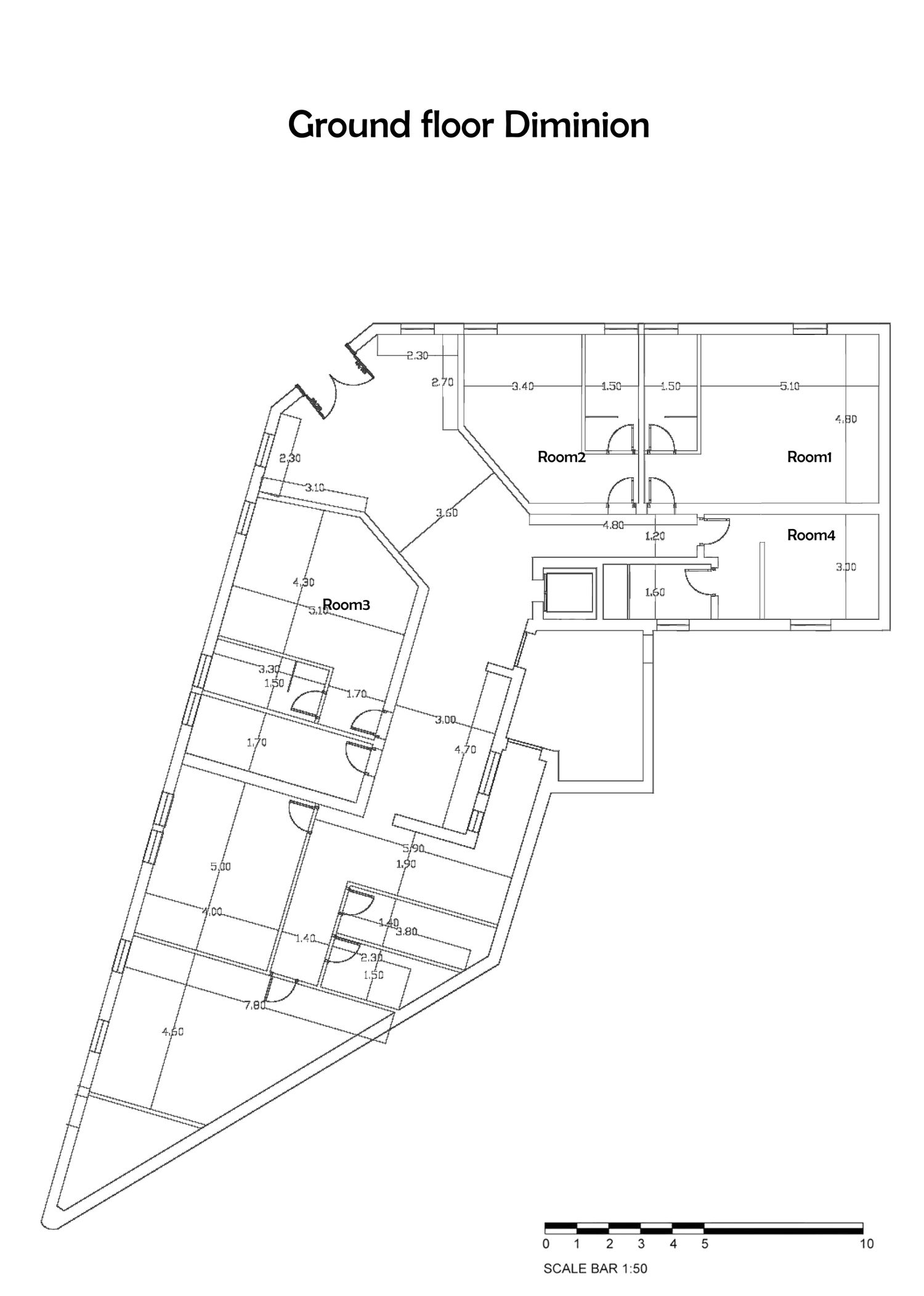
#Architecture plans proposals:
Ground floor: (4 roam)
We solve the sharp died angels in the roams to take them and make a small lobby in the entrance to give a more luxury to the hotel
{{We made four proposals so you can use them all or choose what is better for your needs}}
*01-Proposal ONE plan: (7 rooms), one roam taking the whole corner view making it very good suit
*02-Proposal TWO plan: (7 rooms), two roams sharing the corner view.
*03-Proposal Three plan: (6 rooms + apartment with two bedrooms one bathroom a kitchen)
*04-Proposal Four plan: (5 rooms + apartment with two bedrooms, two bathrooms, living room with a open kitchen)
--------------------
This renovation project elevates the hotelโs overall identity through a cohesive architectural and interior transformation.
The Neo-Classical faรงade enhances the buildingโs presence and strengthens its market positioning.
The lobby creates a refined and welcoming first impression with flexible operational options.
Guest rooms balance comfort, elegance, and functionality through a soft contemporary approach.
Premium materials and carefully sourced furnishings ensure quality with cost efficiency.
Overall, the project delivers timeless design, enhanced guest experience, and strong long-term investment value.
################
Gentile cliente,
Sono lieto di confermare che tutti i requisiti richiesti dal cliente sono stati attentamente studiati e implementati con successo in questo progetto alberghiero.
Il design riflette pienamente i criteri funzionali ed estetici specifici richiesti, con soluzioni su misura per migliorare la fluiditร degli spazi, il comfort degli ospiti e l'esperienza di ospitalitร complessiva. Ogni requisito discusso durante la fase di briefing รจ stato tradotto in soluzioni progettuali pratiche e ben integrate all'interno del progetto.
Il progetto รจ stato realizzato in linea con l'ambito, la visione e gli obiettivi operativi concordati.
#ูProspetto esterno:
La facciata dell'hotel riflette un raffinato stile neoclassico europeo, che combina un'eleganza senza tempo con moderni standard di ristrutturazione. Il design enfatizza simmetria, proporzioni e dettagli architettonici per creare un'identitร visiva forte e prestigiosa.
Il rivestimento in pietra naturale nei caldi toni del beige esalta il senso di lusso, mentre cornici decorative, finestre con cornice e balconi in ferro battuto aggiungono profonditร e raffinatezza. L'ingresso principale รจ visivamente evidenziato da una grande cornice architettonica e da un'illuminazione calda, creando un'esperienza di arrivo accogliente e di alto livello.
Caratteristiche principali del design
Linguaggio architettonico elegante e senza tempo
Forte presenza sulla strada, soprattutto nella posizione angolare
Proporzioni equilibrate e composizione simmetrica
Ingresso principale migliorato per un'identitร alberghiera di alto livello
Materiali durevoli e di alta qualitร che garantiscono un valore a lungo termine
#ูIngresso:
Il progetto rivitalizza l'hotel attraverso un raffinato esterno neoclassico e un elegante approccio interno classico-contemporaneo.
La facciata esalta la presenza dell'edificio con una composizione simmetrica, finiture in pietra naturale e un ingresso imponente e ben evidenziato che rafforza una forte identitร alberghiera.
La hall d'ingresso รจ stata riprogettata per creare una prima impressione calda e lussuosa, utilizzando un'illuminazione a strati, materiali di pregio e proporzioni equilibrate. Sono state sviluppate due opzioni di layout, con e senza reception, garantendo flessibilitร operativa per le esigenze future.
Nel complesso, la ristrutturazione migliora l'immagine dell'hotel, il suo posizionamento sul mercato e il suo valore a lungo termine, pur mantenendo un carattere architettonico senza tempo.
#Camera da letto:
La camera degli ospiti รจ stata progettata con uno stile contemporaneo e delicato che riflette comfort, semplicitร e raffinata eleganza. Una palette di colori neutri, un'illuminazione a piรน livelli e mobili dalle linee pulite creano un'atmosfera calma e accogliente, in linea con l'estetica richiesta dal cliente.
Tutti i mobili e gli arredi tessili sono stati accuratamente selezionati da fornitori selezionati che offrono pezzi di alta qualitร a prezzi competitivi, garantendo sia l'integritร del design che l'efficienza dei costi. Gli articoli selezionati si armonizzano perfettamente con l'identitร generale dell'hotel e il concept degli interni.
Sono state presentate anche diverse opzioni di arredamento, offrendo al cliente flessibilitร in termini di stile, budget e scelta finale, senza compromettere il linguaggio del design.
Link per mobili da camera da letto: (abbiamo cercato di procurarci la maggior parte dei mobili dallo stesso fornitore, in modo che siano coordinati)
1- Divano letto a 2 posti Nuala in ciniglia color perla 184 cm
https://kavehome.com/it/it/p/divano-letto-a-2-posti-nuala-in-ciniglia-color-perla-184cm?material_fabric=kavehome%3AMTK0428
2- Poltrona Martina in bouclรฉ grigio con cuscino FSC Mix Credit
https://kavehome.com/it/it/p/poltrona-martina-in-boucle-grigio-con-cuscino-fsc-mix-credit?material_fabric=kavehome%3AMTK0490
3- Applique per la parete TV
https://www.leroymerlin.it/prodotti/applique-dralo-ottone-1x-e14-inspire-91238026.html
4- Flower bot
https://www.zarahome.com/it/it/vasi-decorativi-n1010
5-Quattro articoli di illuminazione per la camera da letto
https://www.zarahome.com/it/it/illuminazione-lampade-n4847
6- Specchio vintage per l'arredamento
https://www.zarahome.com/it/it/specchio-vintage-l44318106?ct=true&categoryId=1020264592&pelement=475400229&colorId=990
7-Cornici per foto per l'arredamento
https://www.zarahome.com/it/it/home-decor-photo-frames-n1000
8-Tappeto
https://www.zarahome.com/it/it/tappeto-in-cotone-con-stampa-a-blocchi-l47106029?ct=true&pelement=475379456&colorId=999
9-Tavoli
https://www.zarahome.com/it/it/mobili-tavolini-n4896
--------------------------------------------
#Bagno:
Il bagno รจ stato progettato per riflettere un lusso raffinato e il massimo comfort, combinando materiali di alta qualitร con un layout pulito ed elegante. Le finiture in marmo di grande formato creano uno sfondo uniforme e sofisticato, mentre gli accessori in oro spazzolato aggiungono calore e un tocco di ospitalitร di alto livello.
La cabina doccia con divisorio in vetro esalta l'apertura e la fluiditร degli spazi, mentre il design del mobile lavabo sospeso aggiunge leggerezza ed eleganza moderna. L'illuminazione attentamente integrata e le proporzioni equilibrate esaltano l'atmosfera generale, creando un'esperienza rilassante simile a quella di una spa.
Nel complesso, il bagno offre un senso di comfort, resistenza e raffinatezza senza tempo, in linea con l'identitร esclusiva dell'hotel.
---------------------------------
#Proposte di progetto architettonico:
Piano terra: (4 camere)
Abbiamo eliminato gli angoli smussati delle camere, ricavandone una piccola hall all'ingresso per conferire un tocco di lusso all'hotel.
{{Abbiamo elaborato quattro proposte, cosรฌ puoi usarle tutte o scegliere quella piรน adatta alle tue esigenze}}
*01- Proposta UNICA planimetria: (7 camere), una camera che occupa l'intera vista angolare, rendendola molto adatta
*02- Proposta DUE planimetria: (7 camere), due camere che condividono la vista angolare.
*03- Proposta Tre planimetria: (6 camere + appartamento con due camere da letto, un bagno e una cucina)
*04- Proposta Quattro planimetria: (5 camere + appartamento con due camere da letto, due bagni, soggiorno con cucina a vista)
--------------------
Questo progetto di ristrutturazione valorizza l'identitร complessiva dell'hotel attraverso una trasformazione architettonica e degli interni coerente.
La facciata neoclassica valorizza la presenza dell'edificio e ne rafforza il posizionamento sul mercato. La hall crea una prima impressione raffinata e accogliente, con opzioni operative flessibili.
Le camere coniugano comfort, eleganza e funzionalitร attraverso un approccio contemporaneo e delicato.
I materiali di alta qualitร e gli arredi accuratamente selezionati garantiscono qualitร e convenienza.
Nel complesso, il progetto offre un design senza tempo, un'esperienza di soggiorno migliorata e un solido valore di investimento a lungo termine.