
Pordenone, PN, Italia
Residenziale - Palazzo
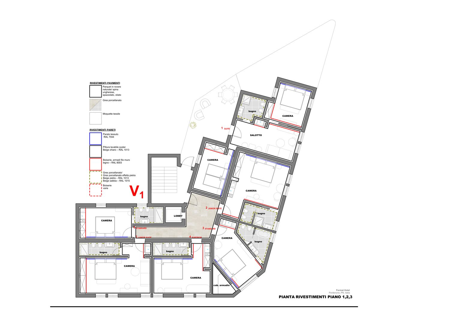
Il progetto propone la trasformazione dell’edificio in un hotel sobrio ed elegante, con un’organizzazione efficiente degli spazi e flessibilità tipologica. Le camere d’angolo sono state convertite in suite per garantire maggiore privacy e la possibilità di una terrazza propria, posizionandole come unità premium nell’offerta.
La distribuzione per piano rimane adattabile: sono state sviluppate due varianti di layout per consentire la regolazione della proporzione tra camere standard, superior e suite, in base alla strategia finale (massimizzazione del numero di camere vs. posizionamento più luxury).
Gli arredi tecnici (armadiature, angoli cottura, porte scorrevoli) sono completamente integrati nelle pareti, fino al soffitto, in modo da non essere percepiti come elementi di arredo, ma come parte dell’architettura stessa. Cassaforte, frigorifero e zona bar sono inclusi in questi volumi integrati, mantenendo un’immagine pulita, coerente e raffinata.
Le aperture esistenti ai piani superiori non sono state modificate; in caso di un eventuale intervento futuro su di esse, l’espressione della facciata potrebbe acquisire ulteriore proporzione ed eleganza.
Dal punto di vista stilistico, gli interni seguono un linguaggio contemporaneo-elegante, con influenze luxury residenziali (riferimento Hyatt), in cui materiali caldi, legno, texture tessili e accenti metallici compongono un’atmosfera sofisticata ma controllata. La personalizzazione delle camere può avvenire attraverso variazioni cromatiche di pavimentazioni, tende e carte da parati, senza perdere l’unità dell’insieme.
Grazie!