🔥 CYBER MONDAY 24H: -60% su tutti i prezzi del sito! Solo fino a mezzanotte. Usa il codice CYBERMONDAY25 👉🏼
img

Format Hotel

Pordenone, PN, Italia

Residenziale - Palazzo

Hisham Ward

  • architect
  • kuwait, Kuwait
Descrizione Progetto

EN:
​This project involves transforming a building into a fully functional hotel. We redesigned everything from the exterior facades to the interior layouts.
The design is inspired by the Park Hyatt Milano style, with special architectural details on the corners and facades influenced by the Pordenone look.

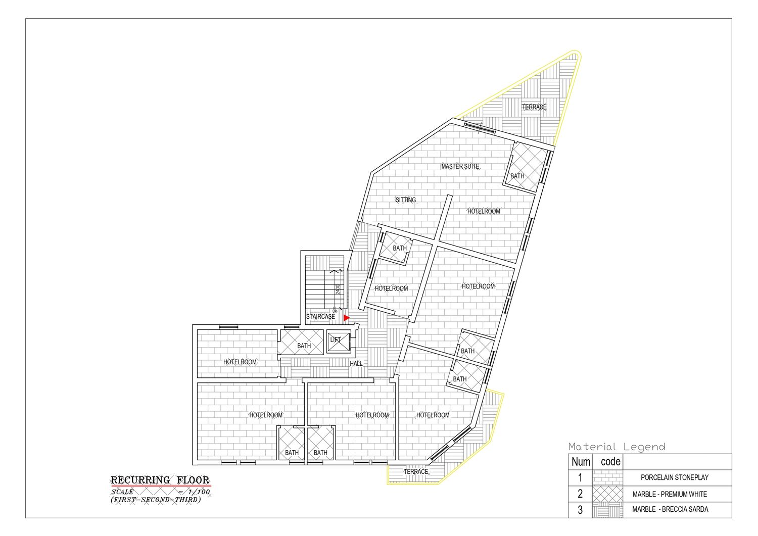
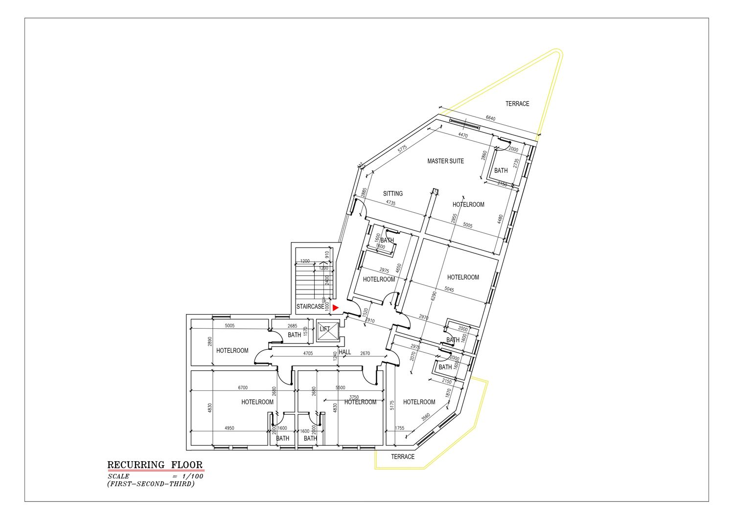
​Building Layout:
​Ground Floor:
The entrance features a reception area and a small lounge for guests. From there, a hallway leads to rooms on both sides, with easy access to the elevator and stairs.
Room Types: It includes double rooms, single rooms, and a Special Suite. This suite has two double bedrooms, two bathrooms, and a living area. It’s designed to be flexible: it can work as one big unit for a family or be divided into two separate rooms.

​1st, 2nd, and 3rd Floors:
These floors have a similar mix of rooms. We added private terraces for the suites and some rooms facing the main street to give guests a nice view and extra space.

​Room Features:
We designed every room to feel like a complete home, ensuring a comfortable stay. Each room includes:
​A small kitchenette and a private TV.
​A wardrobe and a desk (for work or as a vanity table).
​A private bathroom for every single room.

Flooring Design (Carpets):
To make the rooms even more comfortable, we covered all the floors with high-quality carpets (Moquette). We chose artistic patterns for the carpets to add a beautiful touch to each room. This also helps in making the rooms feel warmer, quieter, and more relaxing for the guests.

Our focus was to mix luxury with comfort. By using smart layouts and clean details (like the Park Hyatt style), we created a modern space that feels both high-end and welcoming.

IT:

Questo progetto prevede la trasformazione di un edificio in un hotel completamente funzionale. Abbiamo riprogettato ogni aspetto, dalle facciate esterne alla disposizione degli interni.
Il design si ispira allo stile del Park Hyatt Milano, con particolari dettagli architettonici sugli angoli e sulle facciate che richiamano lo stile di Pordenone.

Disposizione dell'edificio:
Piano terra:
L'ingresso ospita una reception e una piccola lounge per gli ospiti. Da lì, un corridoio conduce alle camere su entrambi i lati, con facile accesso all'ascensore e alle scale.
Tipologie di camere: Include camere doppie, singole e una Suite Speciale. Questa suite dispone di due camere matrimoniali, due bagni e una zona giorno. È progettata per essere flessibile: può essere utilizzata come un'unica grande unità per una famiglia o essere divisa in due camere separate.

1°, 2° e 3° piano:
Questi piani presentano un mix simile di camere. Abbiamo aggiunto terrazze private per le suite e alcune camere che si affacciano sulla strada principale per offrire agli ospiti una bella vista e spazio extra.

Caratteristiche delle camere:
Abbiamo progettato ogni camera per farla sentire come una vera e propria casa, garantendo un soggiorno confortevole. Ogni camera include:
Un piccolo angolo cottura e una TV privata.
Un armadio e una scrivania (per lavorare o come tavolo da trucco).
Un bagno privato per ogni singola camera.

Design dei pavimenti (moquette):
Per rendere le camere ancora più confortevoli, abbiamo rivestito tutti i pavimenti con moquette di alta qualità. Abbiamo scelto motivi artistici per i tappeti per aggiungere un tocco di eleganza a ogni camera. Questo contribuisce anche a rendere le camere più calde, silenziose e rilassanti per gli ospiti.

Il nostro obiettivo era unire lusso e comfort. Utilizzando layout intelligenti e dettagli puliti (come lo stile Park Hyatt), abbiamo creato uno spazio moderno che trasmette un'atmosfera di lusso e accogliente.

Leggi di Più