
Treviso, TV, Italia
Residenziale - Appartamento
Descrizione
ENG:
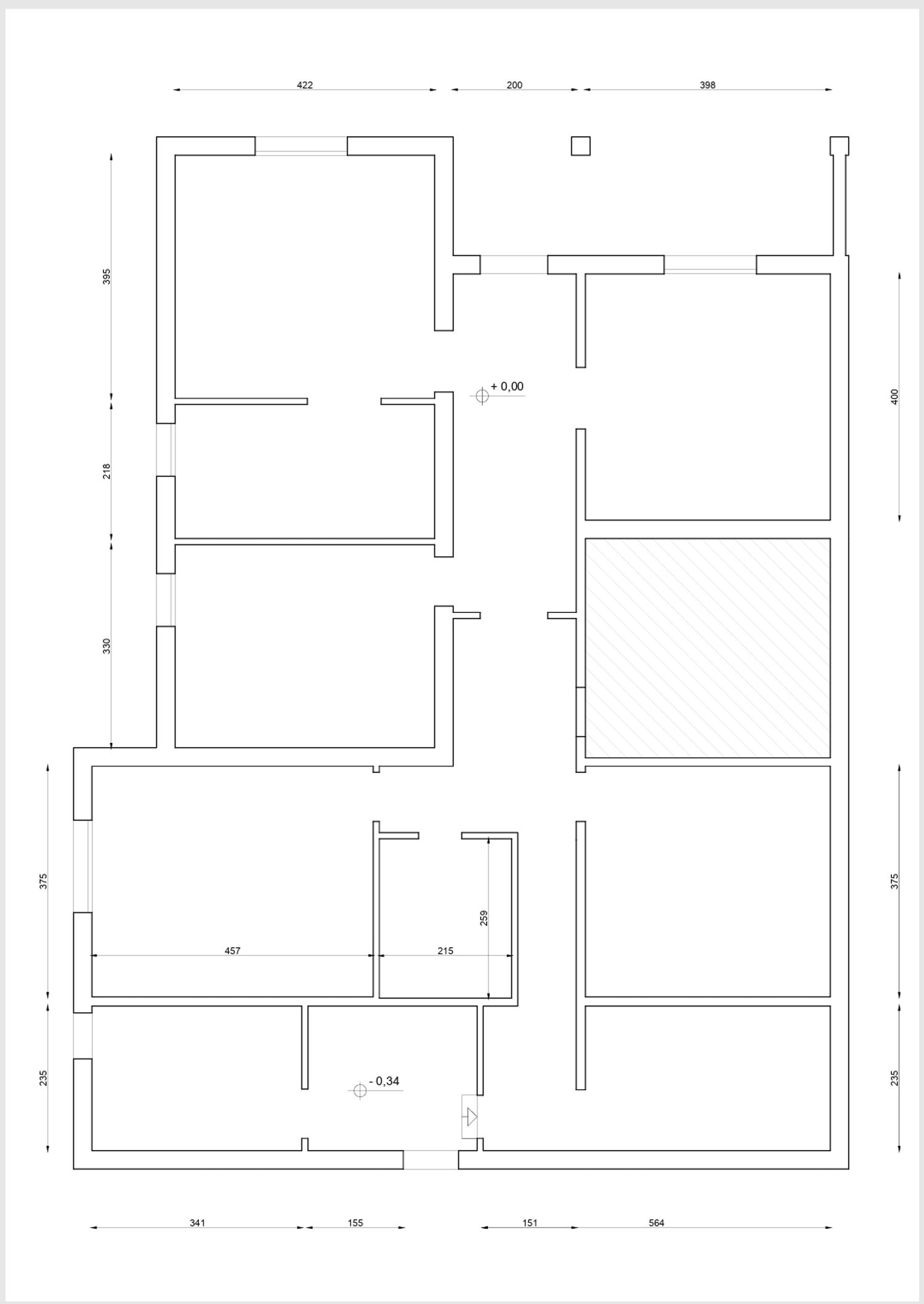
We have the ground floor of a two-storey family house to renovate.
The faรงade facing south overlooks a large garden, a view we would like to enhance. The house currently has a corridor leading to various rooms. We would like to create a large and bright living area, suitable for hosting dinners with family and friends, ideally with a view of the garden to the south. We like the idea of large windows.
We only need two bedrooms, one of which with a walk-in wardrobe.
We would also like a small guest bathroom for the living area, including a laundry space, and possibly an entrance area with built-in wardrobes for coats and shoes.
The house is raised by three steps, except for the eastern side where there is a cellar and then an area that returns to ground level. In the floor plan, the ground-level area is marked in yellow.
The load-bearing walls are shown in blue.
To the north and east, the house borders the property of the first floor, so it is not possible to open new doors on those sides.
The grey area refers to a service space belonging to the first floor, not included in the renovation project, but it has a connecting door that we would like to keep.
SPA:
Tenemos la planta baja de una casa familiar de dos plantas para reformar.
La fachada orientada al sur da a un gran jardรญn, una vista que nos gustarรญa potenciar. La casa actualmente tiene un pasillo que conduce a varias habitaciones. Nos gustarรญa crear una zona de estar amplia y luminosa, adecuada para recibir a familiares y amigos para cenas, idealmente con vistas al jardรญn hacia el sur. Nos gusta la idea de tener grandes ventanales.
Solo necesitamos dos dormitorios, uno de ellos con vestidor.
Tambiรฉn nos gustarรญa un pequeรฑo aseo de cortesรญa para la zona de dรญa, con espacio de lavanderรญa, y posiblemente una entrada con armarios empotrados para abrigos y zapatos.
La casa estรก elevada tres escalones, excepto en la parte este, donde hay un sรณtano y luego una zona que vuelve a estar a nivel del suelo. En el plano, la zona a ras de tierra estรก marcada en amarillo.
Los muros de carga estรกn seรฑalados en azul.
Al norte y al este, la casa limita con la propiedad de la planta primera, por lo que no es posible abrir nuevas puertas en esos lados.
La parte en gris corresponde a un espacio de servicio perteneciente a la planta primera, no incluido en la reforma, pero con una puerta de comunicaciรณn que nos gustarรญa conservar.
ITA:
Abbiamo il piano terra di una casa familiare su due piani da ristrutturare. La facciata che dร verso sud, ha un ampio giardino davanti, una vista che ci piacerebbe valorizzare. La casa attualmente ha un corridoio che porta a varie stanze. Ci piacerebbe una zona giorno ampia e luminosa, per ospitare cene con famiglie e amici, possibilmente con vista giardino che si estende a sud, ci piace l'idea di ampie vetrate, ci bastano due camere da letto, di cui una con cabina armadio, ci piacerebbe avere un bagnetto di servizio per la zona giorno con lavanderia e possibilmente un ingresso con armadiatura per riporre giacche e scarpe. La casa รจ soprelevata di tre gradini, tranne la parte a est dove c'รจ una cantina e poi si ha una zona che torna raso terra. Nella planimetria la zona raso terra รจ segnata in giallo. I muri portanti sono segnati in blu. A nord e a est la casa confina con la proprietร del piano primo, quindi non รจ possibile aprire porte. La parte in grigio si riferisce ad uno spazio di servizio del piano primo, non incluso nella casa da ristrutturare, ma con una porta di accesso comunicante che vorremmo preservare.