
Porto Viro, RO, Italia
Residenziale - Villa
Descrizione
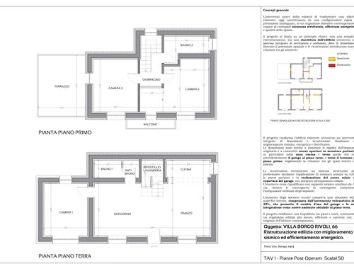
L'idea รจ ristrutturare questo fabbricato, rendendolo moderno con colori tenui. All'interno al piano terra si potrebbe avere sulla destra il soggiorno e la cucina integrati anche abbattendo il muro di divisione. Sulla sinistra ci sarebbe il salotto con il bagno che in pianta non esiste. Rifacimento della scala, dove al primo piano rifacimento del bagno anche spostando il muro adiacente alla camera in modo che diventi piรน grande con una doccia. Le camere da letto rimangono. Al posto del garage si puรฒ trasformare in lavanderia e sala disbrigo. Esternamente visto un progetto di ammodernamento di potrebbe allungare la pensilina sull'entrata. Il fabbricato puรฒ avvalersi del piano casa con aumento della cubatura.
SONO STATE AGGIUNTE LE MISURE INTERNE