
Roma, RM, Italia
Residenziale - Appartamento
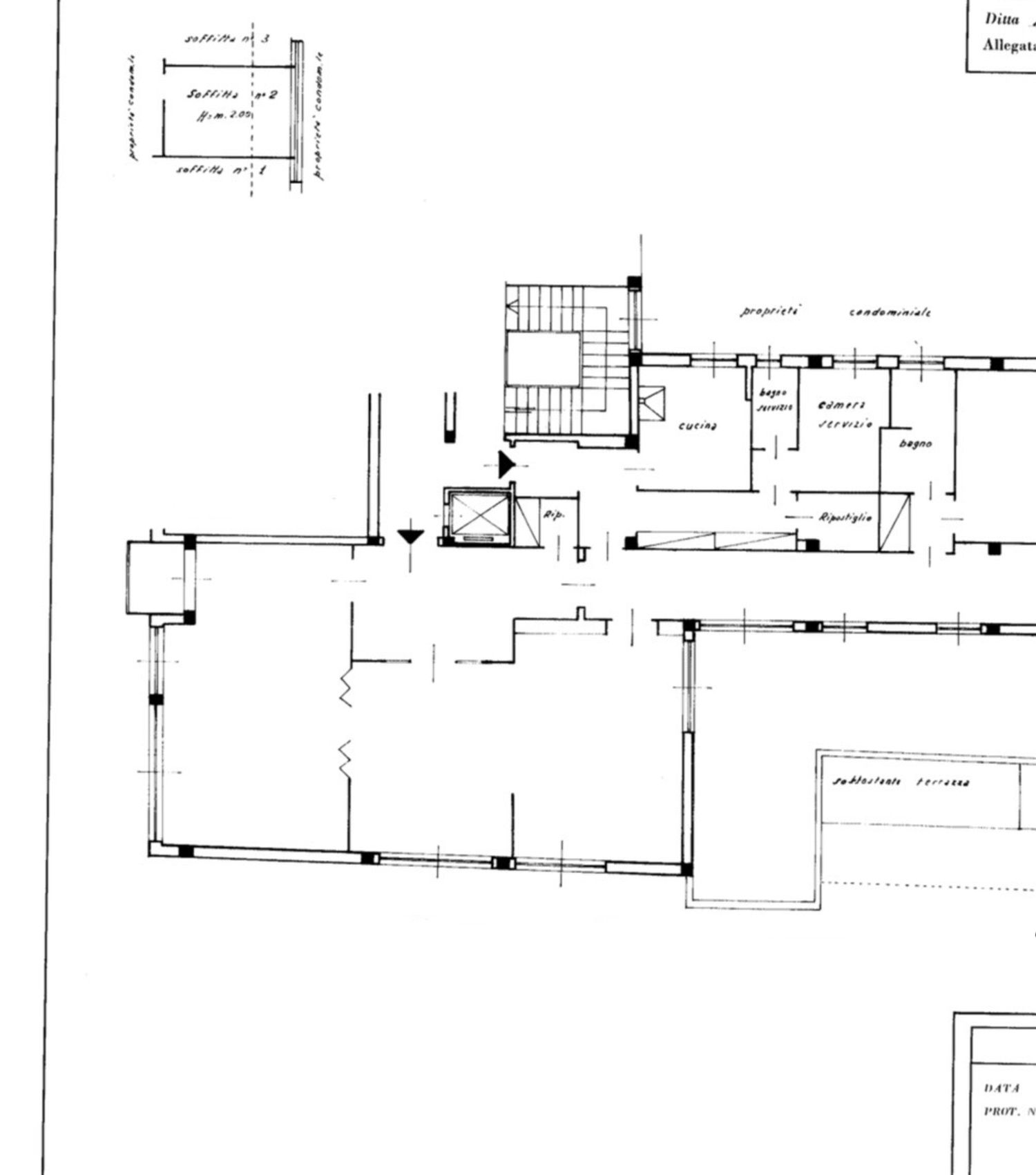
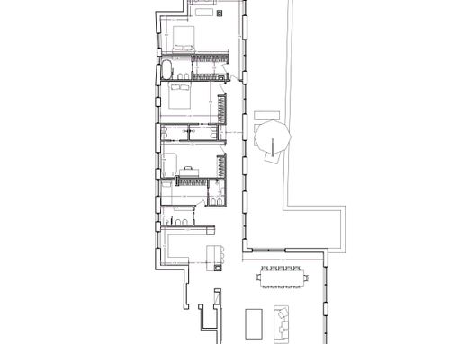
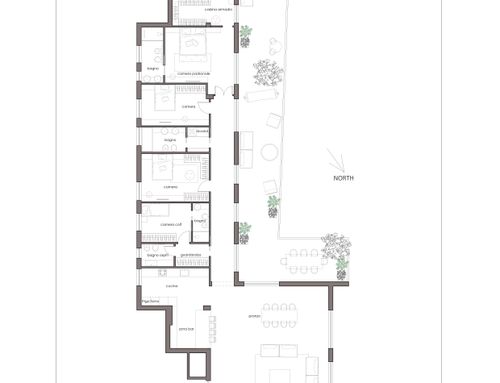
Descrizione
ENG:
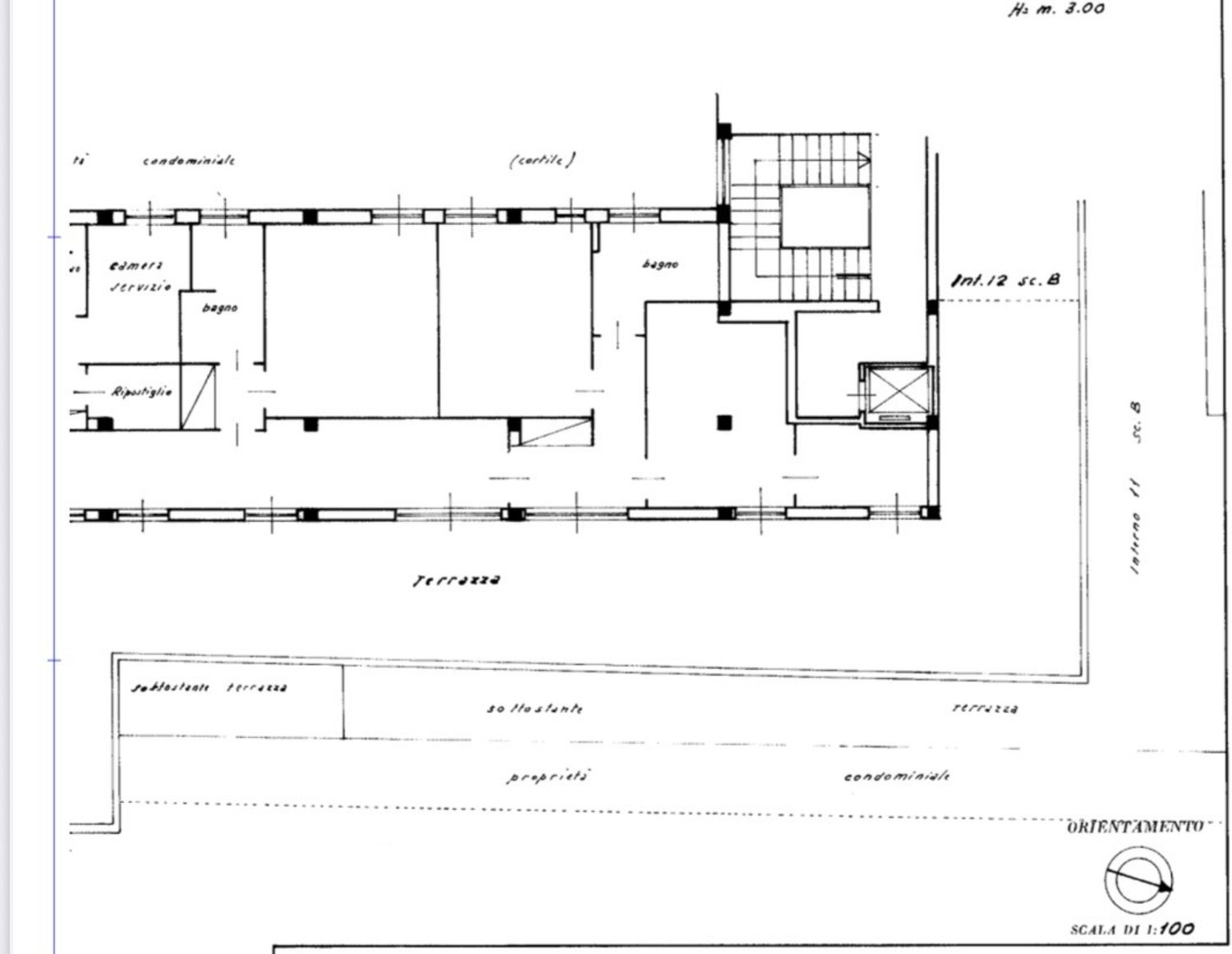
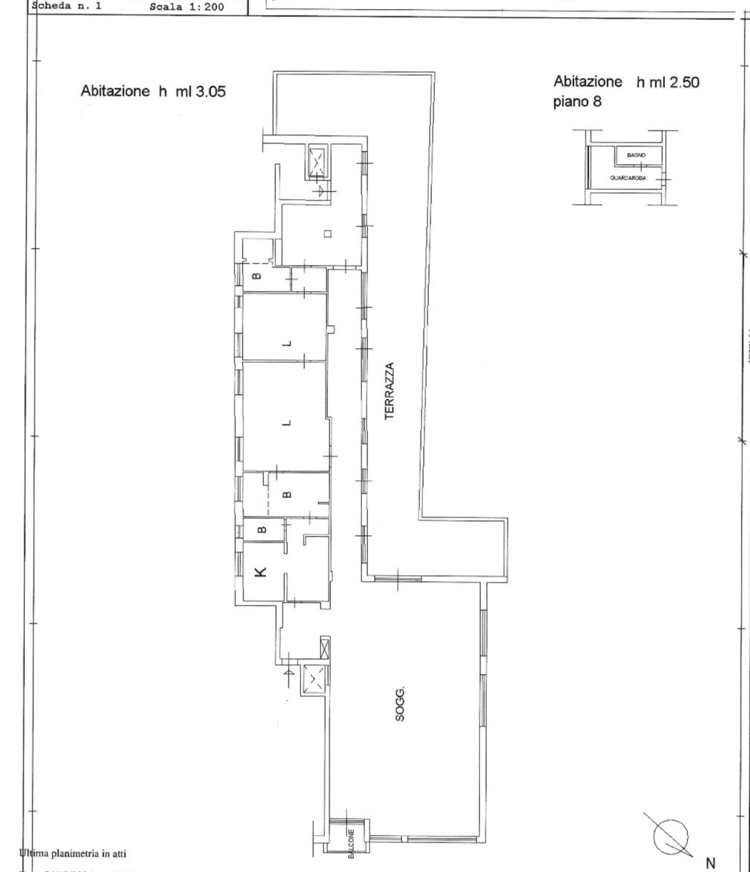
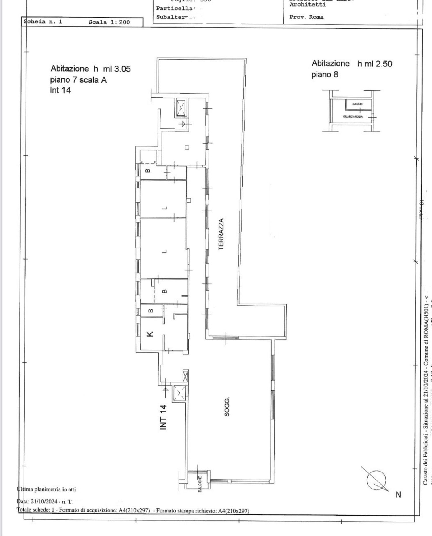
We are providing two floor plans: the first one (on two sheets) shows how the house was originally, and the second one shows its current layout (with an open-space living area).
We need to redistribute the interior spaces. The main entrance will be located in the living room, as in the first floor plan. The living room, open space as shown in the second plan, should be divided only with furniture into a TV area with a large sofa, a sitting area with sofas, and a dining area.
The kitchen should be opened as much as possible towards the living room (perhaps separated by a large sliding glass door). We would also like to have an island, but without moving the existing furniture from its current area.
A service room with a bathroom needs to be created, as well as a guest bathroom, three bedrooms with two or three bathrooms, and we would like to minimize the corridor as much as possible, dedicating that space instead to the bedrooms at the end or to wardrobes for the rooms.
In terms of style, we are leaning towards a Japandi / minimal Scandinavian style, mixed with classic elements.
SPA:
Adjuntamos dos planos: el primero (en dos hojas) muestra cómo era la casa originalmente, y el segundo muestra cómo está actualmente (con el salón en concepto abierto).
Necesitamos redistribuir los espacios interiores. La entrada principal estará en el salón, como en el primer plano. El salón, abierto como en el segundo plano, deberá dividirse solo con el mobiliario en una zona de TV con un sofá grande, una zona de estar con sofás y una zona de comedor.
La cocina deberá abrirse lo más posible hacia el salón (quizás separada por una gran puerta o pared de vidrio corredera). También nos gustaría incluir una isla, pero sin mover los muebles de la zona indicada.
Será necesario crear una habitación de servicio con baño, un baño de invitados, tres dormitorios con dos o tres baños, y tratar de reducir al mínimo el pasillo, destinando ese espacio a los dormitorios del fondo o a armarios empotrados para las habitaciones.
En cuanto al estilo, nos inclinamos por un estilo Japandi / escandinavo minimalista, combinado con elementos clásicos.
ITA:
Vi riportiamo due planimetrie; la prima (su due fogli) è come era la casa in origine e la seconda come è attualmente ( salone open space ). Dovremmo ridistribuire gli spazi interni; l'ingresso principale sarà nel salone come nella prima planimetria. il salone, open space come nella seconda planimetria, andrà diviso solo con il mobilio in una zona tv con divano grande, un salotto con divani e una zona pranzo. La cucina andrà aperta il più possibile verso il salone ( dividendola magari con grande porta/vetrata scorrevole, ci farebbe piacere anche un'isola) preferiremmo evitare di spostare i mobili dalla zona segnata ma in caso di necessità per ricavare più spazio possiamo valutare alternative. Bisognerà poi creare una camera di servizio con bagno. Un bagno ospiti, tre camere con due/ tre bagni. Possibile ridurre un po' il corridoio da destinare alle camera in fondo o agli armadi delle camere. Come stile saremo orientati su uno stile japandi/ minimal scandinavo mixato ad elementi classici.