🔥 CYBER MONDAY 24H: -60% su tutti i prezzi del sito! Solo fino a mezzanotte. Usa il codice CYBERMONDAY25 👉🏼
Home / Designer / Vanessa / Progetto di casa residenziale
img

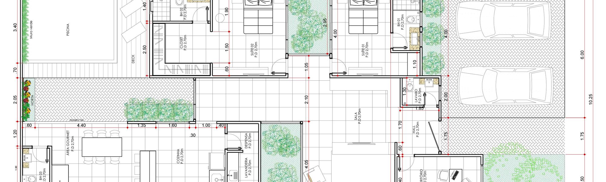
Progetto di casa residenziale

São Paulo, State of São Paulo, Brazil

Residenziale - Casa

Vanessa Rodi

  • architect
  • Milano, Italy
Descrizione Progetto

Authorial project of a residence of approximately 200m².

Leggi di Più