๐Ÿ”ฅ CYBER MONDAY 24H: -60% su tutti i prezzi del sito! Solo fino a mezzanotte. Usa il codice CYBERMONDAY25 ๐Ÿ‘‰๐Ÿผ
Home / Designer / Roberto / Complesso residenziale Casale Caletto
img

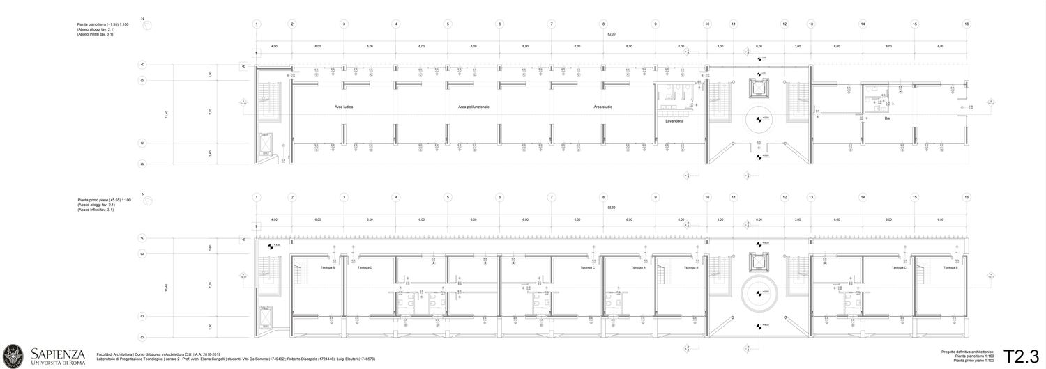
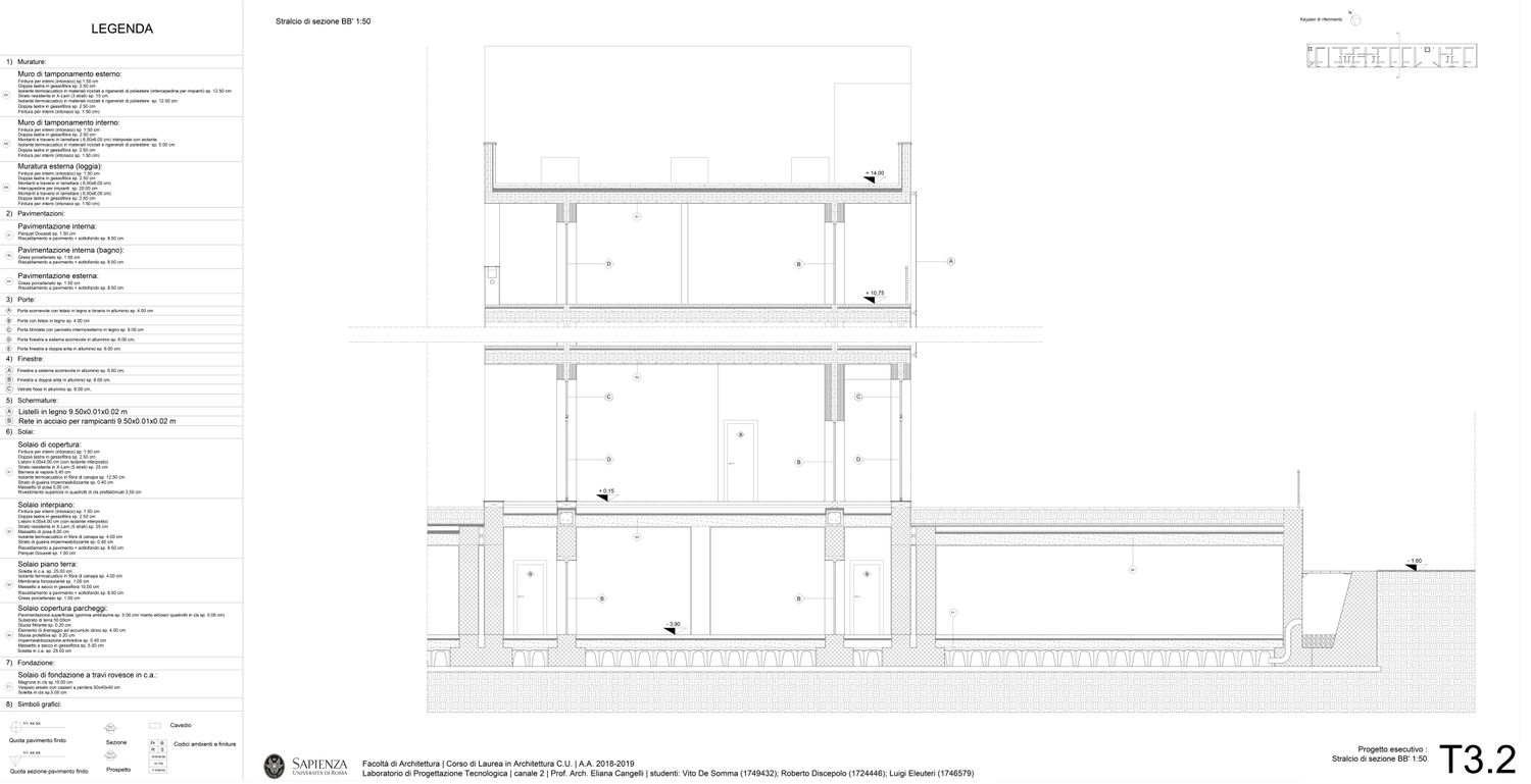
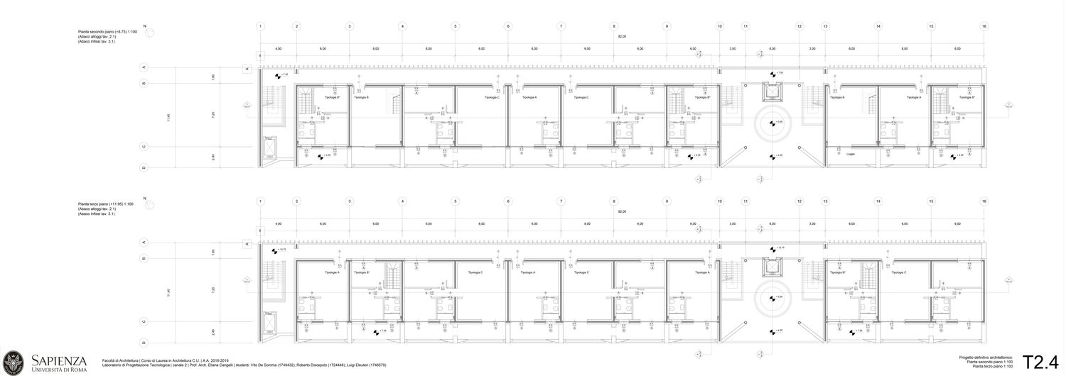
Complesso residenziale Casale Caletto

Rome, Metropolitan City of Rome Capital, Italy

Residenziale - Appartamento

Roberto Discepolo

  • architect
  • FABRICA DI ROMA, Italy
Descrizione Progetto


Leggi di Piรน