Vai al contenuto
๐ฅ CYBER MONDAY 24H: -60% su tutti i prezzi! Fino a mezzanotte. Codice CYBERMONDAY25 ๐๐ผ
APPROFITTA ORA
๐ฅ CYBER MONDAY 24H: -60% su tutti i prezzi del sito! Solo fino a mezzanotte. Usa il codice CYBERMONDAY25 ๐๐ผ
APPROFITTA ORA
Come Funziona
Progetti
Designer
Prezzi
Corsi
News
Come Funziona
Progetti
Designer
Prezzi
Corsi
News
Login
Login
IT
EN
IT
EN
Lancia un Progetto
Home
/
Designer
/
Regnacq
/
Fondation apprentis d'Auteuil
indietro
Fondation apprentis d'Auteuil
Bordeaux, France
Commerciale - Altro
Regnacq Sebastien
interior-designer
Bordeaux, France
Descrizione Progetto
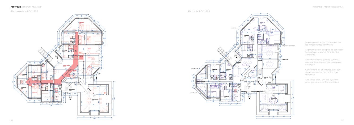
Renovation of the entire building
Leggi di Piรน
Project Materials
Come Funziona
Progetti
Designer
Prezzi
Corsi
News
IT
EN
IT
EN
launch a project
Come Funziona
Progetti
Designer
Prezzi
Corsi
News
IT
EN
IT
EN
lancia un progetto