roma, italy
architect
Esperienze lavorative
Ricercatore
D.I.P.S.A. RomaTre
Sep 2007 / Mar 2010
In collaborazione con il Prof. Massimo Alfieri: scrive, cura la grafica e pubblica: Roma 1870-2010 Itinerari nella città che si trasforma
Assisitente alla docenza
Università RomaTre
Sep 2007 / Sep 2012
Svolge attività di ricerca e preparazione delle lezioni e del materiale didattico per il corso di Progettazione architettonica. Partecipa alle attività di insegnamento, nonchè agli esami ed alle valutazioni delle esercitazioni degli studenti.
Project architect
Labics
Jan 2008 / May 2008
Partecipa alla progettazione per la ristrutturazione del Policlinico Umberto I cooperando con un team di architetti, designer ed ingegneri.
Perito Real Estate
Creval Sistemi e Servizi
Mar 2009 / Feb 2016
Perito immobiliare e responsabile del monitoraggio prezzi per conto di istituto di credito italiano. Ottima conoscenza delle linee guida ABI, incaricata di verifiche di regolarità urbanistiche e catastali.
Freelance architect
Attuale
Sep 2007 / May 2017
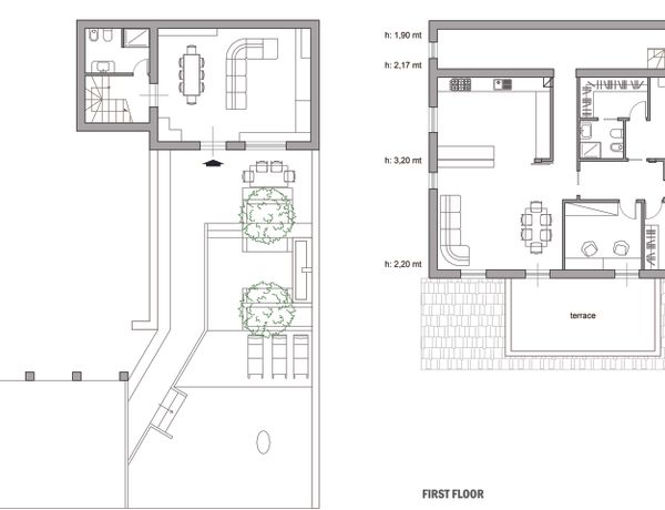
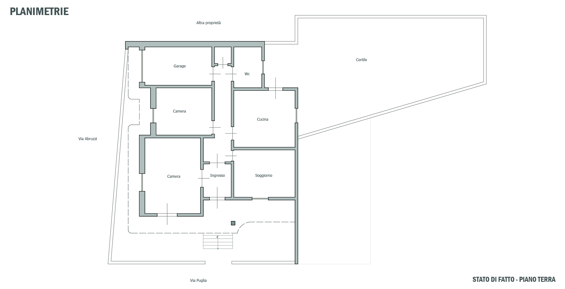
Esperienza in progettazione di interni e commerciale. Responsabile di tutte le fasi di progetto, dal contatto iniziale con il cliente alla presentazione del progetto preliminare; dalla direzione lavori alle richieste di autorizzazione.
Educazione
Master's degree
University of RomaTre
Sep 2007 / May 2017
110 cum laude
Postgraduate University Master Course
University of La Sapienza
Sep 2007 / May 2017
110/110