🔥 CYBER MONDAY 24H: -60% su tutti i prezzi del sito! Solo fino a mezzanotte. Usa il codice CYBERMONDAY25 👉🏼
home / designer / nemanja Ćaćić
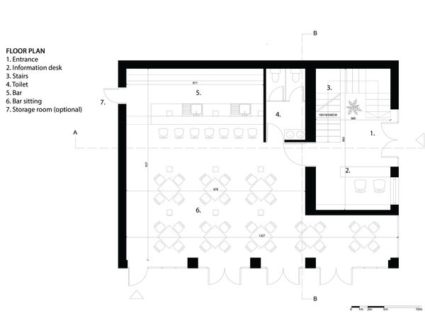
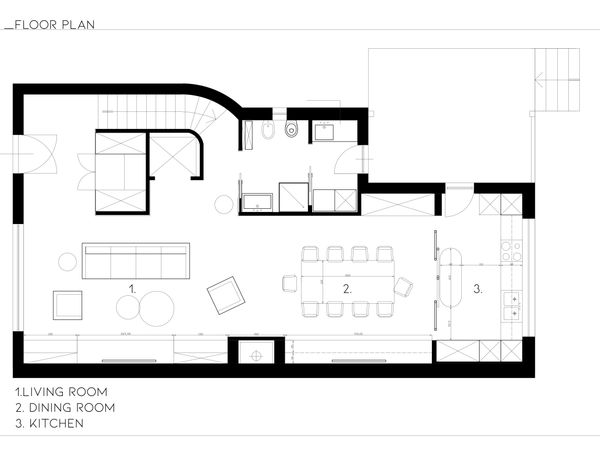
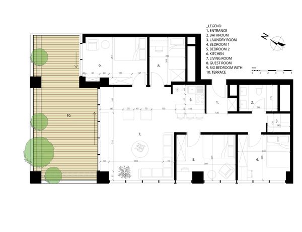
img

nemanja Ćaćić

Novi Sad, Serbia

Membro dal: 15/06/2018

architect

  • Progetti Consegnati
    9
  • Piazzamenti
    1