Vai al contenuto
🔥 CYBER MONDAY 24H: -60% su tutti i prezzi! Fino a mezzanotte. Codice CYBERMONDAY25 👉🏼
APPROFITTA ORA
🔥 CYBER MONDAY 24H: -60% su tutti i prezzi del sito! Solo fino a mezzanotte. Usa il codice CYBERMONDAY25 👉🏼
APPROFITTA ORA
Come Funziona
Progetti
Designer
Prezzi
Corsi
News
Come Funziona
Progetti
Designer
Prezzi
Corsi
News
Login
Login
IT
EN
IT
EN
Lancia un Progetto
home
/
designer
/
monika palosz
Torna ai designer
monika palosz
Barcelona, Spain
Membro dal: 01/05/2020
architect
Progetti Consegnati
1
Piazzamenti
0
Contest
Informazioni
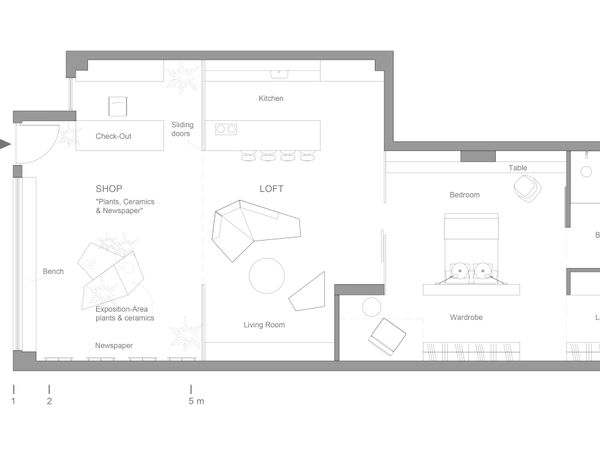
home store - shop at the front, apartment living at the back
6.6
Come Funziona
Progetti
Designer
Prezzi
Corsi
News
IT
EN
IT
EN
launch a project
Come Funziona
Progetti
Designer
Prezzi
Corsi
News
IT
EN
IT
EN
lancia un progetto