Esperienze lavorative
Junior Technician
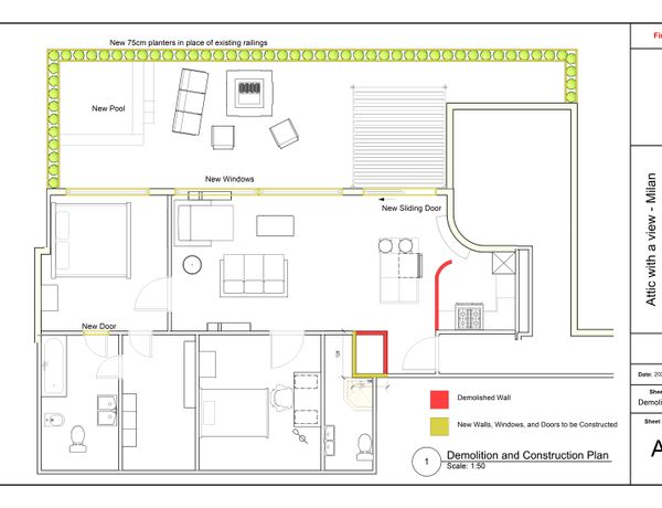
BSA
May 2018 / Sep 2019
Document writing, CAD work
Educazione
In Progress
Mount Douglas Secondary School
May 2018 / Sep 2019
High School Student; with courses oriented towards Math, Physics, and Drafting, Design, and Innovation
Competenze
Architectural Concept Design
CAD Design & 3D Visualizations