๐Ÿ”ฅ CYBER MONDAY 24H: -60% su tutti i prezzi del sito! Solo fino a mezzanotte. Usa il codice CYBERMONDAY25 ๐Ÿ‘‰๐Ÿผ
Home / Designer / Maria / Adeguamento sismico e riqualificazione energetica del plesso scolastico
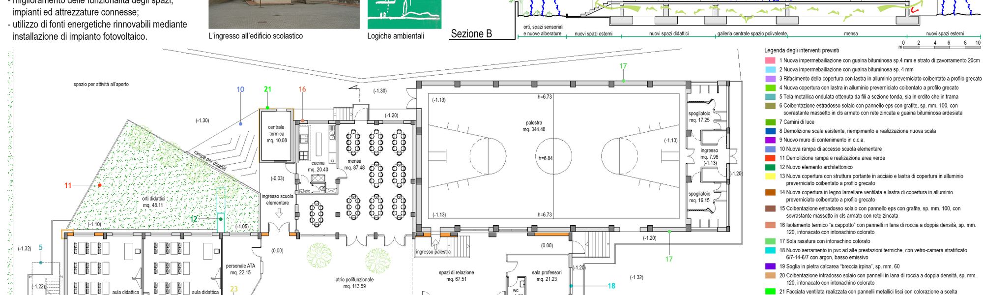
img

Adeguamento sismico e riqualificazione energetica del plesso scolastico

83040 Luogosano AV, Italy

Commerciale - Altro

Maria Del Vicario

  • architect
  • Paternopoli, Italy
Descrizione Progetto

Progettazione preliminare, definitiva ed esecutiva - CSP

Leggi di Piรน