Paternopoli, Italy
architect
Esperienze lavorative
Coordinatore per la Sicurezza in fase di Esecuzione
Libero Professionista
Sep 2016 / May 2017
Programma di Recupero Urbano (PRU 02 San Tommaso Q9 ai sensi dell’Accordo di Programma del 21.12.2011) Riqualificazione Urbana strada interquartiere Morelli e Silvati Committente Comune di Avellino
Progetto preliminare, definitivo , esecutivo - CSP
Comune di Luogosano
Dec 2017 / Feb 2018
Adeguamento sismico e riqualificazione energetica del plesso scolastico "F. De Sanctis"
Progetto esecutivo - Direzione Lacori - CSE
S.P.
May 2017 / Feb 2019
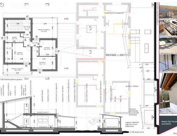
House P.
Educazione
Laurea Magistrale
Università degli Studi di Napoli "Federico II"
May 2017 / Feb 2019
Laurea Magistrale in Architettura, Progettazione Architettonica, Votazione 110 e lode
Competenze