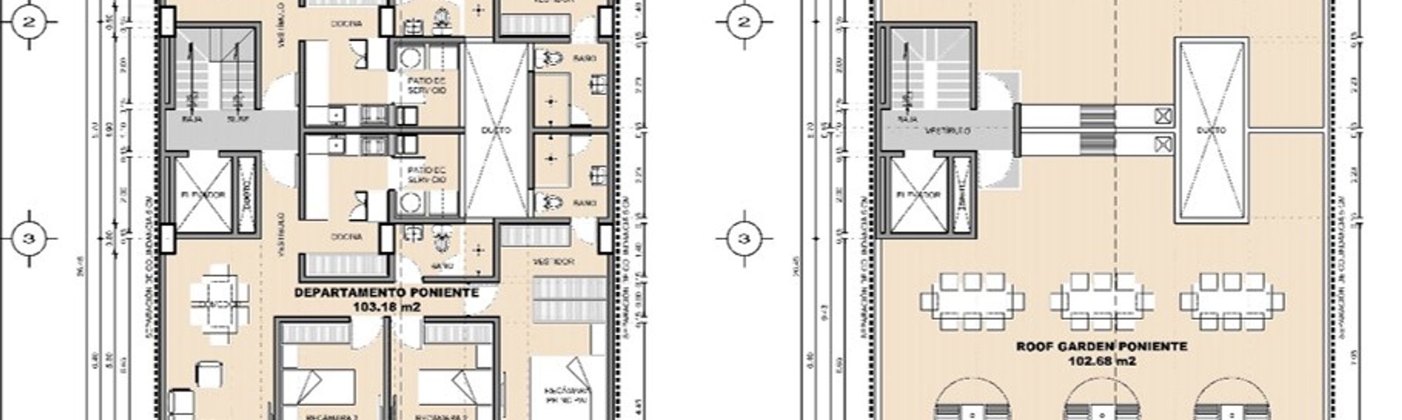
Mexico City, CDMX, Mexico
Residenziale - Appartamento
Jose Perfetto
Reconstruction project for the building damaged in the 2017 earthquake. "Colonia Alamos" 20 apartments of 103 sqm and 4 shops