
Harau, Lima Puluh Kota Regency, West Sumatra, Indonesia
Residenziale - Loft
Gusti Rianggono
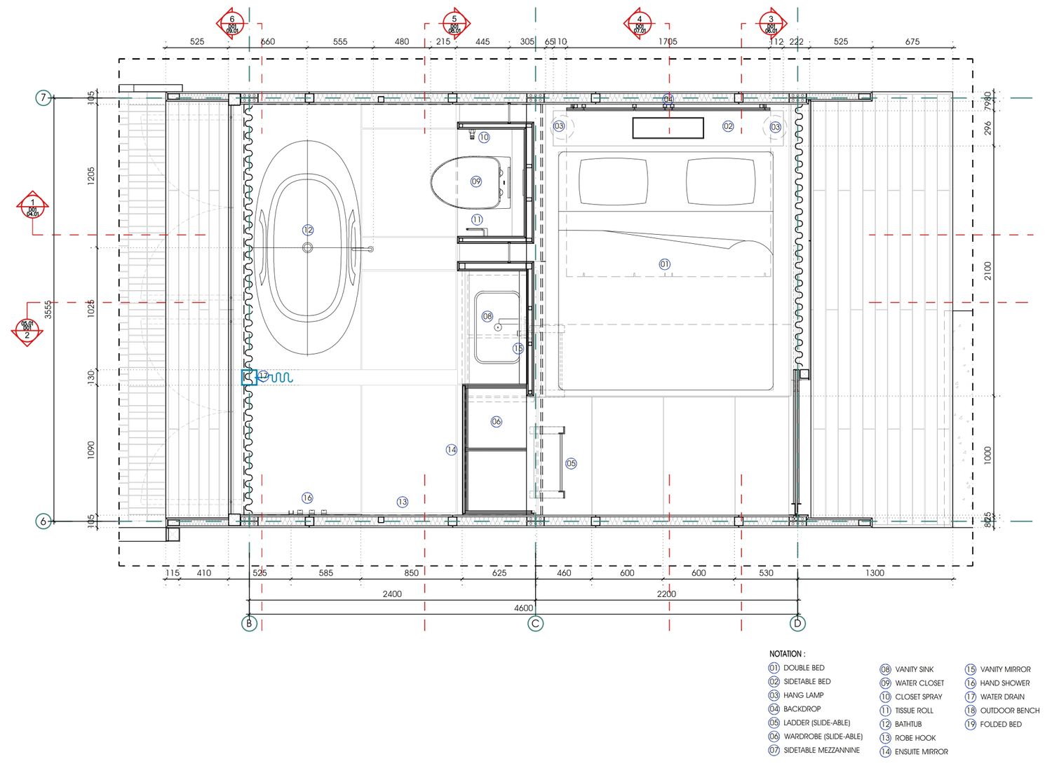
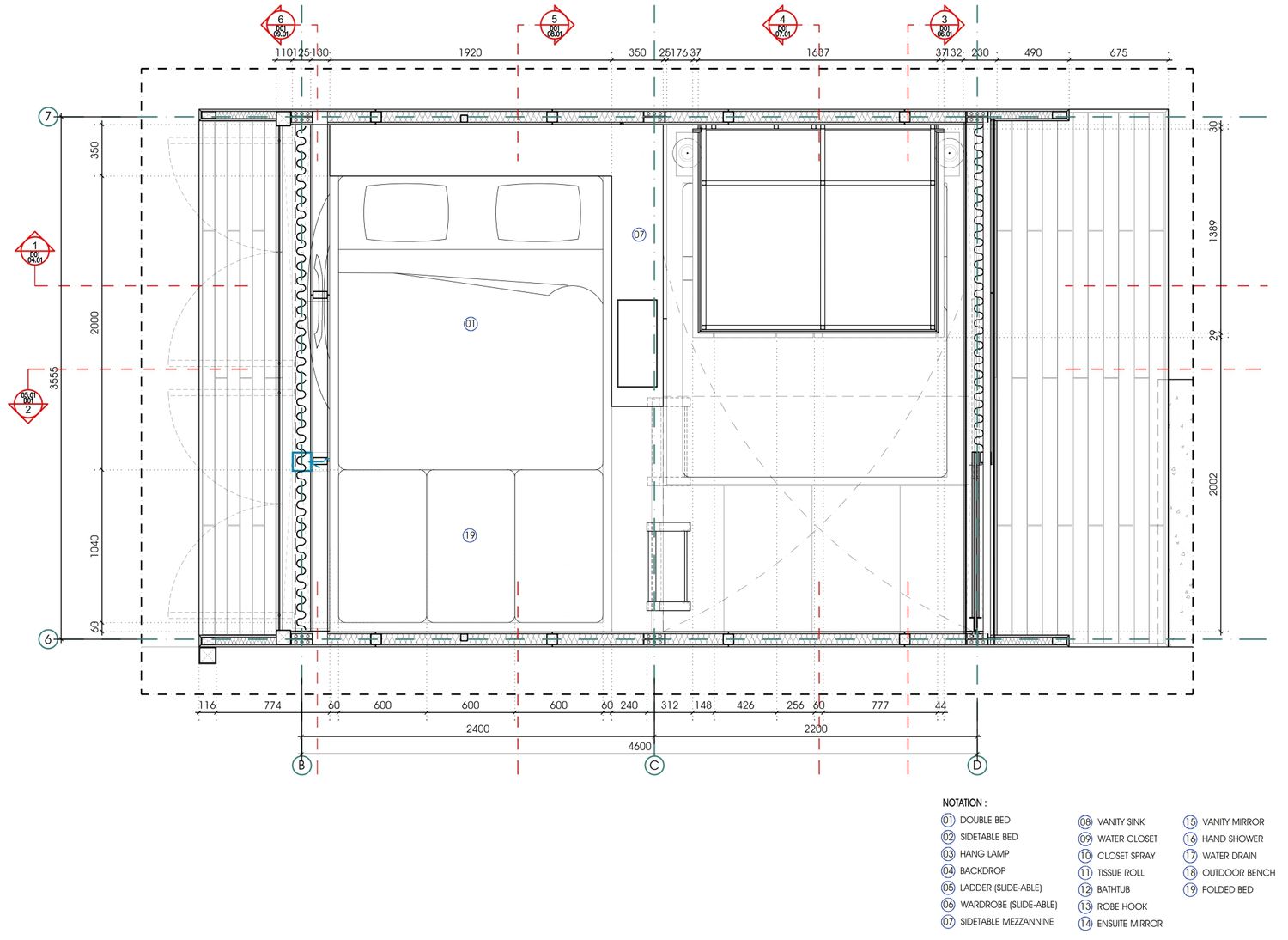
An optional design of Cubicle Homestay, which is located in Lembah Harau Geopark Area, West of Sumatera. The building sets face directly a gorgeous view of Lembah Harau’s mountain chain. NUFA is a homestay that is designed instead to stay at these tourism areas but also as an additional “feature” of Lembah Harau to enjoy the ambience maximally.