Vai al contenuto
🔥 CYBER MONDAY 24H: -60% su tutti i prezzi! Fino a mezzanotte. Codice CYBERMONDAY25 👉🏼
APPROFITTA ORA
🔥 CYBER MONDAY 24H: -60% su tutti i prezzi del sito! Solo fino a mezzanotte. Usa il codice CYBERMONDAY25 👉🏼
APPROFITTA ORA
Come Funziona
Progetti
Designer
Prezzi
Corsi
News
Come Funziona
Progetti
Designer
Prezzi
Corsi
News
Login
Login
IT
EN
IT
EN
Lancia un Progetto
home
/
designer
/
giada greco
Torna ai designer
giada greco
Prato, Italy
Membro dal: 10/07/2015
architect
Progetti Consegnati
2
Piazzamenti
0
Contest
Informazioni
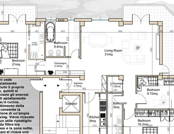
milano - merge of 2 apartments
8.6
rome, italy, 1920 building restauration
5.4
Come Funziona
Progetti
Designer
Prezzi
Corsi
News
IT
EN
IT
EN
launch a project
Come Funziona
Progetti
Designer
Prezzi
Corsi
News
IT
EN
IT
EN
lancia un progetto