
Genova, Italy
architect
Esperienze lavorative
collaboratrice
LAƩU - Laboratorio Architettura & Urbanistca
Sep 2011 / Oct 2012
Progettazione architettonica, restauro architettonico, adeguamento liturgico, pianificazione e progettazione urbanistica, redazione di computi metrici, capitolati e pratiche edilizie comunali.
collaboratrice
Architetto Pietro Marchiò
Oct 2012 / May 2013
Progettazione in ambito sociosanitario, residenziale e commerciale con il programma Autocad, predisposizione di computi metrici, pratiche edilizie comunali, catastali e prevenzione incendi.
collaboratrice
Studio di Architettura in Genova
Feb 2014 / Oct 2014
Progettazione d’interni, redazione di computi metrici, capitolati e pratiche edilizie comunali
collaboratrice a P. Iva
Studio di Architettura in Genova
Jan 2015 / Mar 2015
Progettazione esecutiva di villa a Dubai
collaboratrice a P. Iva
B.L. Consulting S.a.s. - Ing. Bruno Nello Bellin
Jan 2015 / Sep 2017
Assistenza direzione cantieri, progettazione interventi di bonifica, verifiche documentali e normative in assistenza al CSE, redazione PSC e POS
collaboratrice a P. Iva
Ministudio Architetti
Jul 2015 / Aug 2018
Svolgimento di attività di: - direzione Lavori e di cantiere; - verifiche documentali e normative in assistenza ai CSE; - redazione PSC e POS; - progettazione d’interni; - preventivazione, redazione di CME e Capitolati d’Appalto; - contabilità di cantiere; - redazione pratiche edilizi
titolare
EB_ARCHITETTURA
Sep 2017 / Mar 2026
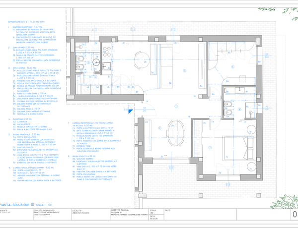
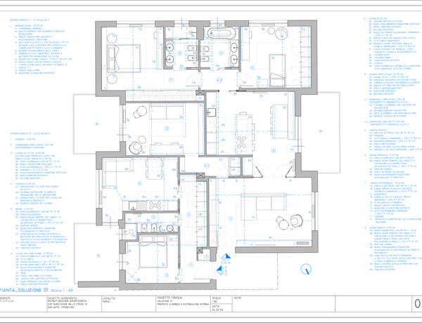
In corsoSvolgimento della libera professione come progettista di interni
Educazione
Laurea Magistrale in Architettura
UniversitĂ degli Studi di Genova - FacoltĂ di Architettura
Sep 2017 / Mar 2026
Conseguimento di Laurea quinquennale (Vecchio Ordinamento) in Architettura Esame di stato superato con abilitazione alla professione Gennaio 2014
Competenze