Esperienze lavorative
Impiegato progettista Opere Civili Idrauliche
Hydroprogetti S.r.l.
Nov 2017 / Jun 2018
Progettazione idraulica e di edifici civili per impianti di depurazione ed idroelettrici
Educazione
Ingegnere Civile
Università degli Studi di Padova
Nov 2017 / Jun 2018
Laurea Magistrale in Ingegneria Civile
Competenze
Calcolo strutturale
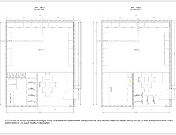
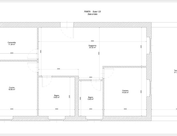
Interior design