Vai al contenuto
🔥 CYBER MONDAY 24H: -60% su tutti i prezzi! Fino a mezzanotte. Codice CYBERMONDAY25 👉🏼
APPROFITTA ORA
🔥 CYBER MONDAY 24H: -60% su tutti i prezzi del sito! Solo fino a mezzanotte. Usa il codice CYBERMONDAY25 👉🏼
APPROFITTA ORA
Come Funziona
Progetti
Designer
Prezzi
Corsi
News
Come Funziona
Progetti
Designer
Prezzi
Corsi
News
Login
Login
IT
EN
IT
EN
Lancia un Progetto
home
/
designer
/
celien b
Torna ai designer
celien b
Gent, Belgium
Membro dal: 25/06/2015
interior designer
Progetti Consegnati
11
Piazzamenti
4
Contest
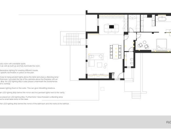
Informazioni
cameretta bimbo
8.6
turn a simple bedroom into an awesome bunk room
8
modern functional simple apartment for a 46 yrs old man
7.2
33sqm city flat renovation
7.2
2°
rezdora new york city - fresh pasta, your way
6
restyling of a resort room in a seaside location
7.2
creative and inspiring kitchen idea for a showroom
7.8
3°
small historical charme residence
7.8
3°
garçonnière
7.4
shop gas station
9
3°
two bathrooms with shower shared
7.2
Come Funziona
Progetti
Designer
Prezzi
Corsi
News
IT
EN
IT
EN
launch a project
Come Funziona
Progetti
Designer
Prezzi
Corsi
News
IT
EN
IT
EN
lancia un progetto