🔥 CYBER MONDAY 24H: -60% su tutti i prezzi del sito! Solo fino a mezzanotte. Usa il codice CYBERMONDAY25 👉🏼
Home / Designer / Carlos / Alamo House
img

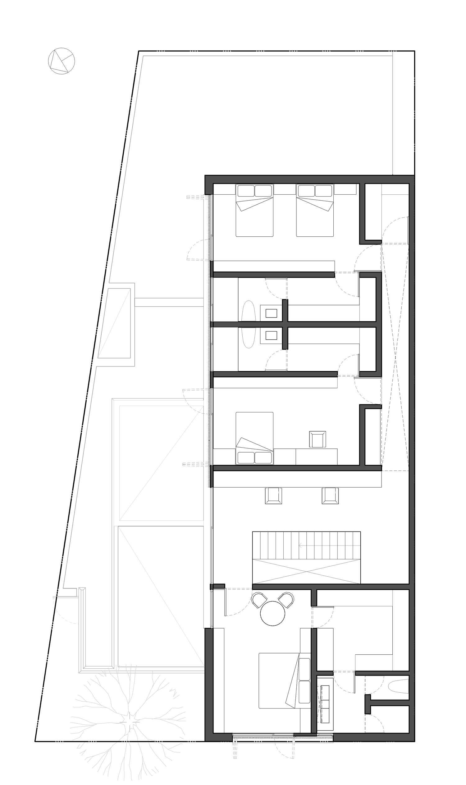
Alamo House

Los Mochis, Sinaloa, Mexico

Residenziale - Casa

Carlos Robles

  • architect
  • Monterrey, Mexico
Descrizione Progetto

Casa Álamo is a 3788 ft2, located inside a gated community in the city of Los Mochis, in Sinaloa, Mexico.

Conceptually, the project was conceived as 2 separate volumes, both made of exposed concrete, in order to achieve a monolithic look and to create a visual language throughout the entire house.

This house is a synthesis of the design principles I try to achieve in my designs, mainly that the quality of the project comes from the relentless study of geometry and space, the use of natural light and ventilation, and the proportion and realationship between the spaces, rather than relying on a wide range of materials that don’t blend together.

Leggi di Più