🔥 CYBER MONDAY 24H: -60% su tutti i prezzi del sito! Solo fino a mezzanotte. Usa il codice CYBERMONDAY25 👉🏼
Home / Designer / Bassel / Abadiyeh Residence
img

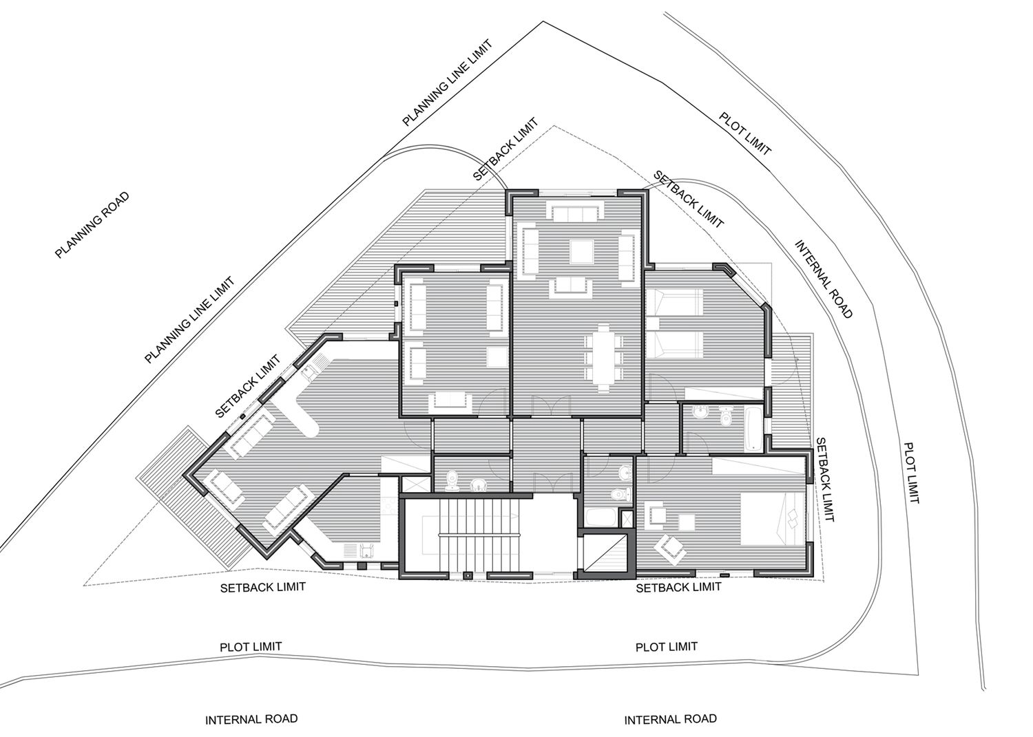
Abadiyeh Residence

Aabadiyeh, Lebanon

Residenziale - Appartamento

Bassel Faraj

  • architect
  • Aley, Lebanon
Descrizione Progetto

The unique characteristic of this site is its northern view.The building responds to this situation with its complex geometry:
It ­follows the slope, yet still permits harmonious integration into the village community in a residential neighbourhood in Abadeye. The main entrance can be accessed via an open flight of stairs. Behind it, a two-story staircase unfolds.

Leggi di Più