
Alexandria, Egypt
interior-designer
Esperienze lavorative
Fit-Out Engineer
Sigma Contractors
Jun 2009 / Oct 2024
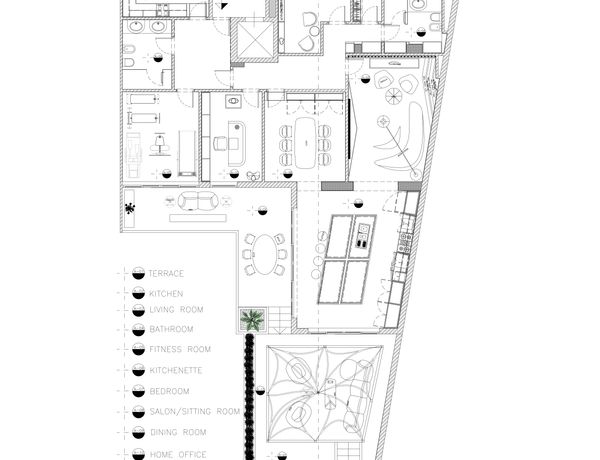
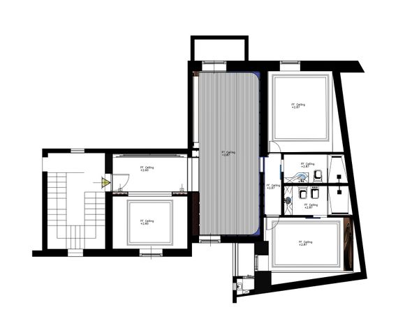
Fit-out Engineer is performing the project tasks to design, co-ordinate, and construct with delivering full architectural packages from 2D and 3D drawings on site. besides that, managing the project scope, levels and timeline is inherently one of the main objectives to experience the construction techniques behind the design material, and inspect the qualities inside each working details.
Educazione
Master's of Art
Estonian Academy of Arts
Jun 2009 / Oct 2024
Master graduate in Interior Architecture and Spatial Design with generous expertise in Interior design high end projects, product design fixturing and Construction management.
Competenze