Esperienze lavorative
Architetto progettista
Barsante Disegno
Apr 2013 / Apr 2015
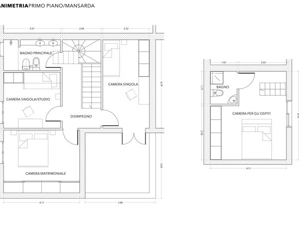
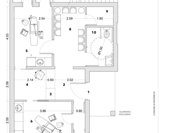
Progetti di interior design, preventivi, disegni di mobili su misura, ristrutturazioni.
Educazione
Architetto
Scuola di Architettura e Design di Ascoli Piceno
Apr 2013 / Apr 2015
Laura Magistrale in Architettura
Competenze
Interior design, Grafica, Pacchetto Adobe, Autocad, Rhino, 3D MAX