
30027 San Donà di Piave, Metropolitan City of Venice, Italy
Residenziale - Zona Giorno/Notte
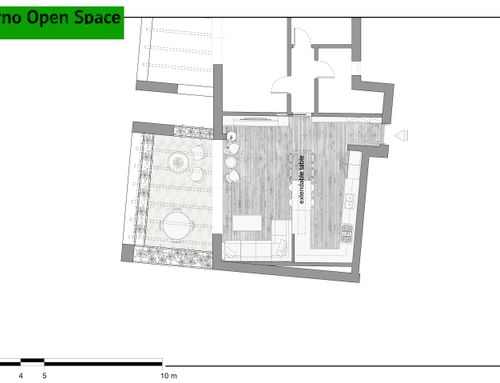
Descrizione
Description in english, spanish and italian.
Planimetry in .dwg.
ENG
Hi,
We would like to furnish the living area of our new apartment. It's an open space of about 37sqm with a very high exposed white beam ceiling (min. 291 - max 474). We would like a medium-sized kitchen with island or peninsula (2/3 stools), extendable table (at least up to 2m) and living area with sofa at least 3 seats (TV connections predisposed in the wall bordering the double bedroom). We would like a well-proportioned room, which also allows us to organize dinners or evenings with friends. The property is new and finished with a light gray wood-effect porcelain stoneware floor and underfloor heating (so no excavations on the ground). The upper central beam will be covered with a white plasterboard, the lighting prepared is with applique. We like colors such as white, black and gray in a modern and / or Nordic style with wooden elements. Thank you!
SPA
Hola,
nos gustaría amueblar la sala de estar de nuestro nuevo apartamento. Es un espacio abierto de aproximadamente de 37 metros cuadrados con un techo de vigas blancas expuestas muy alto (mínimo 291 - máximo 474). Nos gustaría una cocina de tamaño mediano con isla o península (2/3 taburetes), mesa extensible (al menos hasta 2 m) y sala de estar con sofá al menos 3 plazas (conexiones de TV instaladas en la pared que linda con el dormitorio doble). Nos gustaría un salón bien proporcionado, que también nos permita organizar cenas o veladas con amigos. La propiedad es nueva y tiene acabados con suelo de gres porcelánico efecto madera gris claro y calefacción por suelo radiante (por lo que no hay excavaciones en el suelo). La viga central superior se cubrirá con una placa de yeso blanco, la iluminación preestablecida es con aplique. Nos gustan los colores como el blanco, el negro y el gris en un estilo moderno y / o nórdico con elementos de madera. Gracias!
ITA
Ciao,
vorremmo arredare la zona giorno del nostro nuovo appartamento. È un open space di circa 37mq con soffitto a travatura bianca a vista molto alta (min. 291 - max 474). Vorremmo una cucina di medie dimensioni con isola o penisola (2/3 sgabelli), tavolo allungabile (almeno fino a 2m) e zona soggiorno con divano almeno 3 posti (attacchi TV predisposti nella parete confinante con la camera matrimoniale). Vorremmo una stanza ben proporzionata, che ci permetta anche di organizzare cene o serate con amici. L’immobile è nuovo e finito con pavimento in gres porcellanato effetto legno color grigio chiaro e riscaldamento a pavimento (quindi no scavi a terra). La trave superiore centrale verrà coperta con un cartongesso bianco, l’illumazione predisposta è con applique. Ci piacciono colori come bianco, nero e grigio in stile moderno e/o nordico con elementi in legno. Grazie!