
Milan, Metropolitan City of Milan, Italy
Residenziale - living area
Descrizione
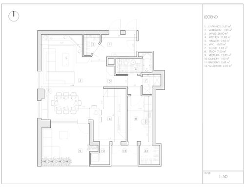
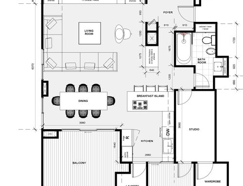
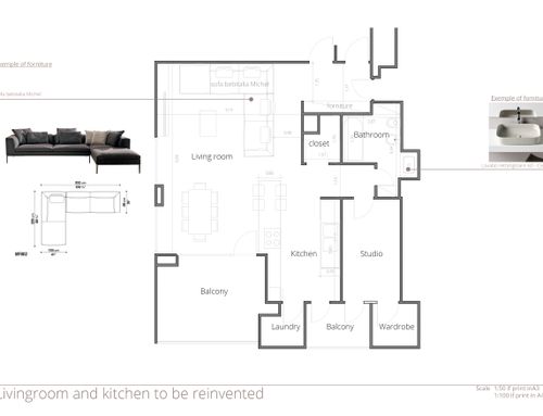
Dear all, we would like to renew our living room area and kitchen. Now the are is all empty, and also the kitchen is missing. As you can see from the plant, we need a project for living room, kitchen and bathroom. We would like to enlarge the bathroom and to find a solution for that area in between livingroom, kitchen and bathroom. The only wall that is untouchable is the column in the middle of the living room. No need to make any plan for the studio, laundry, balconies.
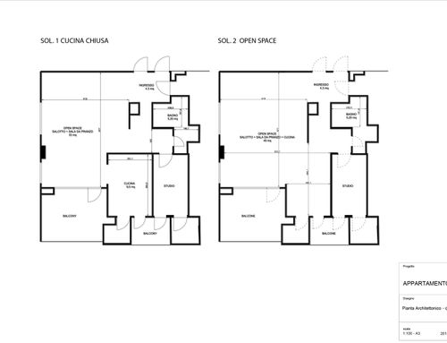
We like both open kitchen (cucine a vista) or closed kitchen. We have five kids so we would need a table in the kitchen for 4-6 persons (or a kitchen counter with stools) and a big table in the living room. As well a big sofa for many people. We don't like too many furniture, so the less the better.
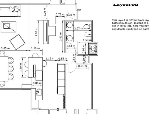
Gentili Progettisti, abbiamo una zona giorno ampia e una piccola cucina, più un disimpegno che non riusciamo a sfruttare e un piccolo bagno. Ci piacerebbe di sicuro ingrandire il bagno, inserendo la vasca se possibile (ma non è fondamentale) e integrare al meglio living room con cucina. Ci piace l'idea della cucina a vista ma non riusciamo a immaginarla. Per cui valutiamo sia cucina chiusa. In casa siamo in 7 per cui il salotto richiede un grande tavolo da pranzo, mentre in cucina ci piacerebbe un bancone con sgabelli per 3/4. Il salotto ci piace al minimo essenziale, divano enorme, televisore, impianto stereo. Ci piacerebbe un'idea innovativa per integrare zona giorno, cucina e disimpegno in un tutt'uno, con più luce possibile.