Cagliari, Italy
Residenziale - Appartamento
Descrizione
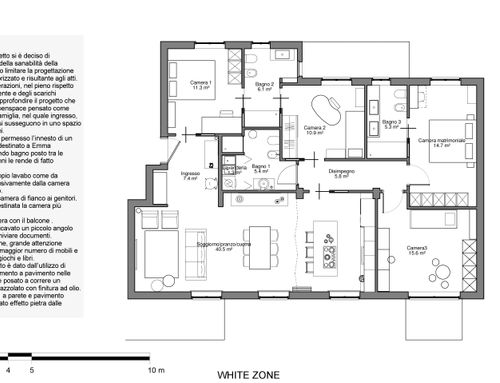
Sogniamo una casa luminosa, ariosa, allegra, con spazi ampi e funzionali alle esigenze individuali e allo stare insieme: siamo una famiglia con tre figli di 13 (Federico), 9 (Giovanni) e 4 (Emma)
Immaginiamo spazi aperti e luminosi, con arredi moderni e minimali per consentire la circolazione delle energie e gli interscambi tra ambienti
Vorremmo concepire una grande zona giorno, con una spaziosa e attrezzata cucina e un accogliente salone, separati dalle minime barriere necessarie, in modo da mantenere all'occorrenza una configurazione più o meno aperta e grande luminosità
Il salone ospiterà comodamente la famiglia riunita e gli eventuali ospiti sia a tavola (vedi tavolo allungabile in foto) sia nei divani, di fronte a un grande schermo sospeso
Uno spazio minimo sarà riservato (in salone?) a un'area di lavoro temporanea, per consentire la videoscrittura su PC e la consultazione di testi e documenti di lavoro, anche con soluzioni a scomparsa facili da gestire
Il salone sarà arricchito nei colori da grandi fotografie a parete, con possibili variazioni cromatiche su alcuni volumi che ne esaltino le caratteristiche di luce e modernità.
Una ampia cucina bianca, comoda e funzionale, design contemporaneo, con una penisola / piano di lavoro e fuochi da 90cm.
In prossimità lavanderia con asciugatrice, lavatrice, vaschetta e armadio per i detersivi, lavabo e wc
La zona notte prevede la matrimoniale con accesso diretto al bagno e tre vivaci camere per i bambini, i quali avranno accesso al bagno dal corridoio, mantenendo la possibilità di fruire del terzo servizio.
Federico sogna una scrivania grande e un letto di una piazza e mezzo, che potrebbe anche essere il letto doppio a scomparsa già in dotazione. Spazio dedicato alle due chitarre.
Giovanni sfrutterà i letti a castello, la scrivania e l'armadio bianco tortora crema in foto allegate.
Emma immagina una camera con toni rosa, coloratissima, potrebbe ereditare qualche mobile che allegheremo.
Spazi per studiare, conservare i giochi e ordinare libri e materiali di scuola, zaini.
Pavimenti in parquet molto chiaro, anche sbiancato.
Il bianco ed eventuali soluzioni in trasparenza faciliteranno il passaggio della luce in tutta la casa.
Per questo abbiamo scelto il titolo White Zone :-D
Un grazie sincero da tutti noi!
Siamo certi di divertirci lavorando insieme ..
Nicola e Simona
PS potremmo avere una tabella di sintesi estimativa dei materiali/arredi e dei relativi costi? Cerchiamo soluzioni low budget :)
Grazie!
Risorse