
Collegno, Metropolitan City of Turin, Italy
Residenziale - medium-villa
Descrizione
ENG.
DETACHED HOUSE WITH PRIVATE GARDEN IN COLLEGNO
This house was built in 1960 and has never been renovated. It is a detached house, one side of it faces the street and the other three sides face a private garden. It is a three stories house: the basement is 170sqm (commercial space) and it is used as a garage, cellar and technical room; the first floor is about 160sqm (commercial space) and there is a gap of 1,6mt between it and the ground level; finally, there is an attic. The garden area is about 200sqm.
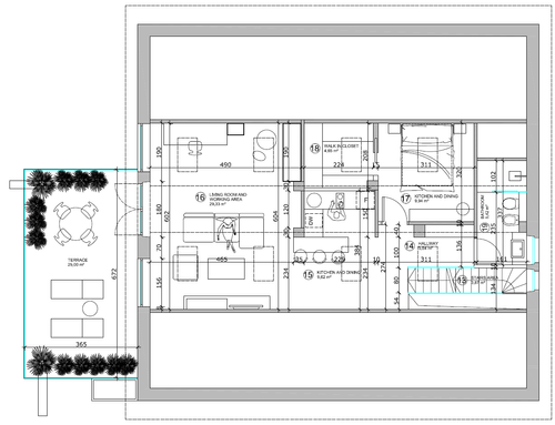
As you can see in the plan, the house has 3 accesses: a pedestrian access through the main road, a driveaway that leads to the garden and a driveaway/pedestrian access to the garage.
The main floor includes: two entries (one from the main road and one on the back, after the porch); eat-in kitchen; wide and bright living room; 3 bedrooms; 2 bathrooms with a window each; closet and a wide porch that leads to the garden.
The basement includes: big garage; 4 technical rooms that can be merged and converted into a little den; laundry; cellar; boiler room. The basement receives the external light through the existing hopper windows.
The three floors are connected by an internal staircase. Cars can be parked both in the garage and in the courtyard.
WHAT WE WANT
In the main floor we want: 4 bedrooms; 2 bathrooms; kitchen; dining area and living room. We’d like the living area to face the garden and we’d like this area to be completed with a winter garden (where there currently is the lateral porch). The other porch (the rear one) will be used as balcony or as any other use your mind comes up with.
In more detail we want:
- Bedrooms: a master bedroom and three smaller bedrooms for our 3 children. If you like you can merge two of the smaller bedroom in one bigger playroom with the possibility to divide them later. You can also divide them with mobile walls. In this scenario the third room will contain all three bedrooms for the moment (maybe with bunk beds or stacking beds). See picture with the beds we currently own for inspiration. For the master bedroom we want to keep our furniture which are two closets, a bed and two nightstands. We are not interested in walk-in-closets or private bathrooms.
- First bathroom: it must have a window and a bathtub that can be used also as a shower.
- Second bathroom: with window and big shower. The bathrooms should not have a laundry room because it is in the basement.
- Kitchen: we want to keep our existing furniture here (I’ll write their details below). You can change the current distribution and you can add more furniture. If necessary, we are open to renovate the top of the kitchen. We currently have an island that we’d like to replace with a table for 5/6 people. We are open to keep both the island and a table if there is enough space. Anyway, we’d like to have a dining area also in the living room with a bigger and nicer table.
- Living & TV area: it is the main part of the house, so we’d like it to be bright and cosy. We’d like to keep our sofa and home theatre.
Other requirements/suggestions:
- We’d like the cooking, dining and living area to face the garden and we’d like big windows that look outside to the garden.
- We want to give up the side porch and replace it with a winter garden.
- We’d like to remove the entrance from the street and replace it with a pedestrian access through the garden. We’d like an external staircase to compensate for the existing gap.
- We’d like the main entrance for the house where the closet currently is.
- We’d like an open staircase (see reference pictures) and we’d like it to be where the actual staircase is in order to not revolutionize the bearing walls structure. The staircase should lead to the basement.
- We really like big windows, but we wouldn’t like them on the sides that face the street.
- We’d like to insulate the perimeter walls internally or externally (with TRESPA panels) to save energy.
Attic
It is 160sqm (commercial space) but the living space is about 70smq due to the ceiling height. We’d like to have here: a studio/office; a bathroom with shower; a guest master bedroom; a small kitchenette with dining table and sofa area.
We’d like some Velux roof windows and a bigger window that faces the terrace on the garden side. The terrace will be just above the winter garden.
The space where the ceiling is too low can be exploited for some custom-made closets.
Extract from the local Law n°21, 8-6-1998. Law for the recovery of attics for residential purpose.
“The average internal height should be at least 2,40 metres. It is calculated as: the total commercial volume of the space/the total habitable surface.
For ancillary rooms this height should be at least 2,20 metres.
In the mountain cities the average height could be 2,20 metres for living spaces and 2,00 metres for ancillary spaces.
If the ceiling is not horizontal the height of the smaller wall cannot be less than 1,60 metres for living spaces and 1,40 metres for ancillary rooms. In the mountain cities this height could be reduced to 1,40 metres for living spaces and 1,20 metres for ancillary rooms.
If there are some spaces where the height of the ceiling is less than the aforementioned minimum heights, then these spaces should be closed with walls or fixed furniture and they can only be used as closet or utility rooms. If these spaces receive direct light exposure, then their closing is not mandatory.
If the ceiling has vaults, then the average height is calculated as the average between the minimum and the maximum height of the vault. These heights are measured starting from the floor and the tolerance of miscalculation is not more than the 5% of the total measure.”
Basement
For this floor we require to leave a big area as garage, boiler room, laundry plus a minimal bathroom (no shower or bathtub is requested), a cellar and a hobbies room.
Finally, here the details of the pieces of furniture we’d like to keep in the current project:
1. Elevated bed “LAGO FLUTTUA BED” 160 x 200
2. “LAGO” nightstands 2 pcs 37x4x18h
3. “LAGO” bedroom closets #1 64x232x265h - #2 64x118x265 - #3 64x220x265h
4. “LAGO” closet for the storage room 45x140x243h
5. Tailor-made table 195x60x86
6. “SNAIDERO” kitchen colonna forno 120x60x246h + piano lavello 420x60x230h + piano cottura ad angolo con frigo 224x60x230h
7. Sofa “MOROSO BY DISEL” 145x315x60h
8. “LAGO” dark bookcase 359x25x258h
9. “LAGO” white bookcase 237x41x210h
10. TV shelf 170x56x49h
11. “FOSCARINI GREGG” small, medium and large ceiling lamp
12. “VIBIA LINK” lamp 90x100x25h
13. “UK” wooden lamp
14. Red “ZANOTTA” armchair
15. Stacking “muellermoebe” armchair 70x140x24
****
ITA.
COLLEGNO VILLA SINGOLA CON GIARDINO
STATO DI FATTO
L’immobile edificato negli anni 60 e mai sottoposto a ristrutturazione, si identifica come villa unifamiliare confinate su 1 lato verso la pubblica via e sui restanti 3 lati su area verde privata; attualmente si presenta con tre livelli di calpestio e precisamente una zona interrata di circa 170 mq (lordi), adibita ad autorimessa, cantina e locali tecnici, un piano rialzato di circa 160 mq (lordi) posto a + 1.60 mt dal p.p.f. esterno e un sottotetto adibito a soffitta. L’edificio è completato da un area di circa 200 mq adibita a giardino.
Attualmente, come evidenziato dalla planimetrie, l’edificio ha un accesso pedonale dalla pubblica via, un accesso carraio dedicato al giardino, un accesso pedonale e un accesso carraio dedicati all’autorimessa.
ll piano abitativo, unico, si compone di:
- doppio ingresso rispettivamente uno da pubblica via e l’altro posto sul retro edificio che mediate una veranda consente accesso alla zona cucina, ampio e luminoso salone, tre camera da letto, cucina abitabile, due bagni entrambi con finestra, ripostiglio e spazioso balcone verandato quest'ultimo dà la possibilità di accedere al grande giardino privato.
Il piano seminterrato, si compone:
- di un'ampia autorimessa, quattro locali di servizio volendo, abbinabili e destinabili a tavernetta, lavanderia e cantina oltre a locale caldaia. Il seminterrato e illuminato da luce naturale esterna con finestre a bocca di lupo apribili.
Completano la proprietà il sottotetto oggi utilizzato come soffitta ed un ampio giardino privato.
La scala interna collega tutti i piani della villa ed oltre al garage interrato vi è la possibilità di parcheggiare le auto interno al cortile.
STATO DI PROGETTO-DESIDERATO
Sul piano terreno di circa 160mq vorremmo ricavare 4 camere da letto, 2 bagni, cucina, sala pranzo e soggiorno, quest’ultimi vorremmo si sviluppassero sul lato giardino invadendo lo stesso con un corpo verandato (giardino d’inverno) che sfrutti la superficie già condonata della attuale veranda laterale (lato rampa) e riporti ad uso balcone (meno preferito) o ad altro uso questa zona posta sul retro.
Nel dettaglio:
• 4 camere da letto: una matrimoniale e 3 singole (per i nostri 3 bambini); due di queste camere singole possono essere previste come due camere separabili solo in un prossimo futuro ma essere per il momento fuse in una grande playroom. La futura separazione di queste due camere singole può essere pensata con pareti mobili (vedi ispirazione pareti mobili) e non necessariamente in muratura. La terza camera singola deve accogliere per il momento tutti e tre i letti con soluzioni a castello o letti impilabili e armadio (vedi lettini montessoriani di cui siamo già in possesso); infine la camera matrimoniale deve poter utilizzare l’arredo (due armadi, un letto e due comodini) esistenti (vedi dettaglio). Su questi ambienti non siamo interessati a soluzioni che prevedano bagni in camera o cabine armadio.
• Bagno 1: finestrato con vasca da bagno (con possibile riconversione in piatto doccia);
Bagno 2: finestrato con ampio piatto doccia;
I due bagni no devono prevedere porzione di Lavanderia che sarà invece ricavata nel seminterrato.
• Cucina: deve prevedere il riutilizzo di tutti i mobili esistenti (vedi dettaglio) con la possibilità di cambiare la disposizione degli elementi e l’aggiunta di altri (siamo favorevoli al rifacimento del top cucina se necessario). L’attuale composizione della cucina comprende un’ isola che noi vorremmo eliminare in favore di un più funzionale tavolo per 5/6 persone. Valutiamo la copresenza dell’isola e del tavolo piccolo per 5/6 persone se fattibile.
Vorremmo comunque ricavare una sala pranzo con un bel tavolo importante in più a quanto appena descritto.
• Zona Divano & TV: è la zona della casa attualmente da noi più vissuta quindi vorremmo mantenerla pertanto vorremmo fosse accogliete luminosa e in modo da riutilizzare il nostro attuale divano (vedi dettagli) e home teatre.
Altre info e/o indirizzi per lo sviluppo del progetto:
- la Cucina, sala pranzo e living vorremmo si sviluppassero sul alto della casa che si affaccia sul giardino e il progetto deve prevedere l’apertura di grandi vetrate e la creazione di un Giardino di Inverno che sporga verso lo stesso. Per ottenere questo rinunciamo alla veranda laterale (lato rampa garage) per usufruire del medesimo volume sul giardino.
- vorremmo eliminare l’ingresso lato strada e prevederne uno pedonale attraverso il giardino con una scala esterna per recuperare il dislivello esistente. In questo modo si recupererebbe superficie per il piano abitativo oltre a rendere più sfruttabile il garage attualmente occluso in altezza dal solaio della scala.
- immaginiamo un ingresso dove attualmente è presente il ripostiglio.
- lo sviluppo del progetto deve prevedere una scala a vista (vedi ispirazione scala) possibilmente inserita nell’attuale posizione per non stravolgere le strutture portanti in modo da accedere al piano seminterrato che comprenderà un ampio garage un locale tecnico, una lavanderia, una cantina e una stanza hobbies/bricolage.
- Valutiamo positivamente l’apertura di ampie vetrate in genere ma non sui due lati che affacciano strada.
- Ai fini del risparmio energetico e per abbattimento dei costi di manutenzione siamo propensi ad azioni di insuflaggio di coibente nella murate perimetrali oppure all’applicazione di un cappotto esterno con l’uso di pannellature tipo TRESPA.
Sottotetto
Il Piano Sotto tetto, di cui si richiede progettazione, ha uno sviluppo in pianta equivale ai circa 160 mq del piano terra ma che al netto delle parti NON abitabili, per le altezze del tetto spiovente e dopo sopraelevazione dello stesso, svilupperà circa 70 mq in cui vorremmo ricavare:
un stanza ad uso ufficio, un bagno con doccia, una camera degli ospiti matrimoniale, un piccolo angolo cottura con tavolo e soggiorno. Ci immaginiamo l’apertura di alcuni Velux e di una ampia vetrata su terrazzino in aggetto lato giardino in modo che il solaio di tale terrazzino possa essere il tetto del giardino di inverno posto al piano inferiore.
La superficie di sottotetto non abitabile può essere sfruttata al massimo per la creazione di armadi su misura.
Estratto della Legge regionale 6 agosto 1998, n. 21. (Testo coordinato) - Norme per il recupero a fini abitativi di sottotetti.
L'altezza media interna, calcolata dividendo il volume interno lordo per la superficie interna lorda degli spazi ad uso abitazione, di cui al comma 2, lettera a), e' fissata in non meno di m 2,40. Per gli spazi accessori o di servizio, indicati al comma 2, lettere b) e c), l'altezza e' riducibile a m 2,20. Nei comuni montani e nei territori montani dei comuni parzialmente montani e' ammessa una riduzione dell'altezza media sino a m 2,20 per gli spazi ad uso abitazione e a m 2,00 per gli spazi accessori e di servizio. In caso di soffitto non orizzontale, ferme restando le predette altezze medie, l'altezza della parete minima non puo' essere inferiore a m 1,60 per gli spazi ad uso abitazione ed a m 1,40 per gli spazi accessori e di servizio, riducibili rispettivamente a m 1,40 ed a m 1,20 per gli edifici siti nei comuni montani e nei territori montani dei comuni parzialmente montani. Gli eventuali spazi di altezza inferiore ai minimi devono essere chiusi mediante opere murarie o arredi fissi e ne può essere consentito l'uso come spazio di servizio destinato a guardaroba ed a ripostiglio. In corrispondenza delle fonti di luce diretta la chiusura di tali spazi non e' prescrittiva. Per i locali con soffitto a volta, l'altezza media e' calcolata come media aritmetica tra l'altezza dell'imposta e quella del colmo della volta stessa, misurata dal pavimento al loro intradosso con una tolleranza fino al 5 per cento a seconda del tipo di volta
Seminterrato
in questo piano si richiede una minima progettazione che includa sempre un'ampia autorimessa, il locale tecnico caldaia, lavanderia e bagno di servizio, una cantina oltre a una stanza per Hobbies.
Di seguito mobili esistenti di cui richiediamo utilizzo e integrazione nel progetto:
1. letto sospeso LAGO FLUTTUA 160 x 200
2. comodini LAGO 2 pcs 37x4x18h
3. armadi LAGO per camera da letto #1 64x232x265h - #2 64x118x265 - #3 64x220x265h
4. armadio LAGO ripostiglio 45x140x243h
5. tavolo da falegname 195x60x86
6. cucina Snaidero: colonna forno 120x60x246h + piano lavello 420x60x230h + piano cottura ad angolo con frigo 224x60x230h
7. divano MOROSO by DISEL dimensioni 145x315x60h
8. libreria LAGO sospesa color fango 359x25x258h
9. libreria LAGO bianca 237x41x210h
10. Mobile TV 170x56x49h
11. Lampade FOSCARINI GREGG small soffitto, medium e large sospensione
12. Lampada VIBIA LINK 190x100x25h
13. Lampagario UK legno Diametro 100
14. Poltrona Sacco Rossa ZANOTTA
15. Lettini sovrapponibili MUELLERMOEBE 70x140x24