
Sestri Levante, GE, Italia
Residenziale - Villa
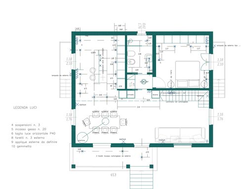
Descrizione
ENG:
Good morning,
I am writing to you because I would like to launch a contest to furnish my villa, which is currently almost finished in its renovation.
The house already has a kitchen and bathroom, with the light points set up and a natural brushed oak parquet floor. The walls are all painted in lime white, while the visible fruit is sand-colored BTicino Living Now with oak side plates.
The goal is to create a modern, minimal and neutral design, inspired by the Japandi style, with warm colors and a large presence of wood. The overall budget for the project is between 15,000 and 25,000 euros.
Here are some indications for the contest:
Master bedroom:
Wall wardrobe (length 398 cm).
Bed, bedside tables, desk, rug and paintings.
Any potted plants to decorate the room.
Living area:
Sofa, coffee table, rug, floor lamp.
Bookcase and console for the entrance.
Dining table (at least 200x100 cm) with rug, floor lamp and sideboard.
Some paintings to complete the decor.
Potted plants to make the room more welcoming.
Kitchen:
Ideas for the wall behind the island and a decorative clock.
Stools for the island (height 64/65 cm).
Laundry area:
A functional space with washing machine and shelves, ideally hidden or discreetly integrated into the overall design.
Neutral curtains for all windows and French windows:
3 double windows and 2 French windows.
Glass entrance door: Roman blind fixed directly on the door.
Bathroom window: Roman blind, keeping in mind that it is located inside the shower tray.
I can attach a plan of the house and some photos to give you a clearer idea of the spaces.
Best regards,
SPA:
Buen día,
Le escribo porque me gustaría lanzar un concurso para amueblar mi villa, que actualmente está casi terminada en su renovación.
La casa ya está equipada con cocina y baño, con los puntos de luz preparados y suelo de parquet de roble natural cepillado. Las paredes están todas pintadas en blanco lima, mientras que la fruta expuesta es de color arena BTicino Living Now con placas laterales de roble.
El objetivo es crear un diseño moderno, minimalista y neutro, inspirado en el estilo Japandi, con colores cálidos y gran presencia de madera. El presupuesto total del proyecto oscila entre 15.000 y 25.000 euros.
A continuación se presentan algunas pautas para el concurso:
Dormitorio principal:
Armario de pared (largo 398 cm).
Cama, mesitas de noche, escritorio, alfombra y cuadros.
Cualquier planta en maceta para decorar la habitación.
Superficie habitable:
Sofá, mesa de café, alfombra, lámpara de pie.
Librería y consola para la entrada.
Mesa de comedor (mínimo 200x100 cm) con alfombra, lámpara de pie y aparador.
Algunos cuadros para completar la decoración.
Plantas en macetas para hacer el ambiente más acogedor.
Cocina:
Ideas para la pared detrás de la isla y un reloj decorativo.
Taburetes para isla (altura 64/65 cm).
Área de lavandería:
Un espacio funcional con lavadora y estanterías, idealmente oculto o discretamente integrado en el diseño general.
Cortinas neutras para todas las ventanas y puertas francesas:
3 ventanas dobles y 2 ventanas francesas.
Puerta de entrada de cristal: Persiana romana fijada directamente a la puerta.
Ventana del baño: Estor romano, teniendo en cuenta que va situado en el interior del plato de ducha.
Puedo adjuntar un plano y algunas fotos para darte una idea más clara de los espacios.
Un cordial saludo,
ITA:
Buongiorno,
Vi scrivo perchè vorrei lanciare un contest per arredare la mia villa, attualmente quasi ultimata nella ristrutturazione.
La casa è già dotata di cucina e bagno, con i punti luce predisposti e pavimento in parquet di rovere spazzolato naturale. Le pareti sono tutte tinteggiate in bianco calce, mentre i frutti a vista sono BTicino Living Now color sabbia con placchette laterali in rovere.
L’obiettivo è creare un design moderno, minimale e neutro, ispirato allo stile Japandi, con colori caldi e un’ampia presenza di legno. Il budget complessivo per il progetto è compreso tra 15.000 e 25.000 euro.
Ecco alcune indicazioni per il contest:
Camera da letto principale:
Armadio a parete (lunghezza 398 cm).
Letto, comodini, scrivania, tappeto e quadri.
Eventuali piante in vaso per decorare l’ambiente.
Zona living:
Divano, tavolino, tappeto, lampada da terra.
Libreria e consolle per l’ingresso.
Tavolo da pranzo (almeno 200x100 cm) con tappeto, lampada da terra e madia.
Qualche quadro per completare l’arredo.
Piante in vaso per rendere l’ambiente più accogliente.
Cucina:
Idee per la parete dietro l’isola e un orologio decorativo.
Sgabelli per l’isola (altezza 64/65 cm).
Zona lavanderia:
Uno spazio funzionale con lavatrice e mensole, idealmente nascosto o integrato in modo discreto nel design generale.
Tende neutre per tutte le finestre e porte finestre:
3 finestre doppie e 2 porte finestre.
Portone d’ingresso in vetro: tenda a pacchetto fissata direttamente sulla porta.
Finestra del bagno: tenda a pacchetto, tenendo presente che si trova all’interno del piatto doccia.
Posso allegare pianta della casa e alcune foto per fornirti un’idea più chiara degli spazi.
Un caro saluto,