Tremezzina, Province of Como, Italy
Residenziale - medium-villa
Descrizione
La Storia del progetto di costruzione
Posseggo un terreno edificabile con splendida vista lago con circa 590 m3 disponibili. Il terreno è di circa 7.000 m2, ma l'area dove inserire il fabbricato è molto limitata per via dei limiti geologici. Nella documentazione allegata ho inserito la planimetria e la posizione del fabbricato. Abbiamo presentato un progetto di costruzione di Villa residenziale (che allego) che è stato approvato in Comune, ma è stato respinto dalla Soprintendenza di Milano. Abbiamo discusso con la Soprintendenza e condiviso le linee guida per il nuovo progetto.
Le linee guida sono quelle di evitare un fronte unico dell'edificio come quello già presentato (che ho allegato) e quindi cercare di separare il fronte in due unità distinte (esempio zona notte e zona giorno separate da un patio esterno e collegate da un corridoio). L'effetto deve essere quello di diminuire la percezione dell'edificio come unico blocco ed invece spezzarlo con almeno due componenti apparentemente distinte per posizione e stile (esempio una unità con tetto piano e l'altra con tetto a falde)
Mi sono rivolto a Cocontest per cercare di avere diversi punti di vista e soprattutto trasformare i vincoli della Soprintendenza in nuove opportunità di evoluzione dell'intero progetto, anche mettendo in discussione quanto già fatto finora.
Nostri Requisiti di Base
- La posizione della sagoma dell'edificio rispetto al terreno non piò essere modificata
- L'edificio deve essere in stile moderno, di design, ma tenendo conto che il contesto delle case vicine è tradizionale.
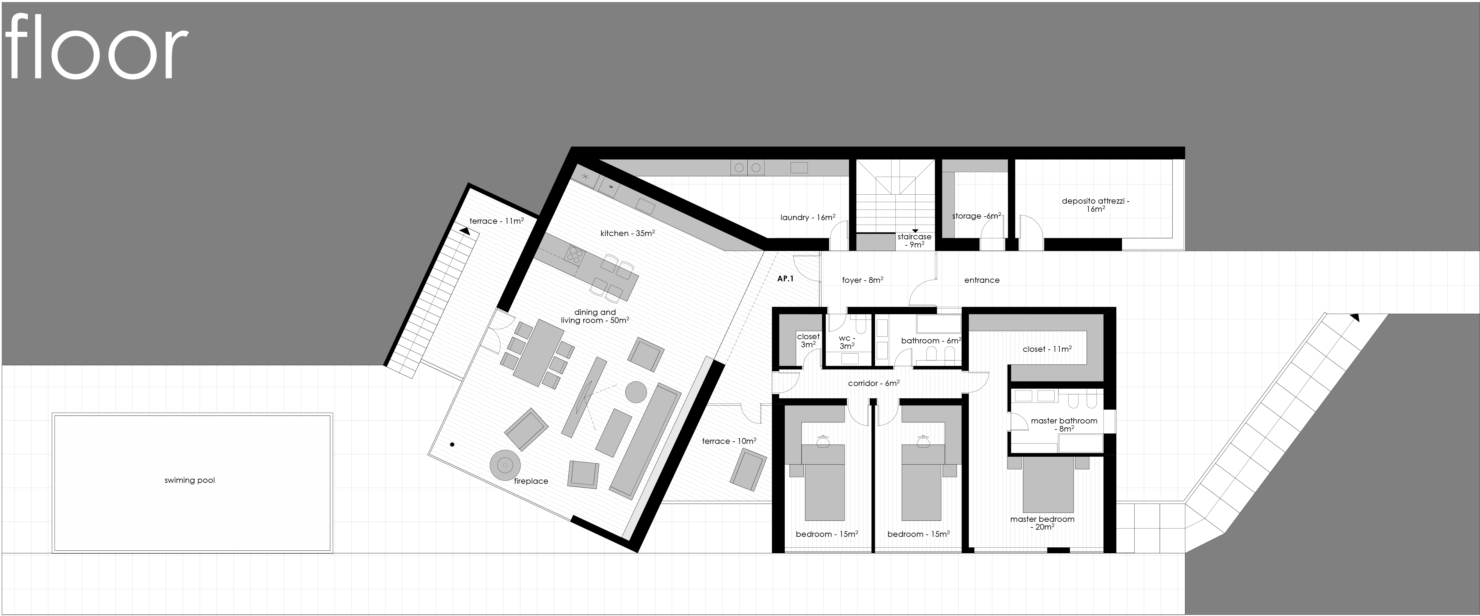
- L'abitazione è disposta su due livelli: un piano seminterrato ed uno "fuori tutto". Il piano seminterrato è composto da un appartamento autonomo (circa 40-45 m2 totali con cucina/soggiorno, bagno e camera) e da altri locali ad uso da definire (es. locale tecnico, Fitness, Wellness, Gioco, Studio,...). Il piano seminterrato è visibile per la parte dedicata all'appartamento, mentre è interrato per la restante parte (ciò per cercare di nascondere il più possibile alla vista dal lago su richiesta della Soprintendenza).
Il piano terra è dedicato alla nostra abitazione principale che deve avere una camera matrimoniale e due camere per i bambini. La zona giorno deve essere molto ampia con grandi vetrate che favoriscano la vista lago. Open space cucina / Sala.
- Adoriamo vivere gli spazi all'aperto e pertanto cerchiamo una soluzione che li preveda e che li valorizzi (balcone, patio esterno,...)
- Una delle due unità ci piacerebbe con tetto piano, mentre l'altra (per vincolo soprintendenza) con tetto a falde, ma sempre cercando di mantenere una continuità di stile e comunque con soluzioni moderne. Il coniugare queste due soluzioni di tetto è l'elemento più vincolante, ma anche il più sfidante.
- Il progetto si completa con una piscina esterna che vorremmo inserire a lato dell'edificio come già fatto nel progetto allegato
- La progettazione del giardino intorno alla casa è un'altra sfida che vorremmo cogliere
- La tavola degli arredi può essere sostituite da tavole della vista esterna dell'edificio. In generale la nostra priorità è sull'aspetto esterno dell'edificio piuttosto che sugli interni
Risorse