
Favara, AG, Italia
Residenziale - Villa
Descrizione
ENG:
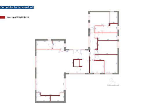
The house extends over a floor area of 185 m2 and is divided into two identical rectangular pavilions, arranged parallel and staggered, creating a dynamic and contemporary composition, ideal for functionally separating the living and sleeping areas, maintaining a modern and harmonious architectural aesthetic.
Pavilion 1 – Living Area (Open Space)
From the cover photo it is on the left.
The first pavilion is entirely dedicated to the living area, conceived in an open space to maximize the brightness and fluidity of the spaces. It includes:
Central dining area, visually and functionally connected to the kitchen.
Island kitchen with separate pantry and convenient access to the outside for the barbecue/garden area.
Large sliding windows on one or both long sides, for visual continuity with the outside and cross-ventilation.
Complete service bathroom, with integrated laundry.
Pavilion 2 – Sleeping Area
From the cover photo it is on the right.
The second pavilion houses the sleeping area, ensuring privacy and tranquility. The layout includes:
Master suite with walk-in closet.
Two secondary bedrooms, ideal for children or guests.
Study or fourth bedroom, which can also be used as a hobby room or guest room.
Second complete bathroom.
Connection between the Pavilions, Central Pavilion. Includes:
Entrance from the rear side directly onto the large living room on the right and sleeping area on the left.
The two volumes are connected via a glass joining element or a gallery, which acts as a visual filter between the two areas and allows integration with an internal patio or winter garden, enhancing the interaction between inside and outside.
General Features
Abundant natural lighting thanks to the parallel and staggered orientation of the pavilions.
Natural ventilation guaranteed by opposing openings.
Distributive solutions designed to optimize the usability of the spaces and daily functionality.
Option to install home automation systems and photovoltaic panels on the roof.
The STYLE will be a Contemporary Mediterranean Minimalism
(With references to Soft Brutalism and Organic Architecture)
Main features:
Pure and linear volumes: the pavilions appear as simple geometric blocks.
Natural and textured materials: exposed concrete, rough plaster, natural or painted wood, often in neutral tones (sand, dove gray, light gray).
Soft color palette: warm and natural colors that recall the Mediterranean landscape.
Large glass surfaces: strong dialogue between inside and outside, with fully opening walls that dissolve the boundaries.
Fluid spaces and open spaces: visual continuity between the rooms, with essential and selected furnishings.
Minimal and elegant furnishing elements: designer lamps, light seats, natural fabrics.
Ceilings with exposed beams (in the second image): rustic reinterpretation in a modern key, especially if painted white.
Description to use in your project:
The project is inspired by a contemporary minimalist style with Mediterranean roots, characterized by essential volumes, natural material finishes and a strong relationship between internal and external spaces. The use of raw concrete, wood, continuous glass surfaces and shaded patios creates a warm and sophisticated atmosphere, where essential design meets architectural functionality. The white exposed beams add a traditional touch reinterpreted in a modern key, for an elegant but welcoming result.
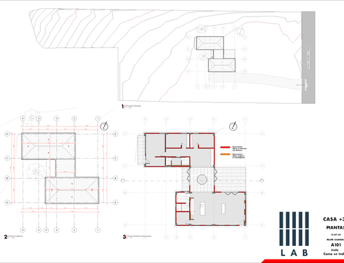
In the front a large veranda will be made connected to the living area pavilion and the central pavilion.
The dimensions of the structure are 6.15 x 13.40 internal for each pavilion, the distances between the trusses are 3.23 useful, the central pavilion has a size of 5.00 x 5.00 and a flat roof will be made in white painted laminated wood, in the rear part a small porch will be made for the entrance measuring 1.50 x the width of the pavilion. If possible also some rendering of the internal spaces.
SPA:
La casa se extiende sobre una superficie construida de 185 m² y se divide en dos pabellones rectangulares idénticos, dispuestos en paralelo y escalonados, creando una composición dinámica y contemporánea, ideal para separar funcionalmente las zonas de estar y de dormir, manteniendo una estética arquitectónica moderna y armoniosa.
Pabellón 1 – Zona de estar (Espacio abierto)
En la foto de portada, se encuentra a la izquierda.
El primer pabellón está dedicado íntegramente a la zona de estar, concebido como un espacio abierto para maximizar la luminosidad y la fluidez de los espacios. Incluye:
Comedor central, conectado visual y funcionalmente con la cocina.
Cocina con isla, despensa independiente y cómodo acceso al exterior para la zona de barbacoa/jardín.
Grandes ventanales correderos en uno o ambos lados longitudinales, para una continuidad visual con el exterior y ventilación cruzada.
Baño de servicio completo, con lavadero integrado.
Pabellón 2 – Zona de dormir
En la foto de portada, se encuentra a la derecha.
El segundo pabellón alberga la zona de dormir, garantizando privacidad y tranquilidad. La distribución incluye:
Suite principal con vestidor.
Dos dormitorios secundarios, ideales para niños o invitados.
Estudio o cuarto dormitorio, que también puede utilizarse como sala de ocio o habitación de invitados.
Segundo baño completo.
Conexión entre los pabellones, Pabellón Central. Incluye:
Entrada desde la parte trasera directamente al amplio salón a la derecha y a la zona de noche a la izquierda.
Los dos volúmenes se conectan mediante un elemento de unión acristalado o una galería, que actúa como filtro visual entre ambas zonas y permite la integración con un patio interior o un jardín de invierno, potenciando la interacción entre el interior y el exterior.
Características generales:
Iluminación natural abundante gracias a la orientación paralela y escalonada de los pabellones.
Ventilación natural garantizada por aberturas opuestas.
Soluciones distributivas diseñadas para optimizar la usabilidad de los espacios y la funcionalidad diaria.
Opción de instalar sistemas domóticos y paneles fotovoltaicos en la cubierta.
El ESTILO será un minimalismo mediterráneo contemporáneo (con referencias al brutalismo suave y la arquitectura orgánica).
Características principales:
Volúmenes puros y lineales: los pabellones se presentan como bloques geométricos simples.
Materiales naturales y texturizados: hormigón visto, yeso rugoso, madera natural o pintada, a menudo en tonos neutros (arena, gris tórtola, gris claro).
Paleta de colores suaves: colores cálidos y naturales que evocan el paisaje mediterráneo.
Grandes superficies acristaladas: un diálogo intenso entre el interior y el exterior, con paredes completamente abiertas que disuelven los límites.
Espacios fluidos y abiertos: continuidad visual entre las estancias, con mobiliario esencial y selecto.
Elementos de decoración minimalistas y elegantes: lámparas de diseño, asientos ligeros, tejidos naturales.
Techos con vigas vistas (en la segunda imagen): reinterpretación rústica en clave moderna, especialmente si están pintados de blanco.
Descripción para su proyecto:
El proyecto está inspirado en un estilo minimalista contemporáneo de raíces mediterráneas, caracterizado por volúmenes esenciales, acabados con materiales naturales y una sólida relación entre los espacios interiores y exteriores. El uso de hormigón visto, madera, superficies continuas de vidrio y patios sombreados crea una atmósfera cálida y sofisticada, donde el diseño esencial se fusiona con la funcionalidad arquitectónica. Las vigas blancas vistas aportan un toque tradicional reinterpretado en clave moderna, para un resultado elegante y acogedor.
En la parte frontal, se construirá una amplia terraza conectada al pabellón de la sala de estar y al pabellón central.
Las dimensiones de la estructura son de 6,15 x 13,40 m interiores para cada pabellón, con una distancia entre las cerchas de 3,23 m útiles. El pabellón central tiene unas dimensiones de 5,00 x 5,00 m y una cubierta plana de madera laminada pintada de blanco. En la parte trasera, se construirá un pequeño porche de entrada de 1,50 x el ancho del pabellón. Si es posible, también se incluirá una representación de los espacios interiores.
ITA:
L’abitazione si sviluppa su una superficie calpestabile di 185 mq ed è articolata in due padiglioni rettangolari identici, disposti parallelamente e sfasati tra loro, creando una composizione dinamica e contemporanea, ideale per separare in modo funzionale le zone giorno e notte, mantenendo un’estetica architettonica moderna e armoniosa.
Padiglione 1 – Zona Giorno (Open Space)
Dalla foto della copertina si trova a sinistra.
Il primo padiglione è dedicato interamente alla zona giorno, concepita in open space per massimizzare la luminosità e la fluidità degli spazi. Comprende:
Zona pranzo centrale, collegata visivamente e funzionalmente alla cucina.
Cucina a isola con dispensa separata e comodo accesso all’esterno per la zona barbecue/giardino.
Grandi vetrate scorrevoli su uno o entrambi i lati lunghi, per continuità visiva con l’esterno e ventilazione trasversale.
Bagno di servizio completo, con lavanderia integrata.
Padiglione 2 – Zona Notte
Dalla foto della copertina si trova a destra.
Il secondo padiglione ospita la zona notte, garantendo privacy e tranquillità. La distribuzione prevede:
Suite padronale con cabina armadio.
Due camere da letto secondarie, ideali per figli o ospiti.
Studio o quarta camera, utilizzabile anche come sala hobby o stanza ospiti.
Secondo bagno completo.
Connessione tra i Padiglioni, Padiglione centrale. Comprende:
Ingresso dal lato posteriore diretto su ampio soggiorno a destra e zona notte a sinistra.
I due volumi sono collegati tramite un elemento di giunzione vetrato o una galleria, che funge da filtro visivo tra le due aree e permette l’integrazione con un patio interno o giardino d’inverno, valorizzando l’interazione tra interno ed esterno.
Caratteristiche Generali
Illuminazione naturale abbondante grazie all’orientamento parallelo e sfasato dei padiglioni.
Ventilazione naturale garantita da aperture contrapposte.
Soluzioni distributive pensate per ottimizzare la fruibilità degli spazi e la funzionalità quotidiana.
Possibilità di installazione di impianti domotici e pannelli fotovoltaici in copertura.
Lo STILE sarà un Minimalismo Mediterraneo Contemporaneo
(Con richiami a Brutalismo Soft e Architettura Organica)
Caratteristiche principali:
Volumi puri e lineari: i padiglioni si presentano come blocchi geometrici semplici.
Materiali naturali e materici: cemento a vista, intonaci grezzi, legno naturale o verniciato, spesso in toni neutri (sabbia, tortora, grigio chiaro).
Palette cromatica soft: colori caldi e naturali che richiamano il paesaggio mediterraneo.
Grandi superfici vetrate: forte dialogo tra interno ed esterno, con pareti interamente apribili che dissolvono i confini.
Spazi fluidi e open space: continuità visiva tra gli ambienti, con arredi essenziali e selezionati.
Elementi d’arredo minimal ed eleganti: lampade di design, sedute leggere, tessuti naturali.
Soffitti con travi a vista (nella seconda immagine): reinterpretazione rustica in chiave moderna, soprattutto se verniciate di bianco.
Descrizione da usare nel tuo progetto:
Il progetto si ispira a uno stile minimalista contemporaneo con radici mediterranee, caratterizzato da volumi essenziali, finiture materiche naturali e un forte rapporto tra spazi interni ed esterni. L’uso di cemento grezzo, legno, superfici vetrate continue e patii ombreggiati crea un’atmosfera calda e sofisticata, dove il design essenziale incontra la funzionalità architettonica. Le travi a vista bianche aggiungono un tocco tradizionale reinterpretato in chiave moderna, per un risultato elegante ma accogliente.
Nel fontrale verrà fatta un ampia veranda collegata con il padiglione della zona giorno e con il padiglione centrale.
Le misure della struttura sono 6,15 x 13,40 interno per ogni padiglione, le distanze tra le capriate sono di 3,23 utile, il padiglione centrale ha una misura di 5,00 x 5,00 è verrà fatta una copertura piana in lamellare verniaciato bianco, nella parte posteriore verrà fatto un piccolo portico per l'ingresso misura 1,50 x la larghezza del padiglione. Se possibile anche qualche rendering degli spazi interni.