🔥 CYBER MONDAY 24H: -60% su tutti i prezzi del sito! Solo fino a mezzanotte. Usa il codice CYBERMONDAY25 👉🏼
img

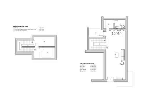
villa lonato

25017 Lonato del Garda, Province of Brescia, Italy

Residenziale - Casa

  • 1° Posto € 2292
  • 2° Posto € 764
  • 3° Posto € 382
  • 4° Posto € 191
  • 5° Posto € 191